++ NEU! 5 Zimmer | Südgarten | Küche + Stellplatz inkludiert I MB IMMOBILIEN ++

Haus - Reihenhaus, 1230 Wien


U6 Erlaaer Straße und U6 Perfektastraße

Beschreibung der Immobilie

++ NEU! 5 Zimmer | Südgarten | Küche + Stellplatz inkludiert I MB IMMOBILIEN ++

Wo Familien wachsen: Modernes Haus mit Garten, Dachterrasse & perfekter Anbindung!



Nur wenige Schritte von der U6 Perfektastraße entsteht ein Zuhause, das mehr ist als vier Wände. Ein Ort, an dem Kinder groß werden, an dem man ankommt, durchatmet und das Leben genießt. Ein Haus, das Wärme ausstrahlt – mit Eigengarten, zwei Terrassen und einer Raumaufteilung, die sich perfekt an den Alltag einer Familie anpasst.



Eckdaten:




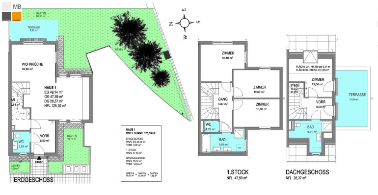
  • 5 Zimmer | ca. 126 m² Wohnfläche



  • Garten ca. 75 m²



  • 2 Terrassen gesamt ca. 24 m²



  • super Energieausweis: niedrige Heizkostén!



  • PKW‑Stellplatz inkludiert



  • Schlüsselfertig inkl. hochwertiger Küche
     




Was dieses Zuhause besonders macht:




  • Großzügige Wohnküche mit allen Geräten – der Mittelpunkt für gemeinsame Momente



  • Direkter Zugang zu Terrasse & Garten – perfekt für Kinder, Grillabende & Entspannung



  • 3 ruhige Schlafzimmer im Obergeschoß



  • Traumhaftes Dachgeschoß mit eigenem Bad, WC & großer Terrasse – Rückzugsort für Eltern oder Homeoffice



  • Rollrasen im Garten – sofort nutzbar



  • Effiziente Fußbodenheizung mittels Luftwärmepumpe



  • Kunststofffenster mit integriertem Sonnenschutz



  • Alle Räume zentral begehbar

     




Top Lage & perfekte Anbindung:
SPAR und LIDL in wenigen Minuten zu Fuß, SCS in ca. 10 Minuten. Öffis wie U6, 61A, 64A und Badner Bahn
 



Ein Zuhause, das modernes Design, Geborgenheit und Lebensqualität vereint.





? Jetzt Besichtigung vereinbaren und Ihr neues Zuhause im Speckgürtel von Wien sichern!


Roswitha Adler

0676/4554 267
adler@mb-immobilien.at
Bin (fast) jederzeit erreichbar! Einzelbesichtigung flexibel und spontan möglich.





Wir weisen auf unser wirtschaftliches Nahverhältnis mit dem Abgeber und auf unsere Vermittlungstätigkeit als Doppelmakler hin.


Alle Angaben basieren auf Informationen des Eigentümers und wurden mit größter Sorgfalt zusammengestellt.

Für die Richtigkeit, Vollständigkeit und Aktualität dieser Angaben wird keine Gewähr übernommen. Änderungen, Irrtümer und Zwischenverkauf bleiben ausdrücklich vorbehalten. Maßangaben sind Circa-Angaben.

Das Exposé stellt kein verbindliches Angebot dar.

Bei erfolgreichem Abschlussfall fällt eine Käuferprovision in Höhe von 3 % des Kaufpreises zzgl. 20 % USt. an - gemäß Immobilienmaklerverordnung BGBI. 262 und 297/1996.

Infrastruktur / Entfernungen

Gesundheit
Arzt <500m
Apotheke <1.000m
Klinik <2.000m
Krankenhaus <2.000m

Kinder & Schulen
Schule <1.000m
Kindergarten <500m
Universität <5.500m
Höhere Schule <5.000m

Nahversorgung
Supermarkt <500m
Bäckerei <1.000m
Einkaufszentrum <1.000m

Sonstige
Geldautomat <500m
Bank <1.500m
Post <1.500m
Polizei <1.500m

Verkehr
Bus <500m
U-Bahn <500m
Straßenbahn <3.500m
Bahnhof <500m
Autobahnanschluss <1.500m

Angaben Entfernung Luftlinie / Quelle: OpenStreetMap

Eckdaten Objektnr. 4586

Art: Haus - Reihenhaus
Land: Österreich
Baujahr: 2025
Zustand: Erstbezug
Alter: Neubau
Kaufpreis: 699.000,00
Wohnfläche: 126,00 m²
Nutzfläche: 223,00 m²
Grundstücksfl.: 223,00 m²
Zimmer: 5
Bäder: 2
WC: 3
Terrassen: 2
Stellplätze: 1
Garten: 75,00 m²
Heizwärmebedarf:  B  37,80 kWh/m²a
Nebenkostenübersicht Kauf Immobilie merken Exposé

Ausstattung

Parkett, Steinboden, Fußbodenheizung, Wohnküche / offene Küche, Südbalkon, Bad mit Fenster, Badewanne, Dusche, Parkplatz


Immobilie anfragen


Ihre persönliche Beratung

Michael Bajer Immobilien

Roswitha Adler

Michael Bajer Immobilien

H +43 676 45 54 267