Penthouse-Juwel mit Direktlift & Panoramaterrasse – exklusive Residenz in Villa mit nur 3 Einheiten

Wohnung - Terrassenwohnung, 1180 Wien , Scheidlstraße


Die Umgebung besticht durch viel Grün und eine hohe Lebensqualität. Nur 15 Gehminuten entfernt befindet sich die Amadeus International School Vienna. Die Anbindung an den öffentlichen Verkehr ist ausgezeichnet: Straßenbahnlinie 40, 41 Bus 10A und die S-Bahn-Station Gersthof sind zu Fuß schnell erreichbar. Einkaufsmöglichkeiten, Restaurants und Parks befinden sich in unmittelbarer Nähe. Die ruhige und sichere Wohngegend bietet ideale Voraussetzungen für gehobenes Wohnen. Diese Immobilie verbindet urbanes Wohnen mit hohem Freizeitwert. Vereinbaren Sie noch heute einen Besichtigungstermin und überzeugen Sie sich selbst von dieser außergewöhnlichen Wohnung in einer der besten Lagen Wiens!

Beschreibung der Immobilie

Penthouse-Juwel mit Direktlift & Panoramaterrasse – exklusive Residenz in Villa mit nur 3 Einheiten


Penthouse-Juwel mit Direktlift & Panoramaterrasse – exklusive Residenz in Villa mit nur 3 Einheiten



Exklusives Wohnen auf höchstem Niveau – eine von nur drei Etagenwohnungen



Highlights auf einen Blick



  • Nur 3 exklusive Wohnungen im gesamten Haus – eine pro Etage
  • Repräsentatives Entree, prachtvolles Stiegenhaus sowie modern verglaster Lift mit Blick ins Grüne
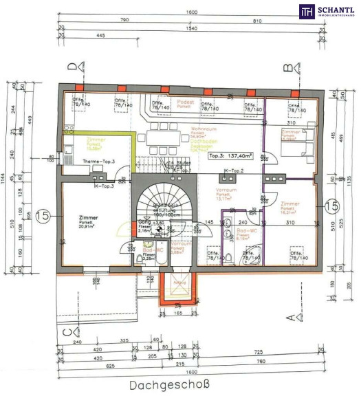
  • Ca. 137 m² Wohnfläche im Dachgeschoss
  • Direkter Liftzugang in die Wohnung – maximale Privatsphäre
  • Großzügige Panoramaterrasse mit Wien- und Kahlenbergblick
  • Loftartiger Wohn-/Essbereich mit offener Küche
  • 4 Zimmer, 2 Bäder, darunter Masterbereich mit Bad en suite
  • Hochwertiges Eichenparkett in den Wohnräumen
  • Klimatisierung für höchsten Wohnkomfort
  • Stilvolle Designbäder mit moderner Ausstattung
  • Gemeinschaftsgarten für die exklusive Hausgemeinschaft
  • Großzügiges Kellerabteil
  • Ruhige Grünlage bei gleichzeitig ausgezeichneter Infrastruktur
  • Absolute Rarität in einer stilvollen Gründerzeitvilla


In einer eleganten Gründerzeitvilla mit nur drei exklusiven Wohneinheiten – eine pro Etage – präsentiert sich diese außergewöhnliche Dachgeschossresidenz als wahres Penthouse-Juwel über den Dächern Wiens.



Auf rund 137 m² Wohnfläche vereint die Wohnung architektonische Großzügigkeit, moderne Eleganz und ein Höchstmaß an Privatsphäre. Der direkte Liftzugang in die Wohnung unterstreicht den exklusiven Charakter und ermöglicht ein diskretes, komfortables Ankommen auf höchstem Niveau.



Das Herzstück bildet der beeindruckende, loftartige Wohn- und Essbereich mit offener Küche. Großzügige Fensterflächen durchfluten den Raum mit Licht und schaffen ein unvergleichliches Wohngefühl. Von hier aus gelangen Sie direkt auf die weitläufige Dachterrasse – ein echtes Highlight dieser Immobilie.



Die Panoramaterrasse eröffnet einen spektakulären Blick über Wien bis hin zum Kahlenberg und wird so zu einem privaten Rückzugsort über der Stadt – ideal für entspannte Stunden ebenso wie für stilvolle Empfänge.



Die durchdachte Raumaufteilung umfasst insgesamt vier Zimmer, darunter ein großzügiger Masterbereich mit Bad en suite. Weitere Räume lassen sich flexibel als Schlafzimmer, Home-Office oder Gästezimmer nutzen und bieten damit ideale Voraussetzungen für modernes, anspruchsvolles Wohnen.



Hochwertige Materialien wie edles Eichenparkett, stilvoll ausgestattete Designbäder sowie eine integrierte Klimaanlage sorgen für ein Wohnniveau, das höchsten Ansprüchen gerecht wird. 



Ergänzt wird dieses exklusive Angebot durch einen gemeinschaftlichen Gartenbereich sowie ein großzügiges Kellerabteil.



Diese Penthouse-Residenz richtet sich an Käufer, die das Besondere suchen: Exklusivität, Privatsphäre und ein einzigartiges Wohngefühl über den Dächern Wiens – in einer kleinen, feinen Hausgemeinschaft, wie sie am Markt nur selten zu finden ist.



Eine echte Rarität: Nur drei Wohnungen im Haus – und diese befindet sich an der Spitze. Vereinbaren Sie noch heute Ihren Besichtigungstermin.



Kaufpreis: €1.300.000



Bezug: sofort verfügbar





Weitere Informationen



Hat diese Immobilie Ihr Interesse geweckt? Ich freue mich auf Ihre Anfrage! Für weitere Fragen stehe ich Ihnen gerne jederzeit zur Verfügung! Lediglich Anfragen mit vollständigem Namen, einer Telefonnummer sowie einer E-Mail-Adresse können unsererseits bearbeitet werden. Die von uns bereitgestellten Informationen beruhen auf Angaben des Abgebers. Für die Richtigkeit und Vollständigkeit der Angaben kann keine Gewähr bzw. Haftung übernommen werden. Änderungen vorbehalten!



www.schantl-ith.at





Bei konkretem Interesse senden wir Ihnen sehr gerne weiterführende Dokumente zu.



Unser Service für Sie: Wenn Sie sich für diese Immobilie entschieden haben, begleiten wir Sie gerne vom Kaufanbot weg inkl. Klärung von Sonderwünschen und der Vertragsunterzeichnung über die Wohnungsübergabe bis hin zu diversen Ummeldungen wie Strom und Gas. Entsprechende Formulare oder auch Meldezettel stellen wir Ihnen sehr gerne zur Verfügung.



Gerne unterstützen wir Sie auch bei der Finanzierung Ihres Traumobjekts und finden mit unseren langjährigen Partnern die besten Konditionen für Sie.



Vereinbaren Sie noch heute einen Termin, wir beraten Sie gerne!


Wir weisen darauf hin, dass zwischen dem Vermittler und dem zu vermittelnden Dritten ein familiäres oder wirtschaftliches Naheverhältnis besteht.


Der Vermittler ist als Doppelmakler tätig.

Infrastruktur / Entfernungen

Gesundheit
Arzt <250m
Apotheke <500m
Klinik <750m
Krankenhaus <1.750m

Kinder & Schulen
Schule <250m
Kindergarten <500m
Universität <1.000m
Höhere Schule <500m

Nahversorgung
Supermarkt <250m
Bäckerei <500m
Einkaufszentrum <1.250m

Sonstige
Geldautomat <500m
Bank <500m
Post <750m
Polizei <750m

Verkehr
Bus <250m
U-Bahn <1.250m
Straßenbahn <250m
Bahnhof <250m
Autobahnanschluss <3.000m

Angaben Entfernung Luftlinie / Quelle: OpenStreetMap

Eckdaten Objektnr. 297552

Art: Wohnung - Terrassenwohnung
Land: Österreich
Alter: Neubau
Kaufpreis: 1.300.000,00
Kaufpreis / m²: 8.365,51 €
Wohnfläche: 137,40 m²
Nutzfläche: 155,40 m²
Zimmer: 4
Bäder: 2
Terrassen: 1
Heizwärmebedarf:  C  78,37 kWh/m²a
Nebenkostenübersicht Kauf Immobilie merken Exposé

Ausstattung

Fliesen, Parkett, Gas, Etagenheizung, Einbauküche, Wohnküche / offene Küche, Personenaufzug, Südbalkon, Badewanne, Dusche


Immobilie anfragen


Ihre persönliche Beratung

Schantl ITH Immobilientreuhand GmbH

Mag. Hanna Herzenstein

Schantl ITH Immobilientreuhand GmbH

T +43 6643070009

H +43 670 5070265