Attraktiver Rohdachboden mit Baugenehmigung in top Lage!

Zinshaus Renditeobjekt , 2100 Korneuburg , Bisamberger Straße


Die Stadtgemeinde Korneuburg liegt 20 Kilometer nördlich vor den Toren von Wien. Umgeben wird sie von der unberührten Natur der Donauauen. Geschätzt wird der Ort nicht nur als romantische Hochzeitsstadt. Seine vielfältigen Freizeitmöglichkeiten und freundlichen Gastbetriebe laden Jung und Alt gleichermaßen zu Ausflügen und Kurzurlauben ein.

Beschreibung der Immobilie

Attraktiver Rohdachboden mit Baugenehmigung in top Lage!

Tolle Lage in Korneuburg! Verkauf inklusive aufrechter Baugenehmigung. Jetzt zugreifen!



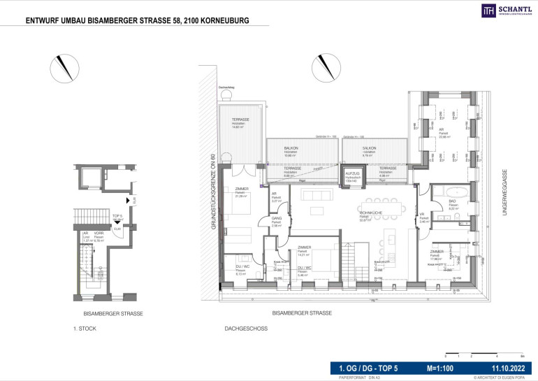
Zum Verkauf steht ein attraktiver Rohdachboden in zentraler Lage von Korneuburg. Der Plan sieht ein Penthouse mit 3 Freiflächen vor. Eine Teilung ist anhand der aktuellen Bebauungsbestimmungen nicht möglich. 



ECKDATEN



  • GST-Fläche: 432 m²
  • Das Haus ist aktuell bestandsfrei. Die Wohnungen im EG und 1.OG werden gerade kernsaniert und gelangen zeitnahe in den Verkauf! 
  • Eine Garage mit einem Stellplatz ist auf dem Grundstück vorhanden. 
  • Potenzial laut Einreichplan: 166,28 m² Wohnfläche plus 35,21 m² Terrassen. 
  • Gewichtete WNFL: 183,89 m²


Die Baugenehmigung wurde bereits erteilt. Der Käufer verpflichtet sich, innerhalb von 9 Monaten nach Kauf mit dem Ausbau zu beginnen, einen Lift einzubauen, die Steigleitungen zu erneuern und die Fassade zu sanieren. 



„Diese Immobilie wird in Form eines digitalen Angebotsprozesses vermittelt. Das bedeutet, der angezeigte Preis ist ein Startpreis und kann im Laufe des Prozesses höher sein.“



Richtpreis: € 130.000.-



Vermittlungshonorar: 3% des erzielten Kaufpreises + 20% MwSt.



Die Liegenschaft wird lastenfrei zum Kauf angeboten!



 



Wir erlauben uns, Ihnen o.a. Objekt freibleibend und unverbindlich anzubieten. Die Angaben erfolgen aufgrund von Informationen und Unterlagen, die uns vom Abgeber und/oder Dritten zur Verfügung gestellt wurden und sind ohne Gewähr. Alle Flächen- und sonstigen Maßangaben sind ca. Angaben und ebenfalls ohne Gewähr.



Festhalten wollen wir, dass Sie sich verpflichten, gegenständliche Informationen nicht an Dritte weiterzuleiten, sofern dies nicht mit dem zuständigen Immobilienberater von Schantl ITH Immobilientreuhand GmbH schriftlich vereinbart wurde.



 



Unser Service für Sie: Wenn Sie sich für diese Immobilie entschieden haben, begleiten wir Sie gerne vom Kaufanbot weg inkl. Klärung von Sonderwünschen und der Vertragsunterzeichnung über die Wohnungsübergabe bis hin zu diversen Ummeldungen wie Strom und Gas. Entsprechende Formulare oder auch Meldezettel stellen wir Ihnen sehr gerne zur Verfügung.



Gerne unterstützen wir Sie auch bei der Finanzierung Ihres Traumobjekts und finden mit unseren langjährigen Partnern die besten Konditionen für Sie.



Bei konkretem Interesse senden wir Ihnen sehr gerne weiterführende Dokumente zu, wie: Grundbuchauszug, Wohnungseigentumsvertrag, Nutzwertgutachten, Eigentümerversammlungsprotokoll (wenn vorhanden) etc...



Vereinbaren Sie noch heute einen unverbindlichen Beratungstermin mit uns. Sehr gerne stehen wir Ihnen auch für Finanzierungsfragen zur Verfügung!



www.schantl-ith.at


Wir weisen darauf hin, dass zwischen dem Vermittler und dem zu vermittelnden Dritten ein familiäres oder wirtschaftliches Naheverhältnis besteht.


Der Vermittler ist als Doppelmakler tätig.

Infrastruktur / Entfernungen

Gesundheit
Arzt <1.750m
Apotheke <500m
Krankenhaus <750m
Klinik <5.250m

Kinder & Schulen
Schule <1.000m
Kindergarten <750m
Universität <5.750m
Höhere Schule <9.500m

Nahversorgung
Supermarkt <500m
Bäckerei <1.000m
Einkaufszentrum <5.500m

Sonstige
Bank <750m
Geldautomat <1.000m
Post <1.250m
Polizei <1.500m

Verkehr
Bus <250m
Straßenbahn <6.500m
Autobahnanschluss <1.250m
Bahnhof <1.250m

Angaben Entfernung Luftlinie / Quelle: OpenStreetMap

Eckdaten Objektnr. 297376

Art: Zinshaus Renditeobjekt
Land: Österreich
Alter: Neubau
Kaufpreis: 130.000,00
Kaufpreis / m²: 706,94 €
Wohnfläche: 166,28 m²
Nutzfläche: 183,89 m²
Heizwärmebedarf:  B  39,80 kWh/m²a
fGEE:  A  0,79
Nebenkostenübersicht Kauf Immobilie merken Exposé

Ausstattung

Garage


Immobilie anfragen


Ihre persönliche Beratung

Schantl ITH Immobilientreuhand GmbH

Mark Prettenthaler

Schantl ITH Immobilientreuhand GmbH

T +43 6643070009

H +43 650 56 75 611