Top Lage am „Lainzer Platzl“ in Hietzing: Helle, ruhige, renovierte 3-Zimmer Neubau-Wohnung (BJ 1992) mit Grünblick und Garage

Wohnung , 1130 Wien


Lainzerplatz/Küniglberg

Beschreibung der Immobilie

Top Lage am „Lainzer Platzl“ in Hietzing: Helle, ruhige, renovierte 3-Zimmer Neubau-Wohnung (BJ 1992) mit Grünblick und Garage

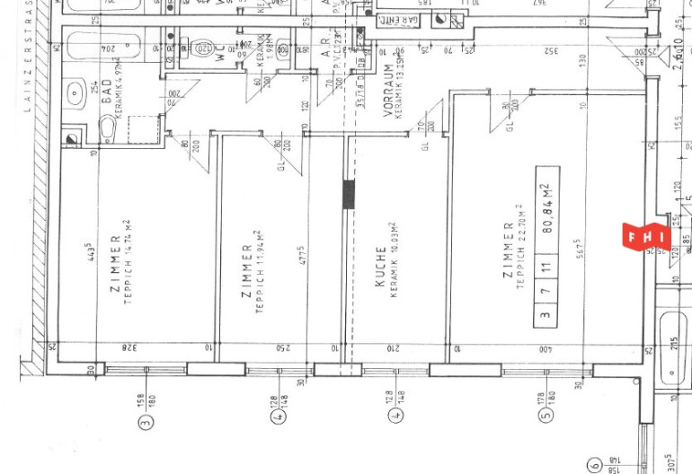
Nähe Lainzerplatz am Fuße des Küniglberges gelangt in ruhiger Lage und in einer schönen Wohnhausanlage BJ. 1992 eine renovierte ca. 80,84 m² Neubauwohnung im 3. Liftstock mit Tiefgaragenplatz u. Klimaanlage zum Verkauf.



Die Wohnung liegt komplett hofseitig in einem weitläufigen, begrünten Innenhof, im 3. Liftstock und ist südostseitig ausgerichtet.



Das Haus verfügt über einen niedrigen HWB Wert 50,04, geringe Betriebskosten (Heizkosten € 67,-- und Warmwasser € 27,90 werden für jede Wohnung individuell abgerechnet, Reparaturrücklage € 107,49). Die monatliche BK-Vorschreibung inkl. BK., Heizung, Warmwasser u. Reparaturrücklage ergibt € 431,47





Aufteilung



geräumiger Vorraum, Wohnzimmer mit Klimagerät, 2 Schlafzimmer, Küche mit Einbauküche (kleiner Essbereich möglich), neues Fliesenbad mit Wanne, Bidet u. Waschmaschinenanschluss, Abstellraum sowie ein separates WC mit Handwaschbecken.



Ausstattung



Parkett- und Fliesenböden, Hauszentralheizung, neu weiß ausgemalt, neues Fliesenbad, DAN-Einbauküche inkl. Markengeräte, Abstellraum, klimatisierter Wohnbereich, geräumiges Kellerabteil mit Licht u. Stromanschluss, sowie ein Tiefgaragenplatz.



Infrastruktur:



Die Lage der Wohnung zeichnet sich durch eine gute Verkehrsanbindung (Straßenbahnlinien 49, 52, 60, Schnellbahnlinie S 80 Richtung Hütteldorf-Hauptbahnhof, sowie die Autobuslinien 56A & 56B), eine ausgezeichnete Infrastruktur und eine lückenlose Nahversorgung (Lainzerplatz: Gourmetspar 160m, Bipa 94m, Apotheke 170m, Ärzte, Schulen, ecet.) aus.





Für nähere Informationen oder einen Besichtigungstermin stehen wir Ihnen gerne telefonisch oder per E-Mail zur Verfügung.



FHI Real Estate GmbH



t    +431342222

f    +43134222211

e    ap@fhi.at

www.fhi.at



Die Angaben erfolgen aufgrund von Informationen und Unterlagen, die uns vom Eigentümer und/oder von Dritten zur Verfügung gestellt wurden und sind ohne Gewähr.






Wir weisen darauf hin, dass zwischen dem Vermittler und dem zu vermittelnden Dritten ein familiäres oder wirtschaftliches Naheverhältnis besteht.


Der Vermittler ist als Doppelmakler tätig.

Infrastruktur / Entfernungen

Gesundheit
Arzt <500m
Apotheke <500m
Klinik <1.000m
Krankenhaus <1.000m

Kinder & Schulen
Schule <500m
Kindergarten <500m
Universität <2.000m
Höhere Schule <4.000m

Nahversorgung
Supermarkt <500m
Bäckerei <500m
Einkaufszentrum <3.500m

Sonstige
Geldautomat <500m
Bank <500m
Post <1.000m
Polizei <500m

Verkehr
Bus <500m
U-Bahn <2.000m
Straßenbahn <500m
Bahnhof <500m
Autobahnanschluss <3.500m

Angaben Entfernung Luftlinie / Quelle: OpenStreetMap

Eckdaten Objektnr. 7278

Art: Wohnung
Land: Österreich
Baujahr: 1992
Alter: Neubau
Kaufpreis: 460.000,00
Betriebskosten: 183,26 €
MwSt Gesamt: 20,83 €
Wohnfläche: 80,84 m²
Zimmer: 3
Bäder: 1
WC: 1
Heizwärmebedarf:  C  50,04 kWh/m²a
fGEE:  C  1,15
Nebenkostenübersicht Kauf Immobilie merken Exposé

Ausstattung

Parkett, Fliesen, Zentralheizung, Einbauküche, Personenaufzug, Badewanne, Kabel/Satelliten-TV, Garage


Immobilie anfragen


Ihre persönliche Beratung

FHI Real Estate GmbH

FHI - Real Estate

Fischer, Hörnisch Immobilien GmbH

T +43 1 342 222 20

F +43 1 342 222 11