QUALITÄT UND LAGE

Wohnung , 1120 Wien , Darnautgasse


beste Anbindung über Verkehrsknoten Philadephilabrücke beste Infrastruktur durch die Einkaufsstraße Meidlinger Hauptstraße und die Arkaden

Beschreibung der Immobilie

QUALITÄT UND LAGE

 Ruhelage! mit bester Verkehrsanbindung


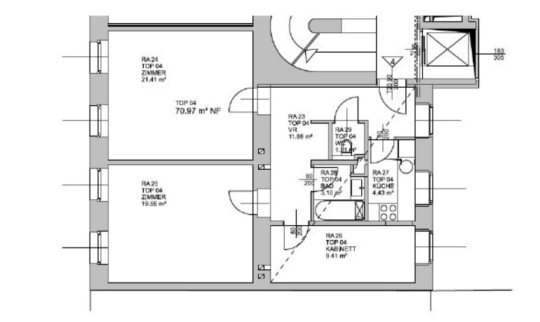
Für einen Single oder für zwei Personen ist die Wohnung ideal:

- zwei Zimmer, großzügig, fast schon weitläufig

- separate, kompakte Küche

- ein weiteres Zimmer, smart und länglich - ruhige Hoflage

- Vorzimmer und Nebenräume



Der Zustand ist gepflegt - Parkettböden, Gasetagenheizung, moderne Fenster, und, und ....



Die Wohnanlage gliedert sich in den Straßentrakt, einem klassischen Altbau, und einem Hoftrakt, erbaut vor ca. 20 Jahren. Beide Trakte haben jeweils einen eigenen Personenaufzug.



Zwei kurze Worte zur Lage der Wohnung:

Es ist der Schnittpunkt zwischen Meidlinger Hauptstraße und Wienerberger Straße - somit ist man im Einzugsgebiet von Europlaza, von den Twin Towers aber auch von der Meidlinger Hauptstraße, beginnend mit den Arkaden.

Und die Anbindung an die Nahverkehrsmittel ist absolut sehr gut: angefangen mit dem U-Bahnnetz durch die U6. Aber auch S-Bahn und  Badner Bahn sind sofort erreichbar - somit eine Anbindung in die Stadt aber auch in das südliche Umland von Wien. Weiters - im Meidlinger Bahnhof halten die Fernzüge auf ihrem Weg von und zum Hauptbahnhof.

 

Infrastruktur / Entfernungen

Gesundheit
Arzt <250m
Apotheke <250m
Klinik <250m
Krankenhaus <1.250m

Kinder & Schulen
Schule <500m
Kindergarten <250m
Universität <1.250m
Höhere Schule <750m

Nahversorgung
Supermarkt <250m
Bäckerei <250m
Einkaufszentrum <500m

Sonstige
Geldautomat <500m
Bank <500m
Post <500m
Polizei <500m

Verkehr
Bus <250m
U-Bahn <250m
Straßenbahn <250m
Bahnhof <250m
Autobahnanschluss <2.000m

Angaben Entfernung Luftlinie / Quelle: OpenStreetMap

Eckdaten Objektnr. 1442

Art: Wohnung
Land: Österreich
Baujahr: 1900
Zustand: Gepflegt
Kaufpreis: 286.700,00
Betriebskosten: 250,70 €
MwSt Gesamt: 25,07 €
Wohnfläche: 70,79 m²
Zimmer: 3
Bäder: 1
WC: 1
Keller: 2,00 m²
Heizwärmebedarf:  E  160,10 kWh/m²a
fGEE:  D  2,26
Nebenkostenübersicht Kauf Immobilie merken Exposé

Ausstattung

Fliesen, Parkett, Gas, Etagenheizung, Wohnküche / offene Küche, Personenaufzug, Dusche


Immobilie anfragen


Ihre persönliche Beratung

IMMOKONTOR - Srnka e.U.

Reinhard Srnka

IMMOKONTOR - Srnka e.U.

T +43 1 9146193

H 0650 300 65 45

F 01 2533033 1177