Ein Standort mit Strahlkraft: Das vielseitige Gewerbejuwel in Gleisdorf – perfekte Flächen, viele Stellplätze, große Lagerhalle und Raum für Wachstum. Jetzt im 3D-Rundgang erleben!

Halle / Lager / Produktion , 8200 Gleisdorf , Josefa-Posch-Straße


Das Gewerbeobjekt überzeugt durch seine hervorragend frequentierte und optimal erreichbare Lage im dynamischen Wirtschaftszentrum von Gleisdorf. Hier treffen Sichtbarkeit, Infrastruktur und wirtschaftliches Umfeld in idealer Weise aufeinander – ein Standort, der täglich zahlreiche potenzielle Kunden, Partner und Fachkräfte anzieht. Alles, was erfolgreiche Unternehmen brauchen – direkt vor Ort: Das umliegende Gebiet ist geprägt von etablierten Handels- und Gewerbebetrieben, wodurch ein starkes wirtschaftliches Netzwerk und wertvolle Synergieeffekte entstehen. Die Nähe zur A2 (Südautobahn) ermöglicht schnelle Verbindungen nach Graz, Wien, in die Südosteuroparegion sowie in die umliegenden Wirtschaftsräume. Dank Bus- und Bahnanbindung ist der Standort auch ohne PKW bestens zu erreichen. Ein Standort, der viele Anforderungen auf einmal erfüllt Das Objekt vereint Verkaufsflächen, Bürobereiche, großzügige Lagerkapazitäten und zahlreiche Parkmöglichkeiten – alles an einem Ort, der effiziente Abläufe und maximale Flexibilität ermöglicht. Lagevorteile im Überblick: - Zentrale Verkehrslage mit idealer Anbindung an A2, S35 und B54 - Hohe Kundenfrequenz im etablierten Handels- und Gewerbegebiet - Hervorragende Sichtbarkeit durch Ecklage und gut zugängliche Zufahrten - Kurze Wege zu Nahversorgern, Gastronomie und Banken - Großzügige Freiflächen für Kunden- und Mitarbeiterparkplätze - Logistisch optimale Voraussetzungen für Anlieferung und Warenverteilung Dieser Standort bietet alles, was einen erfolgreichen Unternehmenssitz auszeichnet: exzellente Erreichbarkeit, ein starkes wirtschaftliches Umfeld, vielfältige Nutzungsmöglichkeiten und eine Infrastruktur, die moderne Betriebe bestmöglich unterstützt. Eine ideale Wahl für Unternehmen, die in Gleisdorf wachsen oder sich neu positionieren möchten.

Beschreibung der Immobilie

Ein Standort mit Strahlkraft: Das vielseitige Gewerbejuwel in Gleisdorf – perfekte Flächen, viele Stellplätze, große Lagerhalle und Raum für Wachstum. Jetzt im 3D-Rundgang erleben!

Ein Standort mit Strahlkraft: Das vielseitige Gewerbejuwel in Gleisdorf – perfekte Flächen, viele Stellplätze, große Lagerhalle und Raum für Wachstum. Jetzt im 3D-Rundgang erleben!



Ein außergewöhnliches Gewerbeobjekt zur Miete in Gleisdorf – perfekt für Unternehmen, die mehr erreichen wollen



Willkommen an einem Ort, an dem Ideen Gestalt annehmen und Unternehmen ihre volle Kraft entfalten können. Dieses Gewerbeobjekt ist nicht einfach eine Immobilie – es ist ein Standort mit Charakter, Ausstrahlung und klarer Wirkung.

Hier verbinden sich moderne Architektur, großzügige Flächen und eine Infrastruktur, die wie geschaffen ist für Betriebe, die Professionalität, Komfort und Zukunftsorientierung schätzen.



Ob Sie expandieren, neu durchstarten oder Ihrem Unternehmen eine repräsentative Adresse geben möchten: Dieser Standort bietet die ideale Bühne für Ihren Erfolg.



--> Hier geht es zum 3D-Rundgang!



HIGHLIGHTS:




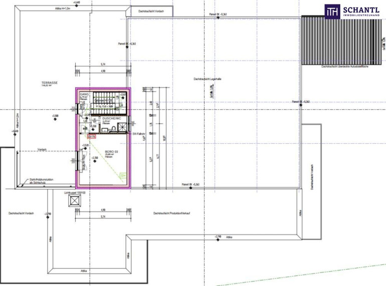
  • Gesamtnutzfläche von rund 680 m² – optimale Größe für Betriebe mit kombinierten Nutzungen.



  • Repräsentative Verkaufs-/Showroomfläche – ideal für Kundenzonen oder Produktpräsentationen.



  • Moderne, lichtdurchflutete Büroeinheit – hochwertiges Ambiente für Mitarbeiter und Kunden.



  • Großzügige, ebenerdig befahrbare Lagerhalle – perfekte Basis für Logistik oder Produktion.



  • Terrasse mit 146 m² Außenfläche – nutzbar für Pausen, Aufenthaltsbereiche oder Firmenevents.



  • 25 PKW-Stellplätze direkt am Objekt – ideal für hohe Kundenfrequenz und Mitarbeiterkomfort.



  • Photovoltaikanlage mit 45 kWp und 35 kW Speicher – effektive Energiekostenreduktion.



  • Flexible Raumaufteilung – Flächen können je nach Unternehmensstruktur angepasst werden.



  • Gepflegter Gesamtzustand, sofort nutzbar – keine Wartezeiten, keine Sanierung nötig.



  • Erstklassige Verkehrsanbindung an die A2 – schnelle Erreichbarkeit für Kunden, Lieferanten und Mitarbeiter.










FACTS:




  • Nutzfläche gesamt: ca. 680 m²



  • Bürofläche: ca. 69 m²



  • Showroom/Verkaufsfläche: ca. 42 m²



  • Lagerhalle: ca. 260 m²



  • PKW-Stellplätze: 25 (davon 3 überdacht)




AUSSTATTUNG:



Die Immobilie bietet eine moderne technische Infrastruktur mit effizienter Heiz- und Klimatechnik, IT-Vernetzung und hochwertiger Elektroinstallation. Die Photovoltaikanlage unterstützt nachhaltige Betriebsabläufe und reduziert langfristig Energiekosten. Die Raumaufteilung ist flexibel und kann individuell adaptiert werden.



LAGE:



Die Liegenschaft befindet sich in einem stark frequentierten Gewerbegebiet in Gleisdorf.

Die A2-Südautobahn ist in wenigen Minuten erreichbar, ebenso Einkaufsmöglichkeiten, Gastronomie und öffentliche Verkehrsmittel. Der Standort kombiniert Sichtbarkeit, Erreichbarkeit und optimale regionale Anbindung.



NUTZEN FÜR IHR UNTERNEHMEN:



Das Objekt eignet sich hervorragend für Handelsbetriebe, Produktionsbetriebe, Logistikunternehmen oder Betriebe mit Mischformen. Es bietet:




  • eine professionelle Außendarstellung,



  • effiziente Arbeitsabläufe dank klarer Zonierung,



  • hervorragende Logistikmöglichkeiten,



  • nachhaltige Betriebskosten,



  • ideale Erweiterbarkeit.




FAZIT:



Eine Gewerbeimmobilie, die durch Flexibilität, moderne Ausstattung und eine strategisch wertvolle Lage überzeugt.

Der ideale Standort für Unternehmen, die wachsen wollen und Wert auf einen repräsentativen Unternehmensauftritt legen.



Jetzt die Chance nutzen und dieses hochwertige Gewerbeobjekt in Gleisdorf anmieten.





Anmerkung: Sämtliche Wartungs- und Instandhaltungsarbeiten sind vom Mieter direkt zu beauftragen.





Worauf noch warten?



Vereinbaren Sie noch heute eine Besichtigung oder eine persönliche Beratung mit uns!



Sie wollen Ihre Immobilie verkaufen? Dann sind Sie bei uns goldrichtig!

Wir sind gerne für Sie da und unterstützen Sie unverbindlich bei der Bewertung Ihrer Immobilie. Mit viel Sorgfalt stellen wir Ihnen alle wichtigen Informationen und Unterlagen zusammen, damit Sie die besten Entscheidungen treffen können.



In Kooperation mit unserer SFI Vermögenstreuhand begleiten wir Sie bei der Verwirklichung Ihres Traumobjekts und unterstützen Sie beim nachhaltigen Vermögensaufbau. Mit unseren erfahrenen Experten sorgen wir dafür, dass Sie die besten Konditionen erhalten – damit Ihre Träume Wirklichkeit werden!



http://www.schantl-ith.at in Kooperation mit www.sfi-invest.com 



Die Angaben über das angebotene Objekt erfolgen mit der Sorgfalt eines ordentlichen Immobilienmaklers; für die Richtigkeit solcher Angaben, die auf Informationen der über das Objekt Verfügungsberechtigten beruhen, wird keine Gewähr geleistet!


Wir weisen darauf hin, dass zwischen dem Vermittler und dem zu vermittelnden Dritten ein familiäres oder wirtschaftliches Naheverhältnis besteht.


Der Vermittler ist als Doppelmakler tätig.

Infrastruktur / Entfernungen

Gesundheit
Arzt <500m
Apotheke <1.000m
Klinik <10.000m

Kinder & Schulen
Schule <750m
Kindergarten <500m
Höhere Schule <750m

Nahversorgung
Supermarkt <250m
Bäckerei <500m

Sonstige
Geldautomat <500m
Bank <750m
Post <750m
Polizei <1.250m

Verkehr
Bus <250m
Bahnhof <500m
Autobahnanschluss <1.500m
Flughafen <9.000m

Angaben Entfernung Luftlinie / Quelle: OpenStreetMap

Eckdaten Objektnr. 297179

Art: Halle / Lager / Produktion
Land: Österreich
Baujahr: 2023
Zustand: Neuwertig
Alter: Neubau
Kaltmiete (netto): 10.000,00 €
Kaltmiete: 10.880,48 €
Betriebskosten: 586,16 €
MwSt Gesamt: 2.117,23 €
Nutzfläche: 682,49 m²
Grundstücksfl.: 2.260,00 m²
Lagerfläche: 260,43 m²
Verkaufsfläche: 42,63 m²
Bürofläche: 69,40 m²
Bäder: 1
WC: 4
Terrassen: 1
Stellplätze: 25
Heizwärmebedarf:  C  53,30 kWh/m²a
fGEE:  A+  0,69
Nebenkostenübersicht Miete Immobilie merken Exposé

Ausstattung

Fliesen, Solarenergie, Fußbodenheizung, Einbauküche, Bad mit Fenster, Dusche, DV-Verkabelung, Kabel/Satelliten-TV, Carport, Parkplatz, Alarmanlage, Sicherheitskamera


Immobilie anfragen


Ihre persönliche Beratung

Schantl ITH Immobilientreuhand GmbH

Nikolaus Kronabitter

Schantl ITH Immobilientreuhand GmbH

T +436645411047

H +43 664 2540410