Ihr neuer Wohn(T)raum inkl. Wohlfühloase / Einzigartig und besonders

Haus , 2000 Stockerau


Beschreibung der Immobilie

Ihr neuer Wohn(T)raum inkl. Wohlfühloase / Einzigartig und besonders

Sie sind auf der Suche nach Ihrem neuen Zuhause?



Das beeindruckend & einzigartige Holzhaus befindet sich in Stockerau / Unterzögersdorf und wird Sie beeindrucken.

Der Wintergarten wurde im Jahr 2017 errichtet und verfügt über eine hochwertige Überdachung mit einer elektrisch zu öffnenden Glaskonstruktion. 

Errichtungsjahr: 2006



Highlights der Liegenschaft:



  • uneinsichtiger Garten / absolute Privatsphäre 
  • Pool im Innenbereich mit 5 x 3 m inkl. Heizung
  • Sauna/Solarium & ebenerdige Dusche + Doppelwaschbecken
  • Photovoiltakanlage 10 kw
  • Doppelgarage
  • Carport
  • Einbauküche inkl. Geräte
  • 3 fach verglaste Holz/Alu Fenster + Sonnen- & Insektenschutz
  • uvm.


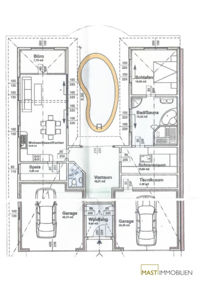
Raumaufteilung: (Plan ersichtlich)
In der Zufahrt des Hauses befinden sich 2 separat zu befahrene Garagen mit direkten Zugang ins Haus. Neben dem Haus befindet sich des weiteren ein Stellplatz inkl. Carport. Der Eingangsbereich mit ca. 6,50 m² bietet ausreichend Platz für Ihre Garderobe, sollte das nicht reichen, gibt es immer noch ein Vorzimmer mit ca. 16,30 m². Die Wohnküche umfasst eine Fläche von ca. 29 m² und wurde mit einer hochwertigen Küche inkl. Geräte ausgestattet und ist im Kaufpreis inkludiert. Nach dem Wohnzimmer befindet sich ein Büro mit ca. 7,60 m² dass sich auch als Gäste- oder kleines Kinderzimmer eignet. Das Master Schlafzimmer befindet sich gegenüber des Wohnbereichs nach dem "überdachten Indoorpool" und ist mit knapp 15 m² ausreichend groß und bietet aufgrund der Gartenausrichtung absolute Ruhe. Für Ihre Garderobe gibt es einen großen und extrahohen Schrankraum im Ausmaß von ca. 10,50 m². Das modern gestaltete Badezimmer verfügt über eine Dusche, Sauna, Solarium, Doppelwaschbecken und WC. Sämtliche Schiebetüren und Fenster sind mit Insektenschutzgitter ausgestattet. 



Besonderes Highlight ist der 5x3 große Indoorpool der ganzjährig zum relaxen einlädt. Alternativ lässt sich das Glasdach über dem Pool elektrisch öffnen.



Infrastruktur:
Stockerau ist aufgrund seiner zahlreichen Nahversorger, Restaurants und Geschäften des täglichen Bedarfs, ein beliebter Ort am Speckgürtel Wiens. Mit dem Auto erreichen Sie die Wiener Stadtgrenze binnen 15 - 20 min.

Der Bahnhof ist ca. 3,2 km entfernt



Ansehen zahlt sich aus, Sie erreichen mich unter 0676 - 342 77 18 oder per mail unter md@mast-immo.at



Ihr Immobilienberater

Herr Manuel Daniloglu

MAST Immo GmbH



Kosten:

- Grunderwerbssteuer: 3,5%

- Eintragungsgebühr: 1,1%

- Maklerhonorar: 3% zzgl. MwSt.

- KV & Notarabwicklung: nach Absprache 


Hinweis gemäß Energieausweisvorlagegesetz: Ein Energieausweis wurde vom Eigentümer bzw. Verkäufer, nach unserer Aufklärung über die generell geltende Vorlagepflicht, sowie Aufforderung zu seiner Erstellung noch nicht vorgelegt. Daher gilt zumindest eine dem Alter und der Art des Gebäudes entsprechende Gesamtenergieeffizienz als vereinbart. Wir übernehmen keinerlei Gewähr oder Haftung für die tatsächliche Energieeffizienz der angebotenen Immobilie.


Wir weisen darauf hin, dass zwischen dem Vermittler und dem zu vermittelnden Dritten ein familiäres oder wirtschaftliches Naheverhältnis besteht.


Der Vermittler ist als Doppelmakler tätig.

Infrastruktur / Entfernungen

Gesundheit
Arzt <1.500m
Apotheke <4.500m
Krankenhaus <4.000m

Kinder & Schulen
Schule <2.000m
Kindergarten <2.000m

Nahversorgung
Supermarkt <2.500m
Bäckerei <2.000m

Sonstige
Geldautomat <2.000m
Bank <2.000m
Post <2.500m
Polizei <4.500m

Verkehr
Bus <500m
Autobahnanschluss <2.000m
Bahnhof <1.000m
Flughafen <2.000m

Angaben Entfernung Luftlinie / Quelle: OpenStreetMap

Eckdaten Objektnr. 5387/8484

Art: Haus
Land: Österreich
Baujahr: 2006
Zustand: Gepflegt
Kaufpreis: 997.000,00
Betriebskosten: 120,00 €
Wohnfläche: 109,00 m²
Grundstücksfl.: 600,00 m²
Zimmer: 3
Bäder: 1
WC: 2
Stellplätze: 1
Nebenkostenübersicht Kauf Immobilie merken Exposé

Ausstattung

Fliesen, Fußbodenheizung, Kamin, Einbauküche, Dusche, Badewanne, Carport, Garage, Sauna, Swimmingpool


Immobilie anfragen


Ihre persönliche Beratung

MAST Immo GmbH

Manuel Daniloglu

MA.ST Immobilien & Design e.U.

T +43 676 342 77 18