CLOUD 9 – Grüne Höhe. Goldene Lage.
Wohnung
,
1190
Wien
,
Agnesgasse
Beschreibung der Immobilie
CLOUD 9 – Grüne Höhe. Goldene Lage.
Agnesgasse 9 – Exklusiv wohnen über der Stadt
In erhöhter Grünlage des noblen 19. Bezirks, zwischen Weingärten und Wienerwald, entsteht mit CLOUD 9 ein Rückzugsort für Menschen mit höchsten Ansprüchen. In der Agnesgasse 9, umgeben von eleganten Villen und gepflegten Gärten, verbinden sich Ruhe, Natur und Stadtblick zu einem einzigartigen Lebensgefühl. Die Innenstadt ist nur 15 Fahrminuten entfernt – der Wienerwald beginnt direkt vor der Haustür.
CLOUD 9 umfasst 11 hochwertig ausgestattete Eigentumswohnungen mit Wohnflächen von ca. 65 bis 169 m². Jede Einheit verfügt über großzügige Außenflächen – Eigengärten, Terrassen oder Balkone mit beeindruckenden Ausblicken. Die durchdachte Architektur sorgt für helle Räume, fließende Übergänge und maximale Privatsphäre. Ein automatisiertes Zufahrtssystem mit Kennzeichenerkennung öffnet die Tiefgarage mit 11 Stellplätzen – optional mit E-Ladestationen.
Nachhaltiges Bauen wird hier konsequent umgesetzt – diskret und effizient. Eine hauseigene Photovoltaikanlage, Luftwärmepumpe, Deckenkühlung sowie eine Regenwasserzisterne für die Gartenbewässerung schaffen ökologische und ökonomische Vorteile – ganz ohne Kompromisse beim Wohnkomfort.
Das barrierefreie Gebäude überzeugt mit einem stilvollen, repräsentativen Entree und exklusiven Gemeinschaftsbereichen. Eine private Yoga- und Fitnesslounge mit Infrarotkabine, ein Kneippbecken im Garten sowie ruhige Rückzugszonen bieten vielfältige Möglichkeiten zur Regeneration. Der Concierge-Service rundet das Angebot ab – ob Personal Training, Massage, Tischreservierung oder Besorgungen des täglichen Bedarfs: alles ist nur einen Anruf entfernt.
Diese Wohnungen bieten mehr als nur Raum – sie bieten Lebensraum für Menschen mit Anspruch. Architektur, Lage und Ausstattung bilden eine stimmige Einheit. Wer in Wien-Sievering eine Luxusimmobilie kaufen möchte, findet in CLOUD 9 ein seltenes Angebot.
Das Projekt - Luxus in Bestlage
- 11 Eigentumswohnungen (2,5 bis 5 Zimmer)
- Wohnflächen von ca. 65 m² bis 169 m²
- großzügige Freiflächen
- 11 Kfz-Tiefgaragenstellplätze (E-Ladestationen optional)
- Fahrrad- und Kinderwagenabstellraum
- Einlagerungsräume im Gartengeschoß
- Yoga-/Fitnessraum
- Wellnessoase mit Infrarotkabine, Dusche und WC
- Photovoltaik
- Regenwasserzisterne
Ausstattung auf First-Class-Niveau
- Fußbodenheizung mittels Luftwärmepumpe
- Temperierung (Kühlung) mittels Bauteilaktivierung
- Holz-Alu-Fenster 3fach verglast
- Außenraffstores
- Elegante Landhausdielen (Eiche)
- Hochwertige Marken-Sanitäreinrichtungsgegenstände
- Geschmackvolles Feinsteinzeug in den Nassräumen
- Einbruchshemmende Sicherheitseingangstüren
- Videosprechanlage
Leben in einer der begehrtesten Wohngegenden Wiens
Sievering steht für Lebensqualität auf höchstem Niveau. Die Umgebung bietet idyllische Spazier- und Laufstrecken, Radwege, elegante Heurige und eine spektakuläre Aussicht über Wien. Der nahegelegene Stadtwanderweg 2, das Areal Am Himmel oder der Cobenzl liegen nur wenige Gehminuten entfernt.
Sievering ist bekannt für seine renommierten Heurigenlokale und gepflegte Gastronomie – viele davon fußläufig erreichbar. Der Weinort Grinzing liegt nur wenige Minuten entfernt. Zahlreiche gehobene Nahversorger, Feinkostläden und Supermärkte befinden sich in der nahegelegenen Obkirchergasse und Umgebung. Das Q19 Einkaufsquartier Döbling ist mit dem Auto in ca. 10 Minuten erreichbar.
In unmittelbarer Nähe befinden sich Kindergärten, Volksschulen und internationale Bildungseinrichtungen, darunter die renommierte American International School und die Schule der Dominikanerinnen. Zahlreiche niedergelassene Ärzte, Apotheken sowie das Krankenhaus Göttlicher Heiland und das Rudolfinerhaus garantieren eine ausgezeichnete medizinische Versorgung.
Exzellent angebunden - ruhig gelegen
Die Buslinie 39A befindet sich nur wenige Schritte von der Haustür entfernt (Haltestelle Agnesgasse). Sie verbindet Sie bequem mit dem Bahnhof Wien Heiligenstadt (U4, S-Bahn, Regionalzüge) sowie mit dem 19. Bezirkszentrum (Obkirchergasse, Krottenbachstraße).
Die Wiener Innenstadt (Stephansplatz) ist mit dem Auto in ca. 15–20 Minuten, mit öffentlichen Verkehrsmitteln in rund 30 Minuten erreichbar.
Der Flughafen Wien-Schwechat ist über die A23 und S1 in ca. 30–35 Minuten erreichbar.
Ein detaillierten Überblick finden Sie auf unsere EHL-Projekthomepage.
Provisionsfrei für den Käufer!
Fertigstellung voraussichtlich Q4/2027
Wir weisen darauf hin, dass zwischen dem Vermittler und dem zu vermittelnden Dritten ein familiäres oder wirtschaftliches Naheverhältnis besteht.
Der Vermittler ist als Doppelmakler tätig.
Infrastruktur / Entfernungen
Gesundheit
Arzt <1.000m
Apotheke <1.000m
Klinik <2.500m
Krankenhaus <2.750m
Kinder & Schulen
Schule <1.000m
Kindergarten <750m
Universität <2.250m
Höhere Schule <2.250m
Nahversorgung
Supermarkt <750m
Bäckerei <1.250m
Einkaufszentrum <4.000m
Sonstige
Geldautomat <1.250m
Bank <1.250m
Post <1.000m
Polizei <1.750m
Verkehr
Bus <250m
Straßenbahn <1.500m
U-Bahn <3.500m
Bahnhof <2.500m
Autobahnanschluss <4.000m
Angaben Entfernung Luftlinie / Quelle: OpenStreetMap
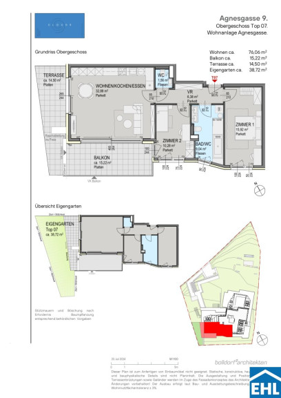
Eckdaten Objektnr. 86317
| Art: | Wohnung |
| Land: | Österreich |
| Zustand: | Erstbezug |
| Alter: | Neubau |
| Kaufpreis: | 789.000,00 € |
| Wohnfläche: | 76,06 m² |
| Zimmer: | 3 |
| Bäder: | 1 |
| WC: | 2 |
| Balkone: | 1 |
| Terrassen: | 1 |
| Garten: | 38,72 m² |
| Keller: | 13,23 m² |
| Heizwärmebedarf: | B 27,90 kWh/m²a |
| fGEE: | A+ 0,61 |
Ausstattung
Fliesen, Parkett, Personenaufzug, Bad mit Fenster, Badewanne, Dusche
Ihre persönliche Beratung
Dieser Makler ist ein offizielles Mitglied des IR – ir.at Mehr Erfahren
