Bestlage Nähe Mariahilferstraße! Exquisite 6-Zimmer-Maisonette-Wohnung mit romantischem Eigengarten und Garagenplatz

Wohnung , 1060 Wien


Beschreibung der Immobilie

Bestlage Nähe Mariahilferstraße! Exquisite 6-Zimmer-Maisonette-Wohnung mit romantischem Eigengarten und Garagenplatz

Mitten im 6. Wiener Gemeindebezirk gelangt in einem umfassend sanierten Biedermeier-Haus aus dem Jahre 1824 mit typisch gegliederter Fassade, eine helle, gepflegte, sehr gut geschnittene Wohnung mit Büro auf zwei Ebenen mit ca. 159 m² Wohn- und ca. 59 m² Bürofläche, einem Balkon sowie einem ca. 55 m² großen Garten zum sofortigen Verkauf.



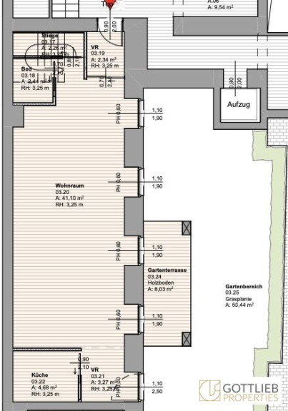
Man betritt diese Wohnung im Erdgeschoss und gelangt über einen Eingangsbereich in den geräumigen Wohnraum, die Teeküche, ein Bad sowie eine Toilette. Vom Wohnzimmer aus erreicht man den romantischen Garten mit einer ca. 8 m² großen Terrasse - perfekt geeignet für gemütliche Sommerabende mit Freunden und Familie.



Über die Treppe im Eingangsbereich kommt man in das ca. 159 m² große Obergeschoss, das einen weitläufigen Wohn-Ess-Bereich mit offener Küche, einen Balkon, fünf weitere Zimmer, drei begehbare Garderoben, ein Masterbad, ein weiteres Duschbad und zwei separate Toiletten bietet. 



Diese wunderbar lichtdurchflutete Liegenschaft mit original erhaltenem Deckengewölbe hat eine Wohn- und untergeordnete Bürowidmung. Diese Kombination bietet Wohnen und Arbeiten in einem entspannten sowie stilvollen Ambiente.



Der Wohnung sind drei Kellerabteile zugeordnet.



Ein Garagenstellplatz kann optional um € 50.000,00 erworben werden.





+ barrierefrei



+ ca. 218 m² Wohn- und Bürofläche



+ ca. 55 m² Gartenfläche inklusive Terrasse



+ ca. 8 m² Balkon



+ Erdgeschoss und 1. Liftstock, bestehend aus



+ zwei Wohneinheiten und



+ Büro



+ Eingangsbereich



+ Flur



+ Wohn-Ess-Bereich mit offener Küche



+ vier weitere Zimmer im Obergeschoss



+ Büroraum im Erdgeschoss



+ Teeküche



+ Masterbad



+ zwei Duschbäder



+ zwei separate Gästetoiletten



+ drei Schrankräume



+ der Wohnung sind drei Kellerabteile zugeordnet





Ausstattung



+ Parkettböden



+ Fliesenböden



+ offener Kamin



+ komplett ausgestattete Küche mit Einbaugeräten



+ Wannenbad mit zwei Waschbecken sowie Handtuchwärmer



+ Duschbad



+ Gasetagenheizung



Garagenstellplatz optional um € 50.000,00





Verkehrsanbindung



+ U-Bahn-Linien U3, U4, U6



+ Autobus-Linie 13A, 14A, 57A



+ Straßenbahn-Linie 18





Infrastruktur



Die einzigartige Lage dieser Wohnung zwischen dem Haus des Meeres und der Fußgängerzone der Mariahilfer Strasse bietet zahlreiche Einkaufsmöglichkeiten, diverse Lokale, klassische Wiener Kaffeehäuser, Ärzte, Banken sowie Apotheken. Der nahegelegene Naschmarkt mit seinen unverwechselbaren Marktständen und dem Flohmarkt lädt zum Verweilen und Einkaufen ein. Veranstaltungsorte, wie z.B. der 'Stadtsaal', das Apollo-Kino und kulturelle Angebote im Museumsquartier sowie im Kunst- und Naturhistorischen Museum, im Raimundtheater, genauso wie in der Wiener Innenstadt sind fußläufig sehr gut erreichbar und bieten gelungene Freizeitmöglichkeiten.



Als Naherholungsgebiet empfiehlt sich der Hubert-Marischka-Park sowie das 'Haus des Meeres' mit seinen Grünflächen und Spielplätzen.



Mit dem Auto gelangt man in Kürze über die Linke Wienzeile zur Wiener Westausfahrt in Fahrtrichtung Autobahn A1.





Sonstiges



Wir ersuchen um Verständnis, dass wir aufgrund unserer Nachweispflicht gegenüber dem Eigentümer nur Anfragen mit vollständigen Kontaktdaten (Name, Adresse, Mobilnummer, Email) bearbeiten können.


Wir weisen darauf hin, dass zwischen dem Vermittler und dem zu vermittelnden Dritten ein familiäres oder wirtschaftliches Naheverhältnis besteht.


Der Vermittler ist als Doppelmakler tätig.

Infrastruktur / Entfernungen

Gesundheit
Arzt <500m
Apotheke <500m
Klinik <500m
Krankenhaus <500m

Kinder & Schulen
Schule <500m
Kindergarten <500m
Universität <1.000m
Höhere Schule <1.000m

Nahversorgung
Supermarkt <500m
Bäckerei <500m
Einkaufszentrum <500m

Sonstige
Geldautomat <500m
Bank <500m
Post <500m
Polizei <500m

Verkehr
Bus <500m
U-Bahn <500m
Straßenbahn <500m
Bahnhof <500m
Autobahnanschluss <4.500m

Angaben Entfernung Luftlinie / Quelle: OpenStreetMap

Eckdaten Objektnr. 4003

Art: Wohnung
Land: Österreich
Baujahr: 1824
Zustand: Voll_saniert
Alter: Altbau
Kaufpreis: 1.985.000,00
Kaufpreis / m²: 7.071,35 €
Betriebskosten: 239,48 €
MwSt Gesamt: 51,49 €
Wohnfläche: 158,95 m²
Nutzfläche: 280,71 m²
Bürofläche: 59,11 m²
Zimmer: 6
Bäder: 3
WC: 3
Balkone: 1
Terrassen: 1
Stellplätze: 1
Garten: 54,68 m²
Keller: 5,74 m²
Heizwärmebedarf:  D  115,30 kWh/m²a
fGEE:  E  2,69
Nebenkostenübersicht Kauf Immobilie merken Exposé

Ausstattung

Parkett, Fliesen, Gas, Etagenheizung, Wohnküche / offene Küche, Personenaufzug, Badewanne, Dusche, Kabel/Satelliten-TV, Garage


Immobilie anfragen


Ihre persönliche Beratung

Desirée Gottlieb

Gottlieb Properties Immobilientreuhand GmbH

H + 43 699 14702557