Wohnen in Verbundenheit - charmante 2 Zi im Dachgeschoss mit Klimaanlage - B Top 11 inkl. 1 TG-Platz

Wohnung - Dachgeschoß, 2540 Bad Vöslau , Hügelgasse 21


Zentrumslage

Beschreibung der Immobilie

Wohnen in Verbundenheit - charmante 2 Zi im Dachgeschoss mit Klimaanlage - B Top 11 inkl. 1 TG-Platz

Herzlich willkommen bei einem niveauvollen Projekt im Herzen von Bad Vöslau, welches zwischen Hochstraße und Hügelgasse errichtet wurde.



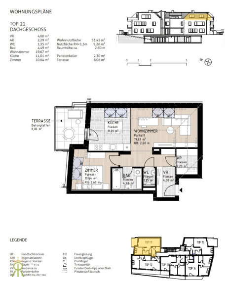
Die angebotene Wohnung B Top 11 verfügt über ein Schlafzimmer und ein großes Wohn- Esszimmer mit Küche. Die gut geschnittene Terrasse ist gegen Norden ausgerichtet und wird damit auch im Hochsommer zum angenehmen Rückzugsort. Eine kompakte und klassische Dachgeschosswohnung mit guter Belichtung und Gemütlichkeit erwartet Sie hier.



Die Ausstattung:



Echtholz-Eiche-Parkett geklebt in den Wohnräumen, Feinsteinzeug am Boden, keramische Platten an den Wänden in den Nassräumen, Fenster mit Mehrfach-Isolier-Verglasung, Sanitärausstattung von Laufen/Geberit, Armaturen von Grohe, Außenrollos elektrisch, moderne Einbauküche voll ausgestattet. Heizung und Warmwasser mittels Fernwärme, Fußbodenheizung, Ziegelmassivbauweise. Für nähere Details sende ich sehr gerne die Bau- und Ausstattungsbeschreibung zu.



Das Mietverhältnis ist auf 5 Jahre befristet, mit Option auf Verlängerung.

Ein Tiefgaragenplatz mit der Nummer 23 (behindertengerecht) ist in der Miete inkludiert, ein zweiter kann optional angemietet werden.



Wohnen heißt: die Verbindung spüren.



Bestehend aus insgesamt 4 harmonisch angeordneten Baukörpern und insgesamt 48 Wohnungen, verbindet dieses Neubauprojekt das geschäftige Treiben der Hochstraße mit dem idyllischen Charme der Hügelgasse. Es verbindet Alt mit Neu, den ebenen Teil von Bad Vöslau mit dem höher gelegenen Teil, das Zentrum mit der Villengegend, so wie es mit einem breiten Mix an Wohnungen auch Alt und Jung und Singlehaushalte mit Familien verbinden soll.



Für einen praktikablen Durchgang, welcher Sie von der Hochstraße zur Hügelgasse führt, sorgen die Architekten. Für Ihre Verbindung zum Projekt dürfen Sie selbst sorgen! Senden Sie mir eine unverbindliche Objektanfrage und ich berate Sie gerne.



Alle verfügbaren Wohnungen in übersichtlicher Form finden Sie hier: www.ribarskireal.estate



Das Projekt liegt perfekt:



In absoluter Zentrumslage erreichen Sie Drogerie, Billa, Bank, Rathaus, Polizei und Post, sowie zahlreiche weitere Geschäfte in wenigen Minuten zu Fuß. Restaurants, das historische Thermalbad und der außergewöhnlich schöne Schlosspark in der Nähe runden das Wohnerlebnis mit Erholungsfaktor ab. Wanderwege, Radwege, Tennisplatz, Minigolfplätze, Heurige und der bekannte Harzberg machen Bad Vöslau zu einer gehobenen und begehrten Wohngegend. Ärzte, Apotheke, eine Stadtbücherei und ein breites Bildungsangebot sorgen für Attraktivität in jeder Lebensphase. Die A2 Anschlussstelle Kottingbrunn ist in 3 Autominuten erreichbar und führt Sie in 25 Minuten nach Wien oder in 15 Minuten nach Wiener Neustadt. Der Bahnhof Bad Vöslau mit Park and Ride ist ebenfalls in 3 Minuten mit dem Auto oder in 15 Minuten zu Fuß erreichbar.





Ich freue mich auf Ihre Anfrage!



Angebote immer schon vor Vermarktungsbeginn sehen? >>> Folgen Sie mir auf Facebook oder Linkedin.


Der Immobilienmakler erklärt, dass er – entgegen dem in der Immobilienwirtschaft üblichen Geschäftsgebrauch des Doppelmaklers – einseitig nur für den Vermieter tätig ist.

Infrastruktur / Entfernungen

Gesundheit
Arzt <150m
Apotheke <300m
Klinik <4.650m
Krankenhaus <5.100m

Kinder & Schulen
Kindergarten <350m
Schule <600m

Nahversorgung
Supermarkt <125m
Bäckerei <250m
Einkaufszentrum <3.875m

Sonstige
Bank <125m
Geldautomat <125m
Post <125m
Polizei <225m

Verkehr
Bus <225m
Bahnhof <1.050m
Straßenbahn <4.850m
Autobahnanschluss <1.225m
Flughafen <3.250m

Angaben Entfernung Luftlinie / Quelle: OpenStreetMap

Eckdaten Objektnr. 451

Art: Wohnung - Dachgeschoß
Land: Österreich
Baujahr: 2023
Zustand: Erstbezug
Alter: Neubau
Gesamtmiete: 1.134,69
Kaltmiete (netto): 881,00 €
Kaltmiete: 1.022,70 €
Betriebskosten: 119,56 €
MwSt Gesamt: 111,99 €
Wohnfläche: 62,71 m²
Nutzfläche: 70,77 m²
Zimmer: 2
Bäder: 1
WC: 1
Terrassen: 1
Keller: 2,30 m²
Heizwärmebedarf:  B  25,90 kWh/m²a
fGEE:  A  0,76
Nebenkostenübersicht Miete Immobilie merken Exposé

Ausstattung

Fliesen, Parkett, Fußbodenheizung, Personenaufzug, Badewanne, Tiefgarage


Immobilie anfragen


Ihre persönliche Beratung

Ribarski Real Estate GmbH

Mag. (FH) Monika Ribarski

Ribarski Real Estate GmbH

H +43 676 686 4444