Großes Einfamilienhaus mit Lagerflächen in Rust im Tullnerfeld, Nähe Tullnerfelder Bahnhof

Haus , 3451 Rust im Tullnerfeld


Beschreibung der Immobilie

Großes Einfamilienhaus mit Lagerflächen in Rust im Tullnerfeld, Nähe Tullnerfelder Bahnhof

Zur Anmietung steht ein Einfamilienhaus mit einer Wohnfläche von ca. 180,00 m² im Obergeschoss. Im Erdgeschoss befinden sich Abstellräume sowie ein großer Lagerraum, der als Einstellraum oder zur Ausübung von Hobbys dienen kann.



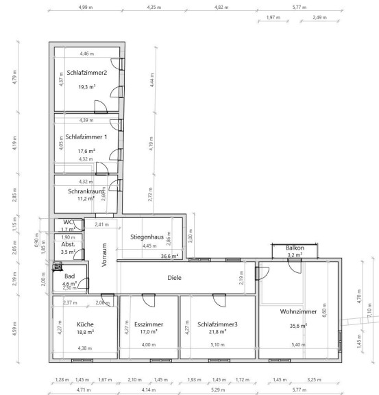
Details:



  • Stiegenhaus mit zentralem Vorraum, Gang
  • Diele mit Kachelofen
  • Küche mit Sitzecke (Kachelofen)
  • Speis
  • Esszimmer (Kachelofen)
  • Kinderzimmer
  • gr. Wohnzimmer mit Ausgang auf den ostseitigen Balkon (ca. 7m²)
  • WC mit Handwaschbecken
  • Schrankraum (Ost-Trakt)
  • 2 helle südseitig ausgerichtete Schlafzimmer (Ost-Trakt)
  • Eingang zur Wirtschaftsküche (~ 21 m²)
  • Waschküche mit Waschmaschinen Anschluss, WC, Dusche, WW-Boiler
  • Lagerraum betoniert
  • EG: geräumiger Lager-Einstellraum ( ~ 75 m²)
  • Heizraum (Öl- Zentralheizung), Kesseltausch 2008
  • Tankraum 




Das Objekt wird mit einer Öl- Zentralheizung beheizt (Kesseltausch 2008); Öl-Tank mit ca. 11 000lt. Zusätzlich ein von der Diele aus beheizbarer Kachelofen (Küche + Esszimmer)





Sanierungen:



  • Fenster- und Fassade und Dacheindeckung wurden 1994 erneuert
  • der Rauchfang und Heizkesseltausch erfolgte 2008
  • zuletzt wurden 2014 fast alle Fenster erneuert




Außenbereich:



  • Einfahrt- und vorderer Gartenbereich befestigt
  • "Laube" ca. 29 m²
  • Garten und Grünfläche zur freien Gestaltung
  • Hausbrunnen




Anschlüsse: Kanal, Ortswasser, Strom, Telefon, Sat, Hausbrunnen





Kosten:



Hauptmietzins € 1.319,43



Betriebskosten € 170,00



Kaution: € 7.000,00





Befristung: unbefristet





Bei Interesse kann die vorhandene, sehr große Garage mit ca. 38m² ebenfalls angemietet werden:



monatliche Zusatzkosten: € 250,00





_____________________________________________________________________________________________________



Bei Interesse vereinbaren Sie bitte einen Besichtigungstermin mit:



WIRTH Immobilien GmbH



02275 21400





Auf das wirtschaftliche/familiäre Naheverhältnis zum Auftraggeber/Hausverwaltung bzw. Auftragsverhältnis zum Vermieter/Hausverwaltung wird hingewiesen. Der Mietvertragsabschluss bedarf der Unterfertigung eines schriftlichen Mietvertrages (Schriftlichkeitsvorbehalt).


Der Immobilienmakler erklärt, dass er – entgegen dem in der Immobilienwirtschaft üblichen Geschäftsgebrauch des Doppelmaklers – einseitig nur für den Vermieter tätig ist.

Infrastruktur / Entfernungen

Gesundheit
Arzt <2.000m
Apotheke <3.000m
Klinik <5.500m

Kinder & Schulen
Schule <2.000m
Kindergarten <2.000m
Höhere Schule <9.500m

Nahversorgung
Supermarkt <500m
Bäckerei <500m
Einkaufszentrum <3.000m

Sonstige
Bank <2.000m
Geldautomat <2.000m
Post <2.000m
Polizei <2.500m

Verkehr
Bus <500m
Bahnhof <1.000m
Autobahnanschluss <10.000m

Angaben Entfernung Luftlinie / Quelle: OpenStreetMap

Eckdaten Objektnr. 5270/56

Art: Haus
Land: Österreich
Zustand: Modernisiert
Gesamtmiete: 1.489,43
Kaltmiete (netto): 1.319,43 €
Kaltmiete: 1.489,43 €
Betriebskosten: 100,00 €
Sonstige Kosten: 70,00 €
Wohnfläche: 180,15 m²
Nutzfläche: 361,09 m²
Grundstücksfl.: 1.002,00 m²
Zimmer: 6
Bäder: 1
WC: 1
Balkone: 1
Heizwärmebedarf:  F  234,60 kWh/m²a
fGEE:  D  2,45
Nebenkostenübersicht Miete Immobilie merken Exposé

Ausstattung

Öl, Kamin, Zentralheizung, Einbauküche, Ostbalkon, Badewanne, Dusche


Immobilie anfragen


Ihre persönliche Beratung

Sabine Trondl-Wirth

Wirth Immobilien GmbH

T +436644030665