Stadtleben trifft Gartenidylle – 3-Zimmer-Wohnung mit großem Privatgarten in Hietzing

Wohnung - Etage, 1130 Wien,Hietzing


Die Wohnung befindet sich in 1130 Wien – Hietzing, einer der beliebtesten und grünsten Wohnlagen der Stadt. Die Umgebung zeichnet sich durch eine hohe Lebensqualität, viel Ruhe und zahlreiche Grünflächen aus. Einkaufsmöglichkeiten, Restaurants, Schulen, Kindergärten sowie Ärzte befinden sich in der näheren Umgebung und sind bequem erreichbar. Für Freizeit und Erholung bieten sich unter anderem der Lainzer Tiergarten sowie der Schönbrunner Schlosspark an, die zu Spaziergängen, Sport und Erholung im Grünen einladen. Die öffentliche Verkehrsanbindung ist ebenfalls gut ausgebaut und ermöglicht eine schnelle Verbindung in die Wiener Innenstadt.

Beschreibung der Immobilie

Stadtleben trifft Gartenidylle – 3-Zimmer-Wohnung mit großem Privatgarten in Hietzing

Diese charmante Gartenwohnung befindet sich in einem architektonisch besonderen Wohnhaus im beliebten 13. Wiener Gemeindebezirk (Hietzing) und vereint außergewöhnliche Bauform mit hohem Wohnkomfort.



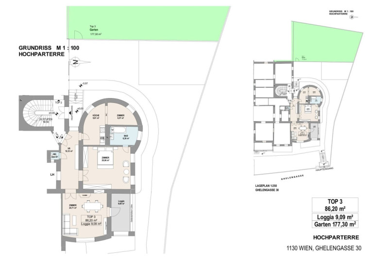
Die Wohnung verfügt über eine Wohnfläche von ca. 86,20 m² und besticht durch ihre runde Grundrissgestaltung, die dem Objekt einen einzigartigen Charakter verleiht. Große Fensterflächen sorgen für ein helles und freundliches Wohnambiente.



Das Herzstück der Wohnung bildet der helle und großzügige Wohn- und Essbereich mit ca. 24,7 m², der direkten Zugang zur Loggia (ca. 9,09 m²) bietet und zu entspannten Stunden im Freien einlädt. Der rund 177 m² große private Garten bietet viel Platz zum Entspannen, Gärtnern oder für gemütliche Stunden im Grünen.



Die Wohnung verfügt über zwei weitere Zimmer, die sich ideal als Schlafzimmer, Kinderzimmer oder Homeoffice eignen.



Die separate Küche ist funktional geschnitten und bietet ausreichend Platz für eine moderne Küchenausstattung.



Ein Badezimmer mit Badewanne sowie ein separates WC runden das Raumangebot ab.





Raumaufteilung

- Vorraum

- Großzügiges Wohnzimmer mit Essbereich

- Loggia

- Privater Garten

- Schlafzimmer

- weiteres Zimmer (Kinderzimmer / Büro)

- separate Küche

- Badezimmer mit Badewanne

- separates WC

- Wohnfläche: ca. 86,20 m²

- Loggia: ca. 9,09 m²

- Garten: ca. 177,30 m²

Infrastruktur / Entfernungen

Gesundheit
Arzt <500m
Apotheke <1.000m
Klinik <1.500m
Krankenhaus <2.000m

Kinder & Schulen
Schule <1.500m
Kindergarten <1.000m
Universität <1.000m
Höhere Schule <5.500m

Nahversorgung
Supermarkt <1.000m
Bäckerei <1.500m
Einkaufszentrum <4.500m

Sonstige
Geldautomat <1.500m
Bank <1.500m
Post <1.500m
Polizei <2.000m

Verkehr
Bus <500m
U-Bahn <2.000m
Straßenbahn <1.500m
Bahnhof <2.000m
Autobahnanschluss <4.000m

Angaben Entfernung Luftlinie / Quelle: OpenStreetMap

Eckdaten Objektnr. 4724/11764

Art: Wohnung - Etage
Land: Österreich
Baujahr: 1909
Zustand: Sanierungsbeduerftig
Alter: Altbau
Kaufpreis: 750.000,00
Wohnfläche: 86,20 m²
Zimmer: 3
Bäder: 1
WC: 1
Garten: 177,30 m²
Keller: 3,00 m²
Heizwärmebedarf:  E  158,90 kWh/m²a
fGEE:  D  2,24
Nebenkostenübersicht Kauf Immobilie merken Exposé

Ausstattung

Fliesen, Parkett, Gas, Etagenheizung, Kamin, Nordbalkon, Badewanne, Kabel/Satelliten-TV


Immobilie anfragen


Ihre persönliche Beratung

OPTIN Immobilien GmbH

Nadine Jeitschko

OPTIN Immobilien GmbH

T + 43 1 934 69 60 207

H +43 676 84 777 2207