VERKAUFSSTART - SANDLEITEN SIGNATURE RESIDENCES | EXKLUSIVES WOHNEN MIT WEITBLICK IN TOPLAGE

Wohnung , 1170 Wien


DORNBACH / KONGRESSPARK

Beschreibung der Immobilie

VERKAUFSSTART - SANDLEITEN SIGNATURE RESIDENCES | EXKLUSIVES WOHNEN MIT WEITBLICK IN TOPLAGE

EXKLUSIVES WOHNEN MIT WEITBLICK UND MEHRWERT



Am Rande von Dornbach, dem exklusiven und charmanten Stadtteil am westlichen Stadtrand von Wien, steht ein einzigartiges Neubauprojekt kurz vor der Fertigstellung. Genießen Sie eine urbane Oase mit perfekter Infrastruktur und Verkehrsanbindung und die Nähe zu den schönsten Grünoasen Wiens mit all seinen Freizeitmöglichkeiten. Die „SANDLEITEN – Signature Homes“ liegen in unmittelbarer Nähe zum wunderschönen Kongresspark und verbinden energieeffiziente Bauweise, modernes Design, exklusive Ausstattung und durchdachte Raumkonzepte mit höchster Wohnqualität zu einem harmonischen Gesamtbild.





WOHNVIELFALT MIT FREIRAUM FÜR JEDES LEBENSKONZEPT



Insgesamt entstehen 29 hochwertige Eigentumswohnungen mit großzügigen Freiflächen von bis zu 80 m², sowie ein kleines Geschäftslokal. Die den oberen Geschoße begeistern mit einem beeindrucken Fernblick. 



Die Bandbreite der Wohnungen reicht von kompakten 2-Zimmerr-Einheiten ab ca. 45 m² bis hin zu großzügigen 5-Zimmer-Familienwohnungen mit bis zu 130 m² Wohnfläche – ein durchdachtes Angebot für Singles, Paare und Familien gleichermaßen.



Jeder Wohnung ist ein eigener Einlagerungsraum zugeordnet. Für zusätzlichen Komfort stehen den Bewohnern ein Fahrradraum, ein Kinderwagenabstellraum sowie ein Kleinkinderspielplatz zur gemeinschaftlichen Nutzung zur Verfügung.



Die Kaufpreise beginnen bei EUR 349.000 für eine 2-Zimmer-Wohnung und reichen bis EUR 1.633.000 für das exklusive Dachgeschoss-Penthouse.





13 Tiefgaragenstellplätze im Haus – mit E-Ladevorbereitung 



Bei Bedarf kann ein Pkw-Stellplatz in der hauseigenen Tiefgarage zum Kaufpreis von EUR 45.000 erworben werden.



Insgesamt stehen 13 Stellplätze zur Verfügung. Sämtliche Stellplätze sind bereits für die Installation einer E-Ladestation vorbereitet.





ENERGIEEFFIZIENTE BAUWEISE & HOCHWERTIGE AUSSTATTUNG - DIE FAKTEN ÜBERZEUGEN



  • Tiefgarage mit modernen E-Ladestationen für nachhaltige Mobilität
  • Fußbodenheizung und Warmwasseraufbereitung mit energieeffizienter Luft-Wasser-Wärmepumpe.
  • Photovoltaikanlage, die den allgemeinen Stromverbrauch umweltfreundlich deckt
  • Vorbereitung für Klimaanlage, die selbst an heißen Tagen ein angenehmes Raumklima schafft
  • Großzügige und bodentiefe Fensterfronten für lichtdurchflutete und einzigartige Räume
  • 3-fach verglaste Wärmeschutzfenster mit Aludeckschale in bronze– maximale Energieeffizienz und langlebige Qualität
  • Elektrische, außenliegende Raffstores in bronze und solargesteuerte Außenbeschattung bei Dachflächenfenstern
  • Sicherheitstüren der Klasse WK III - reduziert Risiko und Versicherungskosten
  • Videotürsprechanlage mit App-Steuerung
  • exklusive Innentüren – flächenbündig mit Holzzargen - Klimaklasse A, und einer Höhe von 2,20 m 
  • hochwertiger Mehrschicht Markenparkett „Landhausdiele“ in Eiche 
  • hochwertige und stilvolle Sanitärausstattung, die sich deutlich vom Standard abhebt
  • WC-System von Fa. Tece - d.h. vorbereitet für WC-Dusche als Alternative zu Bidet uvm.
  • Terrassengeländer aus Echtglas mit Edelstahlprofilen
  • Innenwände mit doppelten Gipskartonplatten für bessere Geräuschdämmung und Stabilität
  • Video-Gegensprechanlage




ALLES AUS EINER HAND - FÜR MEHR QUALITÄT, FLEXIBILITÄT UND SICHERHEIT



Dem Bauträger ist es ein Anliegen, sich deutlich von allen anderen Anbietern zu unterscheiden und Ihnen das Beste zu bieten. Hier vereinen sich die höchsten Ansprüche an Qualität, Design und Funktionalität mit nachhaltiger und energieeffizienter Bauweise. Die Referenzprojekte sprechen für sich.



Durch die Integration der Bauleistung in das eigene Unternehmen bestehen ein hohes Eigeninteresse an einer mängelfreien und termingerechten Umsetzung und viele weitere Vorteile für die Kunden:



  • Mehrwert durch höhere Ausstattungsqualität zu konkurrenzfähigen Preisen
  • Qualitätssicherung durch kontinuierlicher Bauüberwachung
  • Mehr Klarheit bei Verantwortlichkeit und Haftung
  • Mehr Flexibilität und einen Ansprechpartner bei allfälligen Sonderwünschen (nur noch kurze Zeit möglich!)
  • Sichtbare Expertise - Referenzobjekte des Bauträgers ermöglichen auch die Prüfung der Qualität der tatsächlichen Bauausführung bei früheren Projekten


SANDLEITEN SIGNATURE RESIDENCES



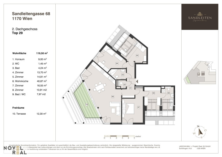
Exklusive Penthouse-Residenz mit privater Terrasse
Top 29 | 1170 Wien



Diese außergewöhnliche Penthouse-Residenz verkörpert die perfekte Symbiose aus zeitgenössischer Architektur, stilvoller Eleganz und höchstem Wohnkomfort.



Auf rund 119,5 m² Wohnfläche entfaltet sich ein durchdachtes Raumkonzept, das Großzügigkeit, klare Linienführung und ein außergewöhnliches Maß an natürlichem Licht vereint.



Das Herzstück der Wohnung bildet der beeindruckende offene Wohn- und Essbereich mit ca. 41 m², der durch seine fließende Raumgestaltung, großzügige Verglasung und den direkten Zugang zur Terrasse ein unvergleichliches Wohngefühl schafft. Hier verschmelzen Design, Funktionalität und Lebensqualität zu einem repräsentativen Gesamtbild auf höchstem Niveau.



Drei elegant proportionierte Zimmer bieten maximale Flexibilität und Privatsphäre – ideal als Master Bedroom, stilvolles Home-Office oder exklusive Gästebereiche.



Zwei hochwertig ausgestattete Badezimmer – eines davon en suite – sowie ein separates Gäste-WC erfüllen selbst höchste Ansprüche an Komfort und Funktionalität.



Ein besonderes Highlight stellt die sonnige Terrasse dar, die den Wohnraum harmonisch ins Freie erweitert und einen privaten Rückzugsort mit exklusivem Flair bietet.














Highlights auf einen Blick:



  • Exklusive Penthouse-Wohnung mit architektonischem Anspruch
  • Ca. 119,5 m² Wohnfläche mit optimaler Raumaufteilung
  • Großzügiger Wohn-/Essbereich (ca. 41 m²) mit Terrassenzugang
  • Vier flexibel nutzbare Zimmer
  • Zwei elegante Badezimmer + separates Gäste-WC
  • Sonnige Terrasse mit beeindruckendem Ausblick
  • Lichtdurchflutete Räume & hohe Privatsphäre
  • Repräsentatives Wohnambiente auf höchstem Niveau




Aus rechtlichen Gründen und aufgrund der großen Nachfragen bitten wir um Verständnis, dass wir nur Anfragen per Mail beantworten, wenn Sie uns Ihren vollständigen Namen samt Mailadresse und Mobilnummer bekanntgeben.



Alle Angaben basieren alleinig auf Informationen, die uns von unserem Auftraggeber übermittelt wurden. Trotz aller Sorgfalt können wir für die Richtigkeit, Vollständigkeit und Aktualität dieser Angaben keine Gewähr übernehmen. Jegliche Weitergabe der übermittelten Daten an Dritte ist nicht gestattet. Der Maklervertrag kommt durch schriftliche Vereinbarung oder Inanspruchnahme unserer Maklertätigkeit zustande. Der Makler kann als Doppelmakler tätig werden. Sollte das von uns nachgewiesene Objekt bereits bekannt sein, teilen sie uns dies bitte unverzüglich mit.



Die Maklergebühr ist ausschließlich bei Zustandekommen eines gültigen Rechtsgeschäfts fällig. Es wird ausdrücklich auf die Nebenkostenübersicht hingewiesen. Bei den Visualisierungen und Abbildungen der Immobilie (insbesondere von Inneneinrichtungen) kann es sich um Symbolfotos bzw. fototechnisch optimierte Fotos handeln. Hiermit weisen wir auf das Bestehen eines familiären und/oder wirtschaftlichen Naheverhältnisses zum Verkäufer hin. 




Infrastruktur / Entfernungen

Gesundheit
Arzt <500m
Apotheke <500m
Klinik <1.500m
Krankenhaus <1.000m

Kinder & Schulen
Schule <500m
Kindergarten <500m
Universität <2.000m
Höhere Schule <2.000m

Nahversorgung
Supermarkt <500m
Bäckerei <500m
Einkaufszentrum <500m

Sonstige
Geldautomat <500m
Bank <500m
Post <500m
Polizei <1.000m

Verkehr
Bus <500m
U-Bahn <1.000m
Straßenbahn <500m
Bahnhof <1.000m
Autobahnanschluss <5.000m

Angaben Entfernung Luftlinie / Quelle: OpenStreetMap

Eckdaten Objektnr. 6260

Art: Wohnung
Land: Österreich
Baujahr: 2026
Zustand: Erstbezug
Alter: Neubau
Kaufpreis: 1.390.000,00
Wohnfläche: 119,50 m²
Nutzfläche: 119,50 m²
Zimmer: 4,50
Bäder: 2
WC: 3
Terrassen: 1
Heizwärmebedarf:  A  24,60 kWh/m²a
fGEE:  A  0,72
Nebenkostenübersicht Kauf Immobilie merken Exposé

Immobilie anfragen


Ihre persönliche Beratung

Novel Real Immobilien GmbH

Tatiana Hanzl

Novel Real Immobilien GmbH

T +43 1 361401466

H +43 677 61959633