Beschreibung der Immobilie
Top 4 Zimmergartenwohnung mit Terrasse Nähe Gasometer
Top 4 Zimmerwohnung mit Terrasse und Garten Nähe Gasometer
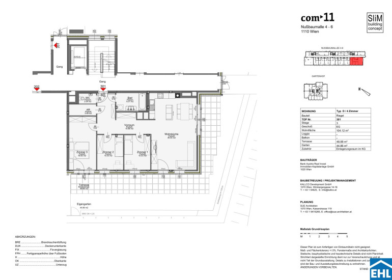
Diese Wohnung befindet sich im Erdgeschoss und verfügt über einen Wohnraum mit Küche, drei getrennt begehbare Schlafzimmer, ein Badezimmer mit Badewanne und Waschmaschinenanschluss, ein separates WC, einen Abstellraum, sowie einen Vorraum. Die Terrasse wie auch der Garten runden dieses Angebot perfekt ab.
Moderner Gebäudekomplex in markanter Lage, durch die Anbindung an die Südosttangente sind sowohl der Flughafen als auch das Zentrum Wiens schnell erreichbar. Durch die fußläufig erreichbare U-Bahnstation U3 ist man öffentlich in nur 15 Minuten in der City. Die in der Nähe gelegenen Gasometer mit einer großen Shoppingmall sowie ein Entertainment Center bieten eine optimale Versorgung.
Ausstattung:
voll ausgestattete Küche
Badezimmer mit Wanne und Waschmaschinenanschluss
separates WC
Abstellraum
In den Wohnräumen ist ein Parkettboden verlegt und die Nassräume sind verfliest.
Einen Lift, eine Waschküche sowie ein Fahrrad- und Kinderwagenabstellraum sind im Haus vorhanden, ebenso wie ein der Wohnung zugehöriges Kellerabteil.
Bei den Fotos handlet es sich um Musterfotos einer vergelichbaren Wohnung in dem Haus
Die Wohnung ist bis zum 30.06. bewohnt. Besichtigungen können nach Rücksprache mit den Mietern stattfinden.
Öffentliche Verkehrsanbindung
U-Bahnlinie U3 "Gasometer"
Buslinie 77-A
zzgl. Heizung & Warmwasser EUR 92,51 + USt. EUR 18,50 = Brutto EUR 111,01
Befristung: 5 Jahre, 1 Jahr Kündigungsverzicht und 3 Monate Kündigungsfrist
Energiekennzahlen:
Laut Energieausweis beträgt der Heizwärmebedarf 23,73 kWh/m²a (A).
Nebenkosten:
3 BMM Kaution, Vertragserrichtungsgebühr,
Wir weisen darauf hin, dass zwischen dem Vermittler und dem zu vermittelnden Dritten ein familiäres oder wirtschaftliches Naheverhältnis besteht.
Der Immobilienmakler erklärt, dass er – entgegen dem in der Immobilienwirtschaft üblichen Geschäftsgebrauch des Doppelmaklers – einseitig nur für den Vermieter tätig ist.
Infrastruktur / Entfernungen
Gesundheit
Arzt <500m
Apotheke <250m
Klinik <500m
Krankenhaus <2.000m
Kinder & Schulen
Schule <250m
Kindergarten <500m
Universität <1.250m
Höhere Schule <1.250m
Nahversorgung
Supermarkt <250m
Bäckerei <250m
Einkaufszentrum <250m
Sonstige
Geldautomat <250m
Bank <750m
Post <750m
Polizei <1.000m
Verkehr
Bus <250m
U-Bahn <250m
Straßenbahn <750m
Bahnhof <250m
Autobahnanschluss <1.000m
Angaben Entfernung Luftlinie / Quelle: OpenStreetMap
Eckdaten Objektnr. 95983
| Art: | Wohnung |
| Land: | Österreich |
| Baujahr: | 2013 |
| Zustand: | Gepflegt |
| Alter: | Neubau |
| Gesamtmiete: | 2.349,05 € |
| Kaltmiete (netto): | 1.896,02 € |
| Kaltmiete: | 2.135,50 € |
| Betriebskosten: | 239,48 € |
| MwSt Gesamt: | 213,55 € |
| Wohnfläche: | 104,12 m² |
| Zimmer: | 4 |
| Bäder: | 1 |
| WC: | 1 |
| Terrassen: | 1 |
| Garten: | 44,86 m² |
| Heizwärmebedarf: | B 25,30 kWh/m²a |
| fGEE: | A 0,84 |
Ausstattung
Fliesen, Parkett, Gas, Zentralheizung, Einbauküche, Wohnküche / offene Küche, Personenaufzug, Südbalkon, Badewanne, Kabel/Satelliten-TV
Ihre persönliche Beratung
Dieser Makler ist ein offizielles Mitglied des IR – ir.at Mehr Erfahren
