Hochwertiges Rohbau Schnäppchen mit Potenzial: 330 m² Wohnfläche in Top-Ruhelage – ideal für Fertigstellung

Haus , 8225 Pöllau


Beschreibung der Immobilie

Hochwertiges Rohbau Schnäppchen mit Potenzial: 330 m² Wohnfläche in Top-Ruhelage – ideal für Fertigstellung

Dieses hochwertige Bauprojekt bietet eine seltene Gelegenheit: Ein bereits geplanter und großteils ausgeführter Rohbau kann nach eigenen Vorstellungen fertiggestellt werden.



Auf ca. 330 m² Wohnfläche sowie rund 150 m² Nutzfläche im Keller entsteht ein großzügiges Einfamilienhaus mit moderner Architektur und durchdachter Raumaufteilung.



Das 797 m² große Grundstück befindet sich am Ende einer Sackgasse und überzeugt mit unverbaubarem Grünblick sowie absoluter Ruhelage.



Geplant und errichtet wurde das Objekt von der renommierten Firma Bretterklieber. Ein Großteil der Arbeiten wurde bereits umgesetzt, Angebote für die Fertigstellung liegen vor.



Optional kann das Nachbar Baugrundstück mit 900m2 angekauft werden, da auch dies im Familienbesitz ist.




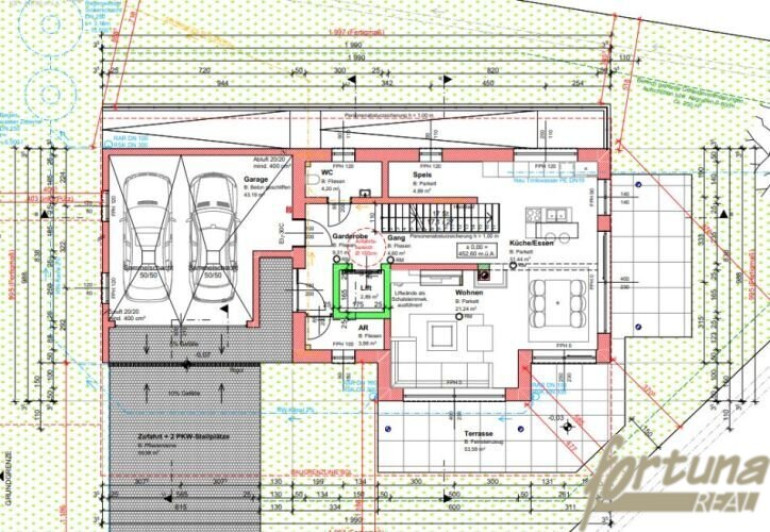
Raumaufteilung & Ausstattung



Erdgeschoss (ca. 163 m²):



  • Großzügiger Eingangsbereich mit Vorraum
  • Garderobe / Abstellraum
  • Gäste-WC
  • Speis
  • Offener Wohn- & Essbereich mit Küche
  • Direkter Zugang zur überdachten Terrasse (ca. 54 m²)
  • Schöner Grünblick


Obergeschoss (ca. 167 m²):



  • Offene Galerie mit Balkonzugang
  • 3 große Schlafzimmer
  • Alle Schlafzimmer mit eigenem Ankleideraum
  • 2 Schlafzimmer mit eigenem Balkon
  • 2 Badezimmer
  • Separates WC


Kellergeschoss (ca. 150 m² Nutzfläche):



  • Technikraum
  • Abstellräume
  • Hobbyraum / vielseitig nutzbare Flächen
  • Zusätzlicher Außenzugang über Rampe



Ausstattung & Bauzustand



  • Massivbauweise (50 cm Hochlochziegel) mit sehr guter Wärmedämmung
  • Dreifachverglaste Fenster sowie Balkon- & Terrassentüren bereits eingebaut
  • Luftwärmepumpe vorbereitet (Leitungen vorhanden)
  • Kaminanschluss für Kachelofen
  • Vorbereitung für Alarmanlage
  • Liftschacht vorhanden (alle Ebenen barrierefrei erreichbar)
  • Doppelgarage mit direktem Hauszugang
  • Außen- & Innenputz noch nicht ausgeführt



Lage & Umgebung



  • Ruhige Sackgassenlage – kein Durchzugsverkehr
  • Unverbaubarer Grünblick
  • Blick auf den Pöllauberg
  • Blick auf das Schloss Pöllau
  • Naturpark Pöllauer Tal – hohe Lebensqualität und naturnahe Umgebung
  • Zentrum Pöllau in wenigen Minuten erreichbar (Supermarkt, Schule, Kindergarten, Ärzte, Gastronomie)
  • Hartberg ca. 15 Minuten entfernt
  • A2 Richtung Wien & Graz ca. 15 km
  • Bad Waltersdorf (Therme) ca. 20 Minuten entfernt



Besonders geeignet für



  • Familien mit Platzbedarf die sich bei diesem hochwertigen Rohbau, mit Eigenleistung bei der Fertigstellung sehr viel sparen können
  • Mehrgenerationenwohnen durch großzügige Raumstruktur und Barrierefreiheit
  • Käufer aus Wien und Ballungsräumen, die einen Rückzugsort in der Natur suchen (Haupt- oder Zweitwohnsitz)
  • Individualisten, die ein hochwertiges Haus nach eigenen Vorstellungen fertigstellen möchten
  • Baufirmen oder Bauträger, die ein bereits weit fortgeschrittenes Projekt effizient fertigstellen und verwerten möchten




Dieses Haus ist eine seltene Gelegenheit, Wohnen, Qualität und individuelle Gestaltung perfekt miteinander zu verbinden.



Gleichzeitig eröffnet Ihnen der Edelrohbau entscheidende Vorteile: Durch Eigenleistung oder die Nutzung eigener Ressourcen können Sie bei der Fertigstellung erheblich Kosten sparen und den Ausbau flexibel an Ihr Budget anpassen. Ebenso bietet sich dieses Objekt ideal für Bau- und Handwerksprofis sowie handwerksbegabte Käufer an, die ihre Fähigkeiten einsetzen und dadurch einen spürbaren finanziellen Vorteil erzielen möchten.



Das Haus eignet sich ideal für Familien sowie für Mehrgenerationenwohnen: Die barrierefreie Bauweise bietet langfristigen Wohnkomfort und Flexibilität für jede Lebensphase. Ein bereits geplanter Liftschacht unterstreicht dieses Konzept und ermöglicht bei Bedarf den komfortablen Einbau eines Aufzugs – alternativ kann dieser Bereich auch individuell anders genutzt werden, ganz nach Ihren Bedürfnissen.



Die Kombination aus großzügiger Fläche, unverbaubarem Fernblick und maximaler Gestaltungsfreiheit macht diese Immobilie zu einer seltenen Chance.



Wenn Sie nicht einfach nur eine Immobilie suchen, sondern ein Zuhause mit echtem Gestaltungsspielraum und klaren Vorteilen, dann sollten Sie sich diese Gelegenheit nicht entgehen lassen.



Kontaktieren Sie uns gerne für weitere Informationen, Ausbauvarianten oder eine persönliche Besichtigung.


Der Vermittler ist als Doppelmakler tätig.

Infrastruktur / Entfernungen

Gesundheit
Arzt <500m
Klinik <1.000m
Apotheke <1.000m

Kinder & Schulen
Schule <1.000m
Kindergarten <1.000m

Nahversorgung
Supermarkt <1.000m
Bäckerei <1.000m

Sonstige
Bank <1.000m
Geldautomat <1.000m
Post <1.000m
Polizei <1.000m

Verkehr
Bus <1.000m
Bahnhof <10.000m

Angaben Entfernung Luftlinie / Quelle: OpenStreetMap

Eckdaten Objektnr. 1633/378

Art: Haus
Land: Österreich
Baujahr: 2024
Zustand: Rohbau
Alter: Neubau
Kaufpreis: 449.000,00
Wohnfläche: 330,00 m²
Nutzfläche: 445,79 m²
Grundstücksfl.: 797,00 m²
Zimmer: 5
Bäder: 2
WC: 2
Balkone: 3
Terrassen: 2
Heizwärmebedarf:  B  46,00 kWh/m²a
fGEE:  A+  0,60
Nebenkostenübersicht Kauf Immobilie merken Exposé

Ausstattung

Erdwärme, Personenaufzug


Immobilie anfragen


Ihre persönliche Beratung

Fortuna Real GmbH & Co KG

Stefan Lückl

Fortuna Real GmbH & Co Kg

T +436644231781