Wohnen in den DRAGONERHÖFEN von Wels - gepflegte 2-Zimmer Wohnung mit modernem Badezimmer (inkl. Wanne) | Ab 01.06.2026 verfügbar!

Wohnung , 4600 Wels , Dragonerstraße 44


Beschreibung der Immobilie

Wohnen in den DRAGONERHÖFEN von Wels - gepflegte 2-Zimmer Wohnung mit modernem Badezimmer (inkl. Wanne) | Ab 01.06.2026 verfügbar!

Dragonerhöfe / Wels / Dragonerstraße 44:



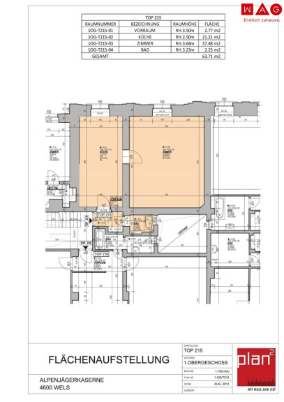
Diese charmante und gut aufgeteilte 2-Zimmer-Wohnung überzeugt durch ihre großzügige Wohnfläche von rund 66 m² sowie durch ein angenehmes Wohnambiente. Die Immobilie befindet sich in einer ruhigen und dennoch gut angebundenen Lage in Wels und eignet sich ideal für Singles oder Paare, die Wert auf Komfort und Lebensqualität legen.



Der durchdachte Grundriss bietet vielfältige Gestaltungsmöglichkeiten und sorgt für ein offenes und freundliches Wohngefühl. Große Fensterflächen lassen viel Tageslicht in die Räume und schaffen eine helle, einladende Atmosphäre. Der Wohnbereich lädt zum Entspannen ein, während das Schlafzimmer ausreichend Platz für erholsame Nächte bietet.



Die Wohnung punktet zudem mit ihrer praktischen Raumaufteilung, die eine optimale Nutzung der Wohnfläche ermöglicht. Ob gemütlicher Rückzugsort oder funktionaler Lebensmittelpunkt – hier lassen sich individuelle Wohnideen verwirklichen.



Lage & Infrastruktur:
Die Dragonerstraße liegt in einer angenehmen Wohngegend von Wels mit guter Infrastruktur. Einkaufsmöglichkeiten, öffentliche Verkehrsmittel, Schulen sowie Freizeiteinrichtungen sind in kurzer Zeit erreichbar. Gleichzeitig bietet die Umgebung ausreichend Ruhe für entspanntes Wohnen



Highlights / Besonderheiten:



  • Helle und freundliche Räume
  • modernes Badezimmer mit Badewanne 
  • Extra WC mit Waschbecken
  • sehr gepflegter Gesamtzustand der Wohnung


Mietkonditionen:
Miete inkl. Betriebskosten und Mwst.: € 797,96

(Strom, Heizung und Warmwasser sind nicht inkludiert)



Kaution: € 3.191,84

Provisionsfrei & unbefristeter Mietvertrag!


Der Immobilienmakler erklärt, dass er – entgegen dem in der Immobilienwirtschaft üblichen Geschäftsgebrauch des Doppelmaklers – einseitig nur für den Vermieter tätig ist.

Sie sind an weiteren Wohnungs- bzw. Gewerbeangeboten interessiert? Ein vielfältiges Angebot finden Sie auf unserer Website.

Zur WAG-Immobiliensuche: SUCHE

Zur WAG-Wohnungsanmeldung: Wohnungsanmeldung

Gerne beraten wir Sie persönlich über unser vielfältiges Angebot, rufen Sie uns einfach an! Und das natürlich ohne Vermittlungsgebühren und provisionsfrei!

Angaben sind ohne Gewähr auf Richtigkeit und Vollständigkeit. Druckfehler vorbehalten.

Infrastruktur / Entfernungen

Gesundheit
Arzt <425m
Apotheke <650m
Klinik <450m
Krankenhaus <2.150m

Kinder & Schulen
Schule <300m
Kindergarten <425m
Universität <1.200m

Nahversorgung
Supermarkt <400m
Bäckerei <975m
Einkaufszentrum <2.950m

Sonstige
Bank <350m
Geldautomat <700m
Post <875m
Polizei <175m

Verkehr
Bus <25m
Autobahnanschluss <2.275m
Bahnhof <425m
Flughafen <3.525m

Angaben Entfernung Luftlinie / Quelle: OpenStreetMap

Eckdaten Objektnr. 6650/28831

Art: Wohnung
Land: Österreich
Zustand: Gepflegt
Möbliert: Teil
Gesamtmiete: 797,96
Kaltmiete (netto): 590,84 €
Kaltmiete: 725,42 €
Betriebskosten: 134,58 €
MwSt Gesamt: 72,54 €
Wohnfläche: 66,00 m²
Zimmer: 2
Bäder: 1
WC: 1
Heizwärmebedarf:  C  63,00 kWh/m²a
fGEE:  C  1,17
Nebenkostenübersicht Miete Immobilie merken Exposé

Ausstattung

Parkett, Fliesen, Fernwärme, Badewanne, Kabel/Satelliten-TV, Wasch/Trockenraum


Immobilie anfragen


Ihre persönliche Beratung

Team Vermietung EBS

WAG Wohnungsanlagen GmbH

T 0503386016