++ Nur wenige Schritte vom Haus des Meeres und Mariahilfer Straße entfernt + Moderne Terrassenwohnung 62m², 1060 Wien – Top Ausstattung, Fußbodenheizung/Klima/Lift ++

Wohnung - Terrassenwohnung, 1060 Wien


Beschreibung der Immobilie

++ Nur wenige Schritte vom Haus des Meeres und Mariahilfer Straße entfernt + Moderne Terrassenwohnung 62m², 1060 Wien – Top Ausstattung, Fußbodenheizung/Klima/Lift ++

Diese 2018 generalsanierte Eigentumswohnung im 2. Liftstock vereint modernsten Wohnkomfort mit einer der begehrtesten Lagen Wiens. Auf ca. 62 m² Wohnfläche erwartet Sie eine perfekte  3-Zimmer-Aufteilung, die durch hochwertige Materialien und exklusives Design besticht. Ein besonderes Highlight ist die ca. 8,5 m² große Südwest-Terrasse, die sonnige Stunden im Freien garantiert. 



Besonderheiten auf einen Blick:



  • Zustand: Generalsaniert 2018 (Top-Zustand).
  • Klima & Wärme: Fußbodenheizung (Gas) sowie eine Klimaanlage in jedem Zimmer für optimales Raumklima das ganze Jahr über.
  • Ausstattung: Edle Parkettböden, hochwertige Design-Möbel und eine moderne Einbauküche.
  • Barrierefreiheit: Das Badezimmer ist barrierefrei gestaltet.
  • Sicherheit: Installierte Alarmanlage für Ihr sicheres Gefühl.
  • Außenbereich: Ruhige 8,5 m² Terrasse mit idealer Südwest-Ausrichtung. 


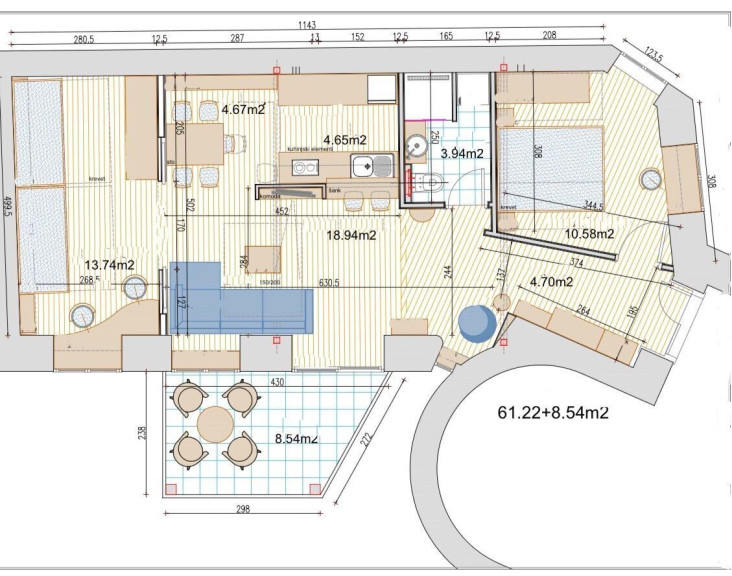
Raumaufteilung



  • Großzügiger Wohn-Essbereich mit integrierter Design-Küche  -  28,62m²
  • Zwei separat begehbare Zimmer - 13,74m² und 10,58m² (ideal als Schlaf-, Arbeits- oder Kinderzimmer).
  • Modernes, barrierefreies Badezimmer - 3,94m²
  • Direkter Zugang zur Terrasse ( 8,54m²) vom Wohnbereich.
  • Vorraum 4,70m²




Lage & Infrastruktur



Die Wohnung befindet sich in absoluter Bestlage des 6. Bezirks (Mariahilf) in der Gumpendorfer Straße 46,nur wenige Schritte vom Haus des Meeres und Mariahilfer Straße entfernt



  • Freizeit: Das Haus des Meeres  und der Esterházypark liegen praktisch vor der Haustür.
  • Shopping: Die Mariahilfer Straße, Wiens größte Einkaufsstraße, ist in wenigen Gehminuten erreichbar.
  • Anbindung: Der 1. Bezirk (Innere Stadt) ist fußläufig oder schnell mit den öffentlichen Verkehrsmitteln erreichbar.
  • Nahversorgung: Erstklassige Restaurants, Cafés und alle Geschäfte des täglichen Bedarfs befinden sich in unmittelbarer Umgebung. 


Eckdaten:



  • Wohnfläche: ca. 62 m²
  • Zimmer: 3
  • Terrasse: ca. 8,5 m² (S/W)
  • Stockwerk: 2. Stock (mit Lift)




Kaufpreis: 599.000- Lasten und Bestandsfrei
 



Gesetzliche Nebenkosten:
3,5%      Grunderwerbsteuer  

1,1%      Grundbucheintragungsgebühr  

3,0%      Maklerhonorar + 20 % MwSt.

%Vertragserrichtungskosten + 20 % MwSt.

Detaillierte Unterlagen (Exposé) senden wir gerne auf Anfrage zu.



BITTE BEACHTEN SIE, DASS WIR NUR ANFRAGEN MIT VOLLSTÄNDIGER ANGABE DER ANSCHRIFT UND ANGABEN ZUR PERSON 

(NAME,TELEFON, EMAIL) BEARBEITEN KÖNNEN.




Anbieter:                 gb-direkt Finanzberatung & Immobilienhandel GmbH 

Ansprechpartner:        Frau Benes

Mobil:                       +43 (0)699 116 08 706
E-mail:                       office@direktfinanzimmo.at 



Wir weisen darauf hin, dass alle Angaben, auf die sich das vorliegende Exposé/Inserat beziehen, sich ausschließlich auf Daten und Angaben von Verkäufern/Vermietern bzw. sachkundigen Dritten stützen und wir für diese keine, wie auch immer geartete, Haftung übernehmen. Des Weiteren geben wir bekannt, dass zwischen den Verkäufern/Vermietern und gb-direkt Finanzberatung & Immobilienhandel GmbH, kein familiäres oder wirtschaftliches Naheverhältnis oder gesellschaftliche Verflechtung besteht. Irrtümer und Änderungen sowie Zwischenverkauf vorbehalten.
































Der Vermittler ist als Doppelmakler tätig.

Infrastruktur / Entfernungen

Gesundheit
Arzt <500m
Apotheke <500m
Klinik <500m
Krankenhaus <1.500m

Kinder & Schulen
Schule <500m
Kindergarten <500m
Universität <500m
Höhere Schule <1.000m

Nahversorgung
Supermarkt <500m
Bäckerei <500m
Einkaufszentrum <500m

Sonstige
Geldautomat <500m
Bank <500m
Post <500m
Polizei <500m

Verkehr
Bus <500m
U-Bahn <500m
Straßenbahn <500m
Bahnhof <500m
Autobahnanschluss <4.000m

Angaben Entfernung Luftlinie / Quelle: OpenStreetMap

Eckdaten Objektnr. 1587/65013

Art: Wohnung - Terrassenwohnung
Land: Österreich
Zustand: Gepflegt
Alter: Altbau
Kaufpreis: 599.000,00
Wohnfläche: 61,73 m²
Nutzfläche: 69,76 m²
Terrassen: 1
Heizwärmebedarf:  D  149,00 kWh/m²a
fGEE:  C  1,49
Nebenkostenübersicht Kauf Immobilie merken Exposé

Ausstattung

Parkett, Fliesen, Gas, Fußbodenheizung, Einbauküche, Lastenaufzug, Alarmanlage


Immobilie anfragen


Ihre persönliche Beratung

“gb-direkt” Finanzberatung & Immobilienhandel GmbH

Snezana Benes

“gb-direkt” Finanzberatung & Immobilienhandel GmbH

T +43 1 810 07 33

H +43 699 11 608 706

F +43 1 810 07 33 24