Ötztal-Investment: Renditeimmobilie im Hotspot des alpinen Tourismus“

Zinshaus Renditeobjekt , 6433 Oetz


Im Winter bietet Oetz vielfältige Wintersportmöglichkeiten. Dazu gehören Skifahren im Skigebiet Hochoetz, Snowboarden, Langlaufen und Rodeln. Außerdem sind Winter- und Schneeschuhwanderungen, Skitouren sowie romantische Pferdeschlittenfahrten sehr beliebt. Weltberühmte Skiorte wie Sölden, Hoch- und Obergurgel runden das Winterprogramm ab. Im Sommer ist Oetz ein echtes Outdoor-Paradies. Beliebte Aktivitäten sind Wandern und Bergsteigen in den Alpen, Mountainbiken sowie actionreiche Erlebnisse wie Rafting oder Canyoning. Auch Klettern, Paragleiten und Wassersport auf der Ötztaler Ache sind möglich. Für Erholung sorgen Badeseen wie der Piburger See oder Freibäder

Beschreibung der Immobilie

Ötztal-Investment: Renditeimmobilie im Hotspot des alpinen Tourismus“

Servus im weltberühmten Ötztal!



Willkommen zu einem einzigartigen Investment inmitten der bezaubernden Tiroler Berglandschaft – ein gepflegtes Zinshaus in Oetz, das nicht nur durch seine Lage, sondern auch durch seine hervorragende Rendite überzeugt.



Dieses attraktive Renditeobjekt besticht durch seine solide Bausubstanz und den gepflegten Zustand, der sofortiges Vermieten ermöglicht. Die Immobilie eignet sich ideal für Anleger, die auf der Suche nach einer sicheren und langfristigen Wertanlage sind. Die gut durchdachte Aufteilung der Einheiten garantiert eine hohe Auslastung und stabile Einnahmen.



Die Lage dieses Zinshauses ist ein weiterer großer Pluspunkt. Oetz, eingebettet in die atemberaubende Tiroler Bergwelt, bietet seinen Bewohnern eine hervorragende Infrastruktur. Die Verkehrsanbindung ist durch die nahegelegene Bushaltestelle optimal gewährleistet – ob für Einheimische oder Urlaubsgäste, die unkompliziert die Region erkunden möchten.



In unmittelbarer Nähe befinden sich alle wichtigen Einrichtungen des täglichen Lebens: Ärzte und Apotheke sorgen für eine umfassende medizinische Versorgung, während Schule und Kindergarten Familienfreundlichkeit unterstreichen. Für den täglichen Einkauf bieten Supermarkt und Bäckerei eine große Auswahl an frischen und regionalen Produkten. Diese Kombination aus hervorragender Infrastruktur und idyllischer Lage macht das Objekt gleichermaßen attraktiv für Mieter aller Altersgruppen.



Die Verbindung aus einer gepflegten Immobilie, exzellenter Verkehrsanbindung und vielfältiger Nahversorgung schafft die besten Voraussetzungen für eine sichere und nachhaltige Rendite. Nutzen Sie diese Gelegenheit, um in eine Immobilie zu investieren, die Ihnen nicht nur stabile Einnahmen, sondern auch ein Stück Tiroler Lebensqualität bietet.

 



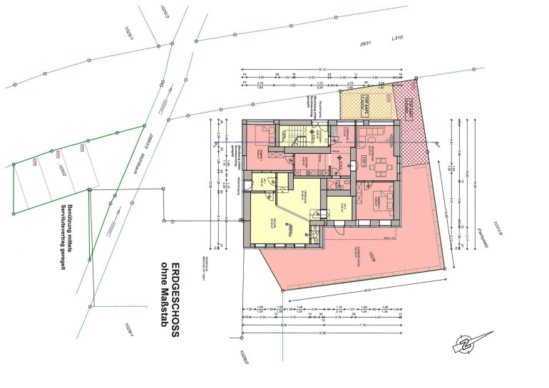
Einteilung der Wohnungen 



Top Stockwerk Zimmer Ausstattung
1 EG 3 75,78 Vorraum

Wohn- Esszimmer

Schlafzimme 1 & 2

Küche

Bad mit Dusche & WC

Garten - ohne direkten Zugang
         
2 1 OG 3 64,45 Vorraum

Wohn- Esszimmer

Schlafzimmer 1 & 2

Küche

Bad mit Dusche & WC

Balkon
         
3 1 OG 4 69,77 Vorraum

Wohn- Esszimmer

Schlafzimme 1 & 2 & 3

Küche

Bad mit Dusche & WC

Balkon
         
4 2 OG 3 76,07 Vorraum

Wohnzimmer

Schlafzimme 1 & 2

Küche & Essberreich

Bad mit Dusche & WC

Balkon
         
5 2 OG 2 39,66 Vorraum

Wohn- Esszimmer

1 Schlafzimmer 

Küche - offen

Bad mit Dusche & WC

Balkon




Zögern Sie nicht und sichern Sie sich dieses Zinshaus in Oetz – eine Investition, die sich lohnt und Ihnen langfristig Freude und Sicherheit schenkt. Kontaktieren Sie uns noch heute für weitere Informationen und eine Besichtigung vor Ort. Ihre Traumrendite wartet auf Sie!


Der Vermittler ist als Doppelmakler tätig.

Infrastruktur / Entfernungen

Gesundheit
Arzt <500m
Apotheke <500m

Kinder & Schulen
Schule <1.000m
Kindergarten <1.000m

Nahversorgung
Supermarkt <500m
Bäckerei <500m

Sonstige
Bank <500m
Geldautomat <500m
Post <5.000m
Polizei <1.000m

Verkehr
Bus <500m
Autobahnanschluss <5.500m
Bahnhof <5.000m

Angaben Entfernung Luftlinie / Quelle: OpenStreetMap

Eckdaten Objektnr. 7002/156

Art: Zinshaus Renditeobjekt
Land: Österreich
Baujahr: 1960
Zustand: Gepflegt
Alter: Altbau
Kaufpreis: 995.000,00
Betriebskosten: 905,00 €
Wohnfläche: 325,00 m²
Grundstücksfl.: 343,00 m²
Balkone: 4
Stellplätze: 5
Keller: 28,00 m²
Heizwärmebedarf:  C  42,90 kWh/m²a
fGEE:  C  1,58
Nebenkostenübersicht Kauf Immobilie merken Exposé

Immobilie anfragen


Ihre persönliche Beratung

clever & smart immo gmbh

Claudia Sax-Mayr

clever & smart immo gmbh

T +43 512 239119 0

H +43 664 5101569

F +43 512 239119 23