Urbanes Investment am Naschmarkt – Eigentumswohnung mit freiem Mietzins

Wohnung - Etage, 1040 Wien


Umgebung: Die Wohnung befindet sich in einer der besten Innenstadtlagen Wiens – zwischen Naschmarkt, Karlskirche, Secession, Theater an der Wien und der Oper. Cafés, Restaurants, Boutiquen und sämtliche Einkaufsmöglichkeiten liegen direkt vor der Haustür. Verkehrsanbindung: Kaum ein Ort in Wien ist besser angebunden: U-Bahn: U1, U2, U4 – Station Karlsplatz (2 Minuten zu Fuß) Straßenbahnen: 1, 2, D, 62, 71 (Haltestellen Oper/Karlsplatz und Paulanergasse) Buslinien: 59A, 4A, 13A, 14A (Karlsplatz, Oper, Wiedner Hauptstraße) Schnellbahn: Anschluss über Station Wien Mitte / Landstraße nur 2 U-Bahnstationen entfernt Citybike & Scooter: Citybike-Station und E-Scooter-Stellplätze direkt am Karlsplatz Anbindung: Rascher Anschluss an die Ringstraße, Wienzeile und Linke Wienzeile; Parkgarage in unmittelbarer Nä

Beschreibung der Immobilie

Urbanes Investment am Naschmarkt – Eigentumswohnung mit freiem Mietzins

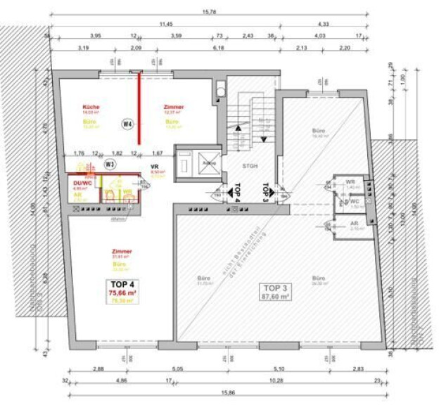
Diese exklusive 2-Zimmer-Wohnung mit rund 75 m² liegt im 2. Obergeschoss eines gepflegten, 1964 errichteten Hauses an der Rechten Wienzeile, direkt beim Naschmarkt. Die Wohnung besticht durch eine hochwertige Designerausstattung und durchdachten Grundriss.



Für Investoren ist die Wohnung in bester Lage besonders attraktiv, da sie dem freien Mietzins unterliegt und somit eine renditestarke, flexibel gestaltbare Vermietung ermöglicht.



Die Wohnung besticht mit perfekter Raumaufteilung: Das Schlafzimmer und die Küche sind zum ruhigen Innenhof ausgerichtet, während das Wohnzimmer einen wunderbaren Blick Richtung Naschmarkt und seine berühmten Otto Wagner Gebäude bietet.



Das Gebäude verfügt über einen Lift sowie eine Ölzentralheizung.



Die Lage überzeugt mit urbanem Flair – der Naschmarkt mit seiner einzigartigen Vielfalt an Gastronomie und Einkaufsmöglichkeiten liegt direkt vor der Haustür. Zudem ist die öffentliche Anbindung ausgezeichnet.

Infrastruktur / Entfernungen

Gesundheit
Arzt <500m
Apotheke <500m
Klinik <500m
Krankenhaus <1.500m

Kinder & Schulen
Schule <500m
Kindergarten <500m
Universität <500m
Höhere Schule <1.000m

Nahversorgung
Supermarkt <500m
Bäckerei <500m
Einkaufszentrum <1.000m

Sonstige
Geldautomat <500m
Bank <500m
Post <500m
Polizei <1.000m

Verkehr
Bus <500m
U-Bahn <500m
Straßenbahn <500m
Bahnhof <500m
Autobahnanschluss <3.500m

Angaben Entfernung Luftlinie / Quelle: OpenStreetMap

Eckdaten Objektnr. 4724/11796

Art: Wohnung - Etage
Land: Österreich
Baujahr: 1963
Zustand: Gepflegt
Kaufpreis: 550.000,00
Wohnfläche: 75,66 m²
Zimmer: 2
Bäder: 1
WC: 1
Heizwärmebedarf:  D  101,24 kWh/m²a
fGEE: 4,66
Nebenkostenübersicht Kauf Immobilie merken Exposé

Ausstattung

Fliesen, Parkett, Öl, Einbauküche, Personenaufzug, Dusche, Kabel/Satelliten-TV


Immobilie anfragen


Ihre persönliche Beratung

MMag. Andreas Staudinger

OPTIN Immobilien GmbH

T 06764103527

H +43 650 821 77 69