Osteraktion 300€ Gutschein | ODO25 | 2 Zimmer | Balkon | Erstbezug | Mietbeginn ab 01.07.2026

Wohnung - Etage, 1160 Wien


ODO25 befindet sich in attraktiver Lage der Odoakergasse im 16. Wiener Gemeindebezirk und überzeugt durch eine hervorragende Anbindung an die Wiener Innenstadt sowie an zahlreiche Naherholungsgebiete. Die ausgezeichnete öffentliche Verkehrsanbindung mit mehreren Straßenbahn-, Bus- und S-Bahn-Linien ermöglicht schnelle und flexible Mobilität in alle Teile der Stadt. Grün- und Freizeitflächen wie Wilhelminenberg, Steinhofgründe, Kongreßpark und Kongreßbad sind in wenigen Minuten erreichbar und bieten vielfältige Erholungsmöglichkeiten. Schulen, Kindergärten, medizinische Versorgung sowie Einkaufsmöglichkeiten befinden sich in unmittelbarer Nähe. Der nahegelegene Brunnenmarkt und der Yppenplatz ergänzen das Angebot durch urbanes Markt- und Gastronomieflair.

Beschreibung der Immobilie

Osteraktion 300€ Gutschein | ODO25 | 2 Zimmer | Balkon | Erstbezug | Mietbeginn ab 01.07.2026

OSTERAKTION: EUR 300,- INTERSPAR-Gutschein bei Abschluss eines Mietvertrags mit Mietbeginn 01.07.2026. Gültig für Mietanbote bis einschließlich 31.05.2026.

ODO25 – Urbanes Wohnen mit Weitblick



In der Odoakergasse 25 im 16. Wiener Gemeindebezirk entsteht mit ODO25 eine moderne Wohnhausanlage, die urbanes Lebensgefühl mit hohem Wohnkomfort verbindet. Das Projekt richtet sich an Singles, Paare, Alleinerziehende und Familien gleichermaßen und bietet zeitgemäße Wohnlösungen für unterschiedliche Lebensmodelle.



Die Anlage umfasst insgesamt 61 hochwertige Wohneinheiten, überwiegend Zwei- und Drei-Zimmer-Wohnungen mit Wohnflächen von rund 30 bis 80 m². Durchdachte Grundrisse, bodentiefe Fenster und großzügige Freiflächen sorgen für helle, freundliche Räume und ein angenehmes Wohnambiente mit urbanem Charakter.



Ein besonderes Merkmal von ODO25 ist das angrenzende Hofhaus, das flexibel nutzbare Büro- oder Atelierflächen bietet. Damit eignet sich das Projekt ideal für Menschen, die Wohnen und Arbeiten an einem Ort verbinden möchten.



Die Lage überzeugt durch ihre hervorragende Anbindung an die Wiener Innenstadt sowie die Nähe zu Grün- und Erholungsräumen. ODO25 bietet damit einen idealen Ausgangspunkt für ein aktives, urbanes Leben mit hoher Lebensqualität.



Nachhaltigkeit – Elegant wohnen, bewusst leben



Nachhaltigkeit ist ein zentraler Bestandteil des Projekts ODO25. Eine energieeffiziente Bauweise, moderne Haustechnik und der Einsatz ressourcenschonender Materialien tragen zu niedrigen Betriebs- und Energiekosten bei.



Die Beheizung und Kühlung erfolgen über ein nachhaltiges Energiekonzept mit Wärmepumpe, Erdwärmesonden und Bauteilaktivierung. Begrünte Innenhofbereiche, Fassaden- und Dachflächen schaffen ein angenehmes Mikroklima und erhöhen die Aufenthaltsqualität.



E-Ladestationen für PKW sowie der bewusste Einsatz langlebiger und umweltfreundlicher Bauprodukte unterstreichen den zukunftsorientierten Anspruch des Projekts. Die angestrebte Zertifizierung nach ÖGNI/DGNB Gold bestätigt den hohen Qualitäts- und Nachhaltigkeitsstandard von ODO25.



Optional kann ein Stellplatz in der hauseigenen Tiefgarage um € 110,– brutto pro Monat angemietet werden.



Unterlagen für die Anmietung:

- Reisepass/Personalausweis

- Derzeitiger Meldezettel

- Letzten 3 Lohnzettel/Arbeitsvertrag/letzter Einkommenssteuerbescheid

- Aufenthaltstitel bei Drittstaatenangehörigen



Bezüglich Einkommensnachweis: Es darf nicht mehr als 40% des monatlichen Nettoeinkommens aller Mieter zusammen für die Miete ausgegeben werden. Sollte die Bonität nicht genügen, wird eine Bürgschaft (Einkommen aus Ö, D, CH) benötigt.





Die Heizkosten werden direkt zwischen Mieter und Energieversorger verrechnet. Beim angeführten Wert handelt es sich um eine Schätzung.


Der Immobilienmakler erklärt, dass er – entgegen dem in der Immobilienwirtschaft üblichen Geschäftsgebrauch des Doppelmaklers – einseitig nur für den Vermieter tätig ist.

Infrastruktur / Entfernungen

Gesundheit
Arzt <500m
Apotheke <500m
Klinik <1.000m
Krankenhaus <500m

Kinder & Schulen
Schule <500m
Kindergarten <500m
Universität <2.000m
Höhere Schule <1.500m

Nahversorgung
Supermarkt <500m
Bäckerei <500m
Einkaufszentrum <500m

Sonstige
Geldautomat <500m
Bank <500m
Post <500m
Polizei <500m

Verkehr
Bus <500m
U-Bahn <1.000m
Straßenbahn <500m
Bahnhof <1.000m
Autobahnanschluss <5.000m

Angaben Entfernung Luftlinie / Quelle: OpenStreetMap

Eckdaten Objektnr. 4724/11983

Art: Wohnung - Etage
Land: Österreich
Baujahr: 2026
Zustand: Erstbezug
Gesamtmiete: 1.000,01
Kaltmiete (netto): 778,36 €
Kaltmiete: 854,55 €
Betriebskosten: 76,19 €
Heizkosten: 50,00 €
MwSt Gesamt: 95,46 €
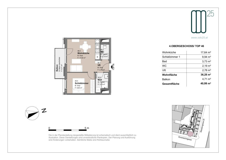
Wohnfläche: 36,28 m²
Zimmer: 2
Bäder: 1
WC: 1
Balkone: 1
Heizwärmebedarf:  B  26,20 kWh/m²a
fGEE:  A+  0,66
Nebenkostenübersicht Miete Immobilie merken Exposé

Ausstattung

Fliesen, Erdwärme, Einbauküche, Personenaufzug, Südbalkon, Dusche, Kabel/Satelliten-TV


Immobilie anfragen


Ihre persönliche Beratung

Team ODO25

OPTIN Immobilien GmbH

T 0676847772207

H 0676847772206