*** Top kernsaniertes 568m² Zinshaus in Kindberg – 5 Einheiten incl. Carports, voll vermietet, starke Renditechance! ***

Zinshaus Renditeobjekt , 8652 Kindberg


Beschreibung der Immobilie

*** Top kernsaniertes 568m² Zinshaus in Kindberg – 5 Einheiten incl. Carports, voll vermietet, starke Renditechance! ***

Nachhaltig saniertes Zinshaus mit 5 Einheiten – vollvermietet & wertbeständig in Kindberg



Dieses 2014 umfassend sanierte Zinshaus vereint technische Qualität, stabile Mieteinnahmen und eine ausgezeichnete Infrastruktur zu einer überzeugenden Kapitalanlage.



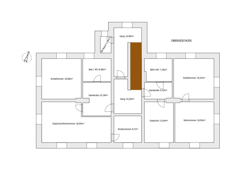
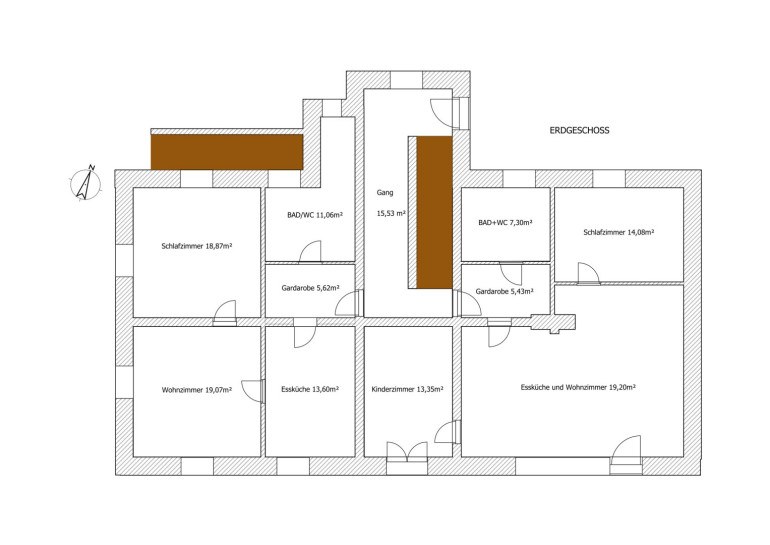
Auf insgesamt 419 m² Wohnfläche und 568 m² Nutzfläche verteilen sich fünf gut vermietete Wohneinheiten. Das Objekt präsentiert sich in einem ausgezeichneten baulichen Zustand und bietet Anlegern ein solides, kalkulierbares Investment mit langfristiger Perspektive.



Die Sanierung 2014 umfasste unter anderem:



  • Erneuerung des Daches
  • Vollwärmeschutz-Fassade
  • 3-fach-ISO-Kunststofffenster
  • Modernisierung der Innenräume
  • Erneuerung von Strom- und Leitungsinstallationen
  • Gas-Zentralheizung
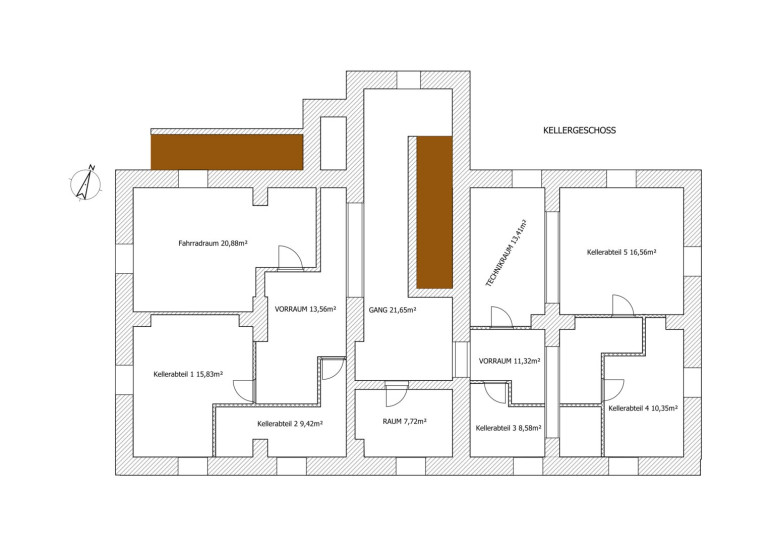
  • Aufwertung des Kellergeschosses


Hier investierst du nicht in einen Sanierungsfall – sondern in nachhaltige Substanz.




Besonderes Highlight: Dachterrassenwohnung



Ein echtes Differenzierungsmerkmal ist die attraktive Dachterrassenwohnung mit 17,5 m² Dachterrasse – ein gefragtes Wohnplus, das für stabile Nachfrage und langfristige Vermietbarkeit sorgt.




Wirtschaftliche Eckdaten auf einen Blick



  • 5 Wohneinheiten
  • Vollvermietet
  • 5 Carport-Stellplätze
  • Sehr gute Infrastruktur (Einkauf, Verkehr, Nahversorgung fußläufig erreichbar)
  • Kaufpreis: € 465.000,- zzgl. 20 % USt.


Die Kombination aus moderner Gebäudetechnik, gepflegtem Gesamtzustand und durchdachtem Wohnkonzept schafft beste Voraussetzungen für eine stabile Rendite.




Warum dieses Objekt überzeugt



✔ Keine unmittelbaren Investitionen notwendig

✔ Technisch modernisiert & energieeffizient

✔ Attraktive Wohnungsgrößen

✔ Sehr gute Vermietbarkeit

✔ Nachhaltiger Standort mit Entwicklungspotenzial



Dieses Zinshaus eignet sich ideal für Anleger, die Wert auf Sicherheit, Qualität und langfristige Ertragskraft legen.


Der Vermittler ist als Doppelmakler tätig.

Infrastruktur / Entfernungen

Gesundheit
Arzt <2.000m
Apotheke <500m
Krankenhaus <3.500m

Kinder & Schulen
Schule <2.500m
Kindergarten <1.000m
Universität <8.000m

Nahversorgung
Supermarkt <500m
Bäckerei <2.500m

Sonstige
Bank <2.000m
Geldautomat <2.000m
Post <500m
Polizei <3.000m

Verkehr
Bus <500m
Autobahnanschluss <1.500m
Bahnhof <2.000m
Flughafen <8.000m

Angaben Entfernung Luftlinie / Quelle: OpenStreetMap

Eckdaten Objektnr. 3812/356

Art: Zinshaus Renditeobjekt
Land: Österreich
Baujahr: 1900
Kaufpreis: 558.000,00
Grundstücksfl.: 1.243,00 m²
Heizwärmebedarf:  D  119,00 kWh/m²a
fGEE:  D  2,12
Nebenkostenübersicht Kauf Immobilie merken Exposé

Ausstattung

Fliesen, Laminatboden, Parkett, Estrichboden, Gas, Zentralheizung, Einbauküche, Nordbalkon, Bad mit Fenster, Badewanne, Dusche, Carport


Immobilie anfragen


Ihre persönliche Beratung

REMAX Smart

MMag. Dr. Stephan Stibor

RE/MAX Smart

H +43 664 380 35 12