*** Top kernsaniertes 439m² Zinshaus mit Nebengebäude in Kindberg – 4 Einheiten incl. Carports, voll vermietet, starke Renditechance! ***

Zinshaus Renditeobjekt , 8653 Kindberg


Beschreibung der Immobilie

*** Top kernsaniertes 439m² Zinshaus mit Nebengebäude in Kindberg – 4 Einheiten incl. Carports, voll vermietet, starke Renditechance! ***

Nachhaltig saniertes Zinshaus mit 4 Einheiten – vollvermietet & wertbeständig in Kindberg



Dieses 2013 umfassend sanierte Zinshaus vereint technische Qualität, stabile Mieteinnahmen und eine ausgezeichnete Infrastruktur zu einer überzeugenden Kapitalanlage.



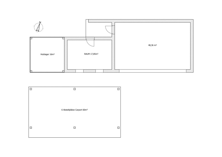
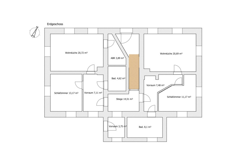
Auf insgesamt 283 m² Wohnfläche und 439 m² Nutzfläche verteilen sich vier gut vermietete Wohneinheiten. Das Objekt präsentiert sich in einem ausgezeichneten baulichen Zustand und bietet Anlegern ein solides, kalkulierbares Investment mit langfristiger Perspektive.



Die Sanierung 2013 umfasste unter anderem:



  • Erneuerung des Daches
  • Vollwärmeschutz-Fassade
  • 2-fach-ISO-Kunststofffenster
  • Modernisierung der Innenräume und Sanitär
  • Erneuerung von Strom- und Leitungsinstallationen
  • Gas-Zentralheizung
  • Aufwertung des Kellergeschosses


Hier investierst du nicht in einen Sanierungsfall – sondern in nachhaltige Substanz.




Besonderes Highlight: Dachterrassenwohnung über 2Etagen



Ein echtes Differenzierungsmerkmal ist die attraktive Dachterrassenwohnung mit 5,6 m² Terrasse – ein gefragtes Wohnplus, das für stabile Nachfrage und langfristige Vermietbarkeit sorgt.




Wirtschaftliche Eckdaten auf einen Blick



  • 4 Wohneinheiten
  • Vollvermietet
  • 6 Carport-Stellplätze + Nebengebäude
  • Sehr gute Infrastruktur (Einkauf, Verkehr, Nahversorgung fußläufig erreichbar)
  • Kaufpreis: € 325.000,- zzgl. 20 % USt.


Die Kombination aus moderner Gebäudetechnik, gepflegtem Gesamtzustand und durchdachtem Wohnkonzept schafft beste Voraussetzungen für eine stabile Rendite.




Warum dieses Objekt überzeugt



✔ Keine unmittelbaren Investitionen notwendig

✔ Technisch modernisiert & energieeffizient

✔ Attraktive Wohnungsgrößen

✔ Sehr gute Vermietbarkeit

✔ Nachhaltiger Standort mit Entwicklungspotenzial



Dieses Zinshaus eignet sich ideal für Anleger, die Wert auf Sicherheit, Qualität und langfristige Ertragskraft legen.




Der Vermittler ist als Doppelmakler tätig.

Infrastruktur / Entfernungen

Gesundheit
Arzt <1.500m
Apotheke <1.000m
Krankenhaus <3.500m

Kinder & Schulen
Schule <2.500m
Kindergarten <1.000m
Universität <8.000m

Nahversorgung
Supermarkt <1.000m
Bäckerei <2.500m

Sonstige
Bank <1.500m
Geldautomat <1.500m
Post <1.000m
Polizei <3.500m

Verkehr
Bus <500m
Autobahnanschluss <1.500m
Bahnhof <1.500m
Flughafen <7.500m

Angaben Entfernung Luftlinie / Quelle: OpenStreetMap

Eckdaten Objektnr. 3812/354

Art: Zinshaus Renditeobjekt
Land: Österreich
Baujahr: 1900
Zustand: Voll_saniert
Möbliert: Teil
Alter: Neubau
Kaufpreis: 390.000,00
Kaufpreis / m²: 739,64 €
Wohnfläche: 283,10 m²
Nutzfläche: 439,40 m²
Grundstücksfl.: 1.065,00 m²
Zimmer: 10,50
Bäder: 4
WC: 4
Terrassen: 1
Stellplätze: 6
Keller: 55,00 m²
Heizwärmebedarf:  D  95,00 kWh/m²a
fGEE:  E  1,50
Nebenkostenübersicht Kauf Immobilie merken Exposé

Ausstattung

Gas, Zentralheizung


Immobilie anfragen


Ihre persönliche Beratung

REMAX Smart

MMag. Dr. Stephan Stibor

RE/MAX Smart

H +43 664 380 35 12