Bewilligtes Entwicklungsprojekt mit drei Bauplätzen in 3400 Klosterneuburg

Grundstück , 3400 Klosterneuburg


Beschreibung der Immobilie

Bewilligtes Entwicklungsprojekt mit drei Bauplätzen in 3400 Klosterneuburg

Projektbeschreibung



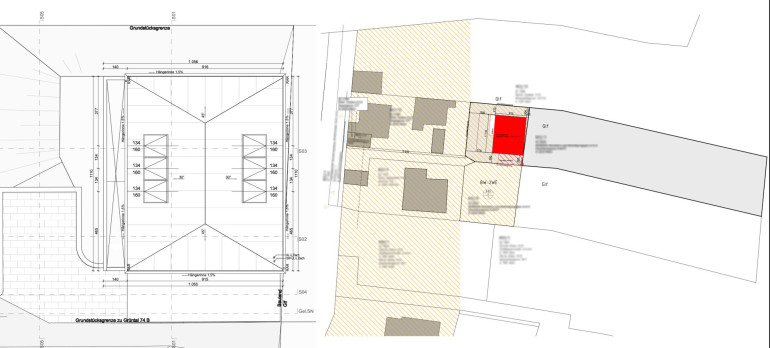
Zum Verkauf gelangt ein attraktives Gesamtprojekt bestehend aus drei Grundstücken in begehrter Wohnlage von Klosterneuburg-Kierling. Die Liegenschaft umfasst drei Bauplätze mit einer Gesamtgrundstücksfläche von ca. 3.857 m².



Die Grundstücke werden im Paket als Gesamtprojekt verkauft und eignen sich sowohl für Bauträger und Projektentwickler als auch für private Anleger oder Bauherren, die ein bereits vorbereitetes Wohnprojekt umsetzen oder eine attraktive Investition in einer gefragten Lage tätigen möchten.



Für das Projekt liegt bereits eine bewilligte Planung vor, wodurch ein rascher Projektstart möglich ist. Die geplante Gesamtwohnnutzfläche beträgt rund 528 m².



 Das Projekt wird bis Ende März zu einem attraktiven Sonderpreis angeboten.



Die Highlights auf einen Blick



- Sofortiger Baustart: Bewilligte Planung für ca. 528 m² Gesamtwohnnutzfläche vorhanden.

- Top-Lage: Grünruhelage, nahe dem Wienerwald

- Projekt-Mix: 2x großzügige Einfamilienhäuser (ca. 151 m² & 155 m² WNF) 1x Wohnhaus mit 2 Einheiten (ca. 87 m² & 135 m² WNF) 

- Infrastruktur: Hervorragende Anbindung nach Wien (ca. 15-20 Min.) und Nahversorgung in Kierling.

- Sonderkondition: Aktionspreis bei Abschluss bis Ende März!



Fast Facts



Grundstücksfläche: ca. 3.857 m²

Geplante Wohnnutzfläche: ca. 528 m²

Baubewilligung: vorhanden

Widmung: Bauland-Wohngebiet, 2 Wohneinheiten

Bauweise: offen

Bauklasse: I



Geplant ist die Errichtung von:



  • zwei Einfamilienhäusern
  • einem Wohnhaus mit zwei Wohneinheiten


Aufgrund der Nachweispflicht gegenüber dem Eigentümer können nur schriftliche Anfragen mit vollständigen Kontaktdaten (Name, Anschrift, Tel.-Nr., E-Mail) beantwortet werden.



Irrtum und Änderungen vorbehalten. Oben angeführte Angaben basieren auf Informationen und Unterlagen des Eigentümers und sind unsererseits ohne Gewähr.

Noch nichts gefunden? Wir informieren Sie über geeignete Immobilienangebote noch vor allen anderen.
Legen Sie jetzt Ihren individuellen Suchagenten unter folgendem Link an. Wir schicken Ihnen passende Immobilien exklusiv vorab zu.

Suchagent anlegen - https://avana-real-estate.service.immo/registrieren/de


Wir weisen darauf hin, dass zwischen dem Vermittler und dem zu vermittelnden Dritten ein familiäres oder wirtschaftliches Naheverhältnis besteht.


Der Vermittler ist als Doppelmakler tätig.

Infrastruktur / Entfernungen

Gesundheit
Arzt <1.500m
Apotheke <1.500m
Krankenhaus <4.000m
Klinik <1.000m

Kinder & Schulen
Schule <1.000m
Kindergarten <1.000m
Universität <1.500m
Höhere Schule <9.500m

Nahversorgung
Supermarkt <1.000m
Bäckerei <3.000m
Einkaufszentrum <8.000m

Sonstige
Bank <3.000m
Geldautomat <3.500m
Post <1.000m
Polizei <4.000m

Verkehr
Bus <1.000m
Straßenbahn <8.500m
Bahnhof <3.000m
Autobahnanschluss <5.000m

Angaben Entfernung Luftlinie / Quelle: OpenStreetMap

Eckdaten Objektnr. 6729/817

Art: Grundstück
Land: Österreich
Kaufpreis: 890.000,00
Grundstücksfl.: 3.857,00 m²
Heizwärmebedarf:  B  42,00 kWh/m²a
fGEE:  A+  0,69
Nebenkostenübersicht Kauf Immobilie merken Exposé

Immobilie anfragen


Ihre persönliche Beratung

Avana Real Estate GmbH

Avana Real Estate GmbH

Avana Real Estate GmbH

T +43 1 934 60 48