Ihre neue Praxis im 8. Bezirk entsteht genau hier! Alles neu + perfekter Stil + barrierefrei!

Büro / Praxis - Praxis, 1080 Wien , Fuhrmannsgasse


Ihre elegante neue Wohnung in 1080 Wien liegt in einer der begehrtesten Gegenden Wiens in Mitten des 8. Bezirks, der Josefstadt. In unmittelbarer Nähe befindet sich der Schönbornpark, eine grüne Oase für Spaziergänge und Entspannung. Die Umgebung zeichnet sich durch charmante Altbauten, diverse stilvolle Straßencafés, kleine Geschäfte und das Theater in der Josefstadt aus. Ein Grätzl mit einzigartigem Ruf und Charme, in dem man einfach gerne lebt. Auch die Verkehrsanbindung ist als hervorragend zu bezeichnen. Zu den U-Bahn Linien der U6 und U3 sind es jeweils nur 2-3 Stationen mit der Straßenbahn. Die Straßenbahnlinie 2 hält in unmittelbarer Nähe in der Josefstädter Straße. Insgesamt bietet diese Wohnung eine einzigartige Gelegenheit, das Wiener Stadt- sowie Kulturleben und den historischen Charme der so liebenswerten Josefstadt zu genießen. Mit ihrer erstklassigen Lage, der Nähe zu Parks, öffentlichen Verkehrsmitteln und Einkaufsmöglichkeiten ist es ein idealer Ort für ein komfortables und anspruchsvolles Leben in Wien.

Beschreibung der Immobilie

Ihre neue Praxis im 8. Bezirk entsteht genau hier! Alles neu + perfekter Stil + barrierefrei!

Sie treten ein und werden sich rundum wohlfühlen! Worauf warten Sie noch?



Werfen Sie einen Blick auf dieses wunderschöne Gründerzeithaus und Sie werden Augen machen.



In ruhiger Lage, im Zentrum der Josefstadt gelegen, wurde einem Stilaltbau in perfekter Präzision und großer Liebe zu Details neues Leben eingehaucht. Im Zuge der Sanierung wurden die Altbauwohnungen rundum kernsaniert und erneuert, sowie das Dach mit 5 großzügigen Wohnungen ausgebaut. Hierbei wurde auf den Erhalt der Altbauelemente höchsten Wert gelegt. Angefangen von der gegliederten Fassade, welche sich stilvoll in die ruhige Wohnstraße einfügt, über den neu gestalteten Hauseingang mit Stuckverzierungen bis hin zum frisch sanierten Stiegenhaus mit Personenlift wird Sie dieses prunkvolle Haus auf Anhieb überzeugen. 



Bei der Gestaltung der einzelnen Einheiten wurde auf eine intelligente und optimierte Raumgestaltung höchsten Wert gelegt, die sich sowohl für Familien als auch Paaren und Singles ideal anbieten. Die sorgfältige Auswahl der Materialien und die einzigartige Liebe zum Detail der sichtbaren Elemente, ergeben ein harmonisches und elegantes Gesamtbild. Hier ist für jede(n) die passende Wohnung zu finden.



Die Ausstattung auf höchstem Niveau überzeugt auf allen Ebenen: Fischgrätparkett in Eiche, Marazzi Fliesen, Grohe/Hansgrohe Armaturen, Laufen Keramiken in Bad und WC, hohe Innentüren (im Altbau in Alt Wien) in Weiß, kontrollierte Wohnraumlüftung, Fußbodenheizung mittels Pellets, neuen 3-fach isolierverglaste Fenster von Josko, Katzbeck und Roto, außenliegender elektrischer Sonnenschutz (im Dachgeschoß), Klimaanlage in jedem Aufenthaltsraum (im Dachgeschoß), uvm. verleihen allen Wohnungen eine warme und wohnliche Atmosphäre. Raumhöhen bis zu 3,50 Meter sorgen für ein angenehmes Wohngefühl! 



Lassen Sie sich bereits jetzt schon von diesem großartigen Projekt mit viel Liebe zum Detail überzeugen und vereinbaren Sie noch heute Ihren persönlichen Besichtigungstermin! 



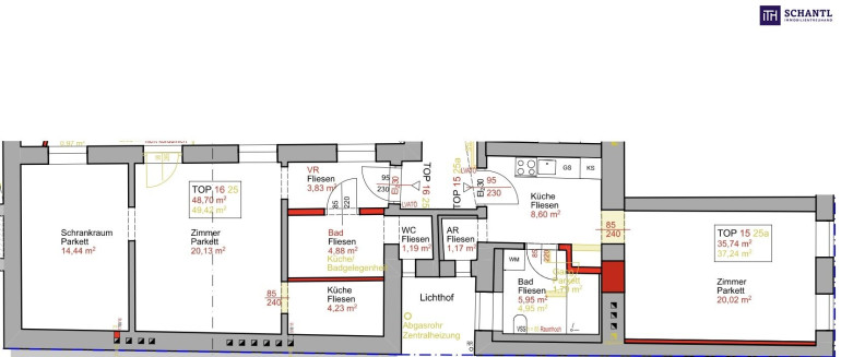
Durch Zusammenlegungen von Einheiten, sind im dritten Obergeschoß Flächen von ca. 60 m² bis ca. 200 m² (mit Kaufpreisen von € 750.000.- bis € 2.370.000.-)möglich. Alle rechtlichen Parameter die für eine Arzt Praxis essentiell sind, wie eine Barrierefreiheit und der notwendigen Bestimmungen im Wohnungseigentumsvertrag, werden gerade vom Verkäufer veranlasst.  



TOP 25 + 25A sieht eine Zusammenlegung von 2 Wohnungen vor. Eine Einheit ist in Richtung Straße - die zweite Wohnung rein in den Innenhof ausgerichtet! Der Grundriss kann nach den Bedürfnissen der Kunden (bauliche Machbarkeiten vorausgesetzt) umgestaltet werden. 





Kaufpreis Top 25+25A: EUR 1.066.000,-



Fläche: ca. 90 m²



Provision: 3% des KP zzgl. 20% Ust.





Bei konkretem Interesse senden wir Ihnen sehr gerne weiterführende Dokumente zu, wie:



o Grundbuchauszug



o Wohnungseigentumsvertrag



o Nutzwertgutachten



o Eigentümerversammlungsprotokoll (Falls vorhanden) etc...





Unser Service für Sie: Wenn Sie sich für diese Immobilie entschieden haben, begleiten wir Sie gerne vom Kaufanbot weg inkl. Klärung von Sonderwünschen und der Vertragsunterzeichnung über die Wohnungsübergabe bis hin zu diversen Ummeldungen wie Strom und Gas. Entsprechende Formulare oder auch Meldezettel stellen wir Ihnen sehr gerne zur Verfügung.



Gerne unterstützen wir Sie auch bei der Finanzierung Ihres Traumobjekts und finden mit unseren langjährigen Partnern die besten Konditionen für Sie.



Vereinbaren Sie noch heute einen Termin, wir beraten Sie gerne!



Sie wollen Ihre Immobilie verkaufen? Dann sind Sie bei uns goldrichtig! Gerne beraten wir Sie kostenlos bei der Bewertung Ihrer Immobilie und präsentieren Ihnen die dafür entscheidenden Informationen und Unterlagen unverbindlich. 



www.schantl-ith.at


Wir weisen darauf hin, dass zwischen dem Vermittler und dem zu vermittelnden Dritten ein familiäres oder wirtschaftliches Naheverhältnis besteht.


Der Vermittler ist als Doppelmakler tätig.

Infrastruktur / Entfernungen

Gesundheit
Arzt <250m
Apotheke <250m
Klinik <500m
Krankenhaus <750m

Kinder & Schulen
Schule <250m
Kindergarten <250m
Universität <500m
Höhere Schule <250m

Nahversorgung
Supermarkt <250m
Bäckerei <250m
Einkaufszentrum <1.250m

Sonstige
Geldautomat <250m
Bank <250m
Post <500m
Polizei <250m

Verkehr
Bus <250m
U-Bahn <750m
Straßenbahn <250m
Bahnhof <750m
Autobahnanschluss <3.500m

Angaben Entfernung Luftlinie / Quelle: OpenStreetMap

Eckdaten Objektnr. 295687

Art: Büro / Praxis - Praxis
Land: Österreich
Baujahr: 1900
Zustand: Erstbezug
Alter: Altbau
Kaufpreis: 1.066.000,00
Kaufpreis / m²: 11.844,44 €
Nutzfläche: 90,00 m²
Bürofläche: 90,00 m²
Zimmer: 3
Bäder: 2
WC: 2
Heizwärmebedarf:  D  116,80 kWh/m²a
fGEE:  D  2,05
Nebenkostenübersicht Kauf Immobilie merken Exposé

Ausstattung

Estrichboden, Fliesen, Parkett, Fußbodenheizung, Zentralheizung, Wohnküche / offene Küche, Personenaufzug, Dusche, Kabel/Satelliten-TV


Immobilie anfragen


Ihre persönliche Beratung

Schantl ITH Immobilientreuhand GmbH

Mark Prettenthaler

Schantl ITH Immobilientreuhand GmbH

T +43 6643070009

H +43 650 56 75 611