NEU! Büro- oder Geschäftsfläche (ca.185 m²) in der Wienerberg City

Büro / Praxis , 1100 Wien


Anbindung: - U6 / Bahnhof Meidling - ca. 15 Minuten - Buslinien 7B und 65A - fußläufig erreichbar - A23 Südosttangente - rasche Anbindung mit dem Auto Wienerberg City / Business Park Vienna Cineplexx Wienerberg Supermarkt: - Billa - Lidl

Beschreibung der Immobilie

NEU! Büro- oder Geschäftsfläche (ca.185 m²) in der Wienerberg City

Sehr geehrte Damen und Herren,



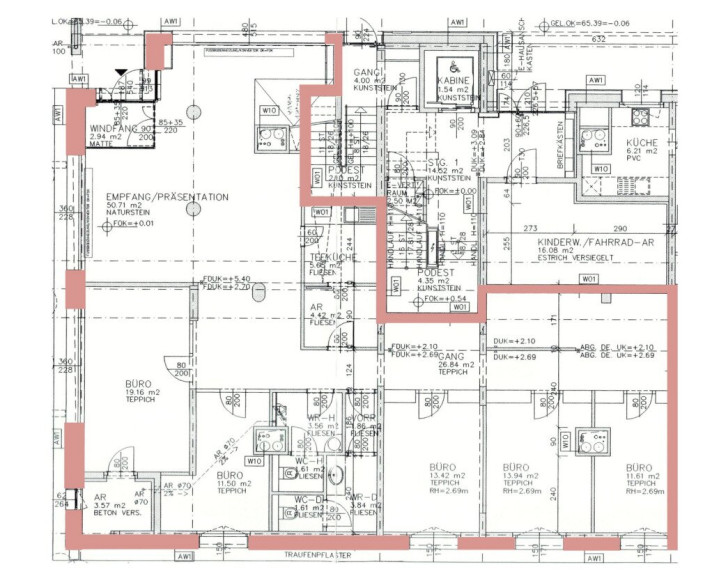
die Geschäftsfläche befindet sich in der Hertha-Firnberg-Straße 11, im Bereich der Wienerberg City im 10. Wiener Gemeindebezirk. Das Objekt verfügt über einen hellen Eingangs- bzw. Präsentationsbereich mit großflächiger Glasfront, eine Teeküche, 6 Büroräume sowie getrennte Sanitäranlagen für Damen und Herren. Die Räumlichkeiten sind vielseitig und flexibel nutzbar und eignen sich sowohl als Geschäftslokal als auch als Bürofläche. Je nach Bedarf wäre auch eine Open-Space-Lösung denkbar, wodurch sich moderne Arbeits- oder Präsentationsbereiche realisieren lassen.



Die Lage zeichnet sich durch gute Erreichbarkeit sowie eine ausgewogene Mischung aus Wohn- und Geschäftsnutzungen aus. Öffentliche Verkehrsanbindungen befinden sich in unmittelbarer Nähe, ebenso diverse Nahversorgungs- und Dienstleistungsbetriebe.




Ausstattung



  • Großzügige Glasfront
  • Teeküche
  • Getrennte Sanitäranlagen
  • Abstellräume
  • Barrierefreier Zugang

     


Parkmöglichkeiten



In der hauseigenen Tiefgarage können Stellplätze angemietet werden.

Die monatliche Miete beträgt € 60,– pro Stellplatz.





Kostenübersicht:



  • Nettomiete (inkl. BK): € 2.337,50
  • Bruttomiete (inkl. BK und USt.): € 2.805,00 


Eine Besichtigung ist jederzeit möglich (auch gerne Abends und am Wochenende).



Ich freue mich auf Ihre Anfrage!




Wir weisen darauf hin, dass zwischen dem Vermittler und dem zu vermittelnden Dritten ein familiäres oder wirtschaftliches Naheverhältnis besteht.


Der Vermittler ist als Doppelmakler tätig.

Infrastruktur / Entfernungen

Gesundheit
Arzt <500m
Apotheke <500m
Klinik <500m
Krankenhaus <500m

Kinder & Schulen
Schule <500m
Kindergarten <500m
Universität <2.000m
Höhere Schule <1.500m

Nahversorgung
Supermarkt <500m
Bäckerei <500m
Einkaufszentrum <1.500m

Sonstige
Geldautomat <500m
Bank <500m
Post <500m
Polizei <1.500m

Verkehr
Bus <500m
U-Bahn <1.000m
Straßenbahn <1.000m
Bahnhof <1.000m
Autobahnanschluss <2.000m

Angaben Entfernung Luftlinie / Quelle: OpenStreetMap

Eckdaten Objektnr. 271545333

Art: Büro / Praxis
Land: Österreich
Zustand: Gepflegt
Kaltmiete (netto): 2.337,50 €
Kaltmiete: 2.337,50 €
MwSt Gesamt: 467,50 €
Nutzfläche: 185,29 m²
Zimmer: 6
WC: 2
Heizwärmebedarf:  A  23,70 kWh/m²a
fGEE:  A  0,77
Nebenkostenübersicht Miete Immobilie merken Exposé

Ausstattung

Einbauküche, Teeküche


Immobilie anfragen


Ihre persönliche Beratung

Immobiliaris GmbH

Lea Leichtfried

Immobiliaris GmbH

T +43 664 1607111