Modernes Büro mit guter Aufteilung nahe Naschmarkt! Garage verfügbar!

Büro / Praxis , 1050 Wien


Naschmarkt, Willi-Frank-Park

Beschreibung der Immobilie

Modernes Büro mit guter Aufteilung nahe Naschmarkt! Garage verfügbar!

Zur Vermietung gelangt ein sehr gut aufgeteiltes Büro in einem prachtvollem Bürohaus in perfekter Lage des 5. Bezirks, zwischen U4 Pilgramgasse (250m) und U4 Kettenbrückengasse/Naschmarkt (450m).



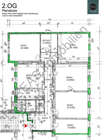
Das Objekt im 2. Stock (mit Lift) besteht aus:



  • 1 Eingangsbereich/Gang
  • 1 Vorraum/Garderobe
  • 2 WCs mit Waschraum
  • 1 Küche inkl. hochwertiger vollausgestatteter Einbauküche inkl. Geräte (Kühl-Gefrierkombi, Herd, Dunstabzug, Geschirrspüler) und Platz für einen Essbereich samt Fenster
  • 6 Zimmer
  • 1 Archivraum/Abstellraum

     
  • Garage nach Verfügbarkeit: Konditionen noch zu besprechen


Das Objekt glänzt mit hochwertigen Parkettböden, einer hochwertigen Einbauküche, modernen WCs & Waschraum und vielen weiteren Ausstattungsmerkmalen:



  • Sämtliche Zimmer sind getrennt begehbar
  • Hochwertige Beleuchtungen
  • Eingangsbereich mit Platz für einen kleinen Wartebereich und/oder Garderobe
  • Praktischer Abstellraum/Archivraum mit Archivschränken inkl. Schienensystem
  • Komplette IT-Verkabelung vorhanden
  • Internorm Kunstofffenster, Doppelt-Isolierverglast
  • Hauszentralheizung ohne Wartungsaufwand für den einzelnen Mieter
  • Ruhelage mit Grün-Fernblick hofseitig.
  • Gartenmitbenützung des Hauses hofseitig.
  • Personenlift
  • Repräsentatives Haus und Eingangsfoyer
  • Garagenplätze direkt in der hauseigenen Tiefgarage können nach Verfügbarkeit angemietet werden. Konditionen noch zu besprechen.


Miete: Netto € 15,00/m2 zzgl. BK & Ust. / Monat

Miete Netto € 3.255,00 zzgl. Betriebskosten Netto € 345,77 zzgl. Lift Betriebskosten Netto € 54,37 = Netto Gesamt € 3.655,14 zzgl. 20% Ust. € 731,02 = Brutto Gesamt € 4.386,16 /Monat

Betriebskosten exkl. Heizung/Strom/Internet/TV etc.

Miete exkl. etwaige Garagenplätze



Befristete Vermietung: Dauer noch zu besprechen! Langfristige Mieter erwünscht! Kein Eigenbedarf!



Für Fragen und Besichtigungen stehen wir jederzeit gerne zur Verfügung!



Wir ersuchen Sie, bereits in Ihrer Anfrage Ihre vollständigen Kontaktdaten (Adresse, Mail, Telefon) anzugeben, damit wir Ihre Anfrage rascher bearbeiten können. Aufgrund der Nachweispflicht gegenüber dem Abgeber sind wir verpflichtet, vor Bekanntgabe der Adresse diese Daten aufzunehmen und ersuchen um Ihr Verständnis.



Der guten Ordnung halber halten wir fest, dass, sofern im Angebot nicht anders vermerkt, bei erfolgreichem Vertragsabschluss eine Provision anfällt, die den in der Immobilienmaklerverordnung BGBI. 262 und 297/1996 festgelegten Provisionssätzen entspricht. Diese Provisionspflicht besteht auch dann, wenn Sie die Ihnen überlassenen Informationen an Dritte weitergeben.



Einzelne Bilder oder Visualisierungen in den Vermarktungsunterlagen, Exposés oder Inseraten wurden unter Umständen digital, teilweise auch mithilfe von künstlicher Intelligenz (KI), bearbeitet und dienen ausschließlich der Veranschaulichung. Sie können vom tatsächlichen Zustand, der Ausstattung oder Ausführung der Immobilien abweichen. Verbindlich sind ausschließlich die Angaben im Kauf-/Mietangebot sowie bei Besichtigung vor Ort.



Sämtliche Ihnen hiermit übermittelte Angaben wurden uns, seitens des Abgebers bekannt gegeben. Eine Garantie auf Richtigkeit und Vollständigkeit können wir nicht übernehmen.

Noch nichts gefunden? Wir informieren Sie über geeignete Immobilienangebote noch vor allen anderen.
Legen Sie jetzt Ihren individuellen Suchagenten unter folgendem Link an. Wir schicken Ihnen passende Immobilien exklusiv vorab zu.

Suchagent anlegen - https://reas-realitaeten-asmus.service.immo/registrieren/de


Wir weisen darauf hin, dass zwischen dem Vermittler und dem zu vermittelnden Dritten ein familiäres oder wirtschaftliches Naheverhältnis besteht.


Der Vermittler ist als Doppelmakler tätig.

Infrastruktur / Entfernungen

Gesundheit
Arzt <500m
Apotheke <500m
Klinik <500m
Krankenhaus <1.000m

Kinder & Schulen
Schule <500m
Kindergarten <500m
Universität <1.000m
Höhere Schule <500m

Nahversorgung
Supermarkt <500m
Bäckerei <500m
Einkaufszentrum <1.000m

Sonstige
Geldautomat <500m
Bank <500m
Post <500m
Polizei <500m

Verkehr
Bus <500m
U-Bahn <500m
Straßenbahn <1.000m
Bahnhof <500m
Autobahnanschluss <4.000m

Angaben Entfernung Luftlinie / Quelle: OpenStreetMap

Verfügbare Flächen

Stiege/Bauteil


Stockwerk
Top
Art
Fläche
Terrasse
Nettomiete/m²
BK/m²

2. Etage
-
Büro / Praxis
217,00 m2
-
-

2. Etage
-
Büro / Praxis
217,00 m2
-
-

verfügbare flächen

Stiege/Bauteil

Stockwerk
Top
Art
Fläche
Teilbar ab
Terrasse
Nettomiete/m2 von-bis
BK/m2
2. Etage
-
Büro / Praxis
217,00 m2
-
-
-
-
Stockwerk
Top
Art
Fläche
Teilbar ab
Terrasse
Nettomiete/m2 von-bis
BK/m2
2. Etage
-
Büro / Praxis
217,00 m2
-
-
-
-

Eckdaten Objektnr. 4092

Art: Büro / Praxis
Land: Österreich
Kaltmiete (netto): 15,00 €
Kaltmiete: 15,00 €
Miete / m²: 15,00 €
Nutzfläche: 217,00 m²
Bürofläche: 217,00 m²
Zimmer: 6
WC: 2
Heizwärmebedarf:  C  18,36 kWh/m²a
fGEE:  B  0,90
Nebenkostenübersicht Miete Immobilie merken Exposé

Ausstattung

Parkett, Gas, Zentralheizung, Einbauküche, Personenaufzug, Garage


Immobilie anfragen


Ihre persönliche Beratung

REAS Realitäten Asmus GmbH

REAS Immobilien

REAS Realitäten Asmus GmbH

T +43 664 24 77 08 7