Wunderschöne Terrassenwohnung mit einem herrlichen Ausblick - Nähe Badeteich Hirschstetten

Wohnung , 1220 Wien , Pogrelzstraße


Beschreibung der Immobilie

Wunderschöne Terrassenwohnung mit einem herrlichen Ausblick - Nähe Badeteich Hirschstetten

Dieses moderne Wohnprojekt liegt eingebettet in einer großzügigen Gartenanlage mitten im 22. Bezirk. Die Wohneinheiten sind auf 4 Einzelgebäude aufgeteilt und fügen sich harmonisch in die grüne Umgebung ein. 



Alle Wohnungen sind mit Balkonen, Terrassen oder Eigengärten ausgestattet und bieten ausreichend Entspannung in den privaten Freiräumen. Besonders attraktiv wird die Lage im Sommer, wo man in wenigen Minuten mit dem Rad gemütlich zur Alten Donau oder dem Badeteich Hirschstetten radeln kann.



In knapp 10 Minuten gelangt man öffentlich in den Gewerbepark Stadlau und kann dort nach Lust und Laune dem Shoppen frönen. Richtig urban wird es in 10 Minuten in entgegengesetzter Richtung beim Kagraner Platz. Von dort ist man mit der U1 auch in Windeseile in der Wiener Innenstadt.



Dieses kleinteilige Wohnprojekt bietet vor allem für sportbegeisterte und erholungssuchende Bewohner, die preisgünstig und dennoch zentral wohnen möchten, ein perfektes Zuhause.



Bei der Ausstattung der Wohnungen wurde besonderes Augenmerk auf  hohen Wohnkomfort gelegt. Von der Fußbodenheizung über elegante Böden oder dem außen liegenden Sonnenschutz - hier lebt es sich hier einfach gemütlich und entspannt.



  • Schöne Freiflächen bei allen Wohnungen
  • Tiefgarage mit potenzieller E-Mobilität
  • Kellerabteile, Fahrrad- und Kinderwagenräume
  • Sicherheitswohnungseingangstüren
  • Außenliegender Sonnenschutz mit elektrischen Rolläden
  • Attraktive und hochwertige Bodenbeläge
  • Fußbodenheizung und -stützkühlung
  • Energiesparende Bauweise mit Klimazertifizierung (Grundwasser-Wärmepumpe mit PV-Anlage)
  • Moderne Küchen in zeitlosem Design

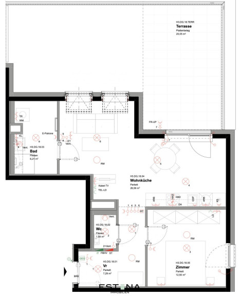
Raumaufteilung:
- Vorraum 

- sonnige, voll ausgestattete Wohnküche 

- Ausgang zur Terrasse 

- Schlafzimmer mit ausreichend Platz für Stauraum

- Badezimmer mit Waschbecken, Dusche und Waschmaschinenanschluss 

- separate Toilette mit Handwaschbecken 

- große Terrasse  



Lage:
Die Pogrelzstraße 83 liegt am Rande eines bestehenden Kleingartengebietes im 22. Wiener Gemeindebezirk und ist durch die Nähe zur U-Bahn Linie U1, zur Südosttangente und zu dem Gewerbegebiet Stadlau infrastrukturell gut erschlossen. Der Badeteich Hirschstetten ist mit den Öffis in nur 15 Minuten erreichbar und bietet im Sommer eine willkommene Abkühlung. In unmittelbarer Umgebung befinden sich Kindergärten, eine Volksschule und Nahversorger, somit sind sämtliche Erledigungen des täglichen Bedarfs fußläufig leicht und unkompliziert zu erledigen.



Kosten:
Miete: € 1.050,00 inkl. BK und 10% USt.

Kaution: € 3.150,00



Zusätzlich besteht die Möglichkeit einen Garagenstellplatz um € 95,- anzumieten. 



Kontakt:
Bei Fragen oder zur Vereinbarung eines Besichtigungstermins wenden Sie sich bitte an Herrn Benedikt Wawra unter wawra@estina.at oder mobil unter 0676 331 85 44. 


Der Immobilienmakler erklärt, dass er – entgegen dem in der Immobilienwirtschaft üblichen Geschäftsgebrauch des Doppelmaklers – einseitig nur für den Vermieter tätig ist.

Eckdaten Objektnr. 26196

Art: Wohnung
Land: Österreich
Baujahr: 2022
Zustand: Neuwertig
Gesamtmiete: 1.050,00
Kaltmiete (netto): 824,71 €
Kaltmiete: 954,55 €
Betriebskosten: 129,84 €
MwSt Gesamt: 95,45 €
Wohnfläche: 54,10 m²
Zimmer: 2
Bäder: 1
WC: 1
Terrassen: 1
Stellplätze: 1
Heizwärmebedarf:  B  29,45 kWh/m²a
fGEE:  A+  0,69
Nebenkostenübersicht Miete Immobilie merken Exposé

Ausstattung

Fliesen, Parkett, Fußbodenheizung, Wohnküche / offene Küche, Personenaufzug, Nordbalkon, Dusche, Garage


Immobilie anfragen


Ihre persönliche Beratung

ESTINA Immobilien GmbH

Benedikt Wawra

WH2 Immobilienverwertungs GmbH

H +43 676 331 85 44