Gartenwohnung in historischem Ambiente - 2 Zimmer, 50 m² Eigengarten - zu mieten in 1130 Wien
Wohnung
- Erdgeschoß,
1130
Wien
,
Auhofstraße 258
Der Standort der Liegenschaft in der Auhofstraße 258 besticht durch seine attraktive Lage in Hietzing. Die Villa liegt in einer ruhigen Sackgasse neben dem Naturschutzgebiet Lainzer Tiergarten und ist gleichzeitig optimal an das Verkehrsnetz angebunden. Auf einzigartige Weise vereint die Umgebung mehrere Vorzüge wie Freizeit, Natur, Nahversorgung, Parkmöglichkeiten sowie optimale Verkehrsanbindung. In unmittelbarer Nähe finden Sie das Auhofcenter mit zahlreichen Geschäften, Gastronomie und Entertainment. Das St. Josef Spital sowie diverse Schulen ergänzen das infrastrukturelle Angebot. Die öffentliche Anbindung ist durch den fußläufig erreichbaren Bahnhof Hütteldorf gegeben. Der Wiental-Radweg führt direkt an der Liegenschaft vorbei, hier gelangen Sie in ca. 12 km zum Stephansplatz.
Beschreibung der Immobilie
Gartenwohnung in historischem Ambiente - 2 Zimmer, 50 m² Eigengarten - zu mieten in 1130 Wien
Villa AuhofFertig gestellte Gartenwohnung mit 2 Zimmern
Im Westen von Wien, umgeben von der Natur des Lainzer Tiergartens, bietet die Villa Auhof ein geschmackvolles Zuhause.
In der exklusiven Villa trifft historischer Charme der Jahrhundertwende auf modernen Wohnkomfort.
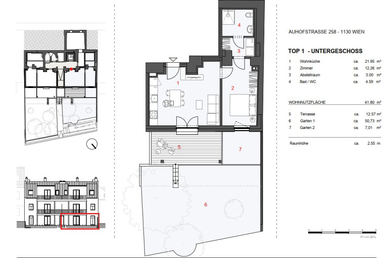
Die im Gartengeschoß gelegene, kompakte 2-Zimmer-Wohnung bietet auf 42 m² modernen Komfort in historischem Ambiente. Die Einheit verfügt über eine großzügige Wohnküche, ein Schlafzimmer, einen geräumigen Abstellraum sowie ein praktisches Duschbad. Das Highlight der Top 1 ist der private Gartenanteil mit 58 m² mit Baumbestand und Heckenbepflanzung. Die wettergeschützte 12 m² Terrasse sorgt für entspannte Stunden im Grünen.
Raumhöhe 2,55 m
Eckdaten Objektnr. 109261305_7
| Art: | Wohnung - Erdgeschoß |
| Land: | Österreich |
| Baujahr: | 2024 |
| Zustand: | Erstbezug |
| Gesamtmiete: | 1.232,26 € |
| Kaltmiete (netto): | 1.003,20 € |
| Betriebskosten: | 117,04 € |
| Wohnfläche: | 41,80 m² |
| Zimmer: | 2 |
| Bäder: | 1 |
| Terrassen: | 1 |
| Garten: | 57,74 m² |
Ausstattung
Parkett, Fußbodenheizung, Dusche
Ihre persönliche Beratung
Dieser Makler ist ein offizielles Mitglied des IR – ir.at Mehr Erfahren
