"Penthouse-Büro" in der BahnhofCITY Wels"

Büro / Praxis - Bürofläche, 4600 Wels


Direkt am Bahnhof in Wels

Beschreibung der Immobilie

"Penthouse-Büro" in der BahnhofCITY Wels"

"Penthouse-Büro" BahnhofCITY in Wels



Das Penthouse-Büro befindet sich im Herzen von Wels. Die zentrale Lage in der BahnhofCITY in Wels garantiert eine exzellente Erreichbarkeit und beste Anbindung an den öffentlichen Nah- und Fernverkehr.

Wels, als bedeutender Wirtschaftsstandort, bietet eine optimale Infrastruktur für Unternehmen verschiedenster Branchen.

Die Nähe zu Geschäften, Restaurants und Cafés sowie vielfältigen Dienstleistungsangeboten sorgt für ein lebendiges Umfeld und eine hohe Lebensqualität. Geschäftspartner und Mitarbeiter werden die Vorzüge dieser zentralen Lage ebenso zu schätzen wissen.



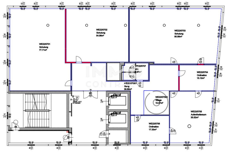
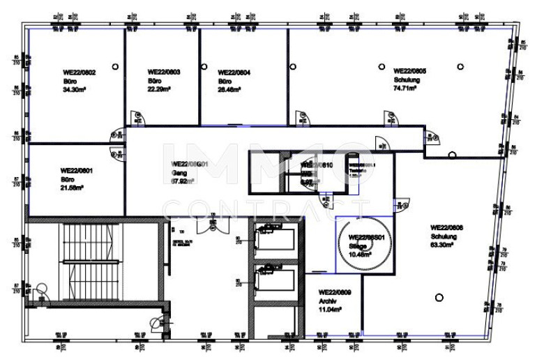
Bürofläche:

+ Gesamtfläche: zweigeschossiges Büro rund 674 m² im 7. u. 8. OG. mit

traumhaften Fernblick über die Stadt

+ Tiefgaragenplätze: 5 Stellplätze

+ Verfügbarkeit ab sofort



Ausstattung:

+ Hochwertige Bürofläche: Profitieren Sie von einer gut durchdachten

Raumaufteilung und optimalen Arbeitsbedingungen in einer der gefragtesten

Lagen in Wels

+ Klimatisierung: Beide Geschosse sind klimatisiert, um ein angenehmes

Arbeitsklima auch in den Sommermonaten zu gewährleisten

+ IT-Infrastruktur: Vorhandene IT-Infrastruktur ermöglicht eine sofortige und

nahtlose Integration Ihrer technischen Anforderungen.



Kaufpreis:

EUR 1.699.000,- zzgl. 20% USt

zzgl. Kaufnebenkosten



Ergreifen Sie die Chance und investieren Sie in eine erstklassige Bürofläche, die allen Anforderungen moderner Geschäftswelten entspricht.



Wir freuen uns darauf, Ihnen das Penthouse-Büro persönlich vorstellen zu dürfen.

Infrastruktur / Entfernungen

Gesundheit
Arzt <500m
Apotheke <500m
Klinik <500m
Krankenhaus <1.500m

Kinder & Schulen
Schule <500m
Kindergarten <500m
Universität <500m

Nahversorgung
Supermarkt <500m
Bäckerei <500m
Einkaufszentrum <2.500m

Sonstige
Bank <500m
Geldautomat <500m
Post <500m
Polizei <1.000m

Verkehr
Bus <500m
Autobahnanschluss <2.500m
Bahnhof <500m
Flughafen <2.500m

Angaben Entfernung Luftlinie / Quelle: OpenStreetMap

Eckdaten Objektnr. 1939/129261

Art: Büro / Praxis - Bürofläche
Land: Österreich
Baujahr: 2005
Zustand: Gepflegt
Kaufpreis: 2.038.800,00
Kaufpreis / m²: 2.520,77 €
Betriebskosten: 2.806,24 €
Heizkosten: 545,12 €
MwSt Gesamt: 670,27 €
Nutzfläche: 674,00 m²
Gesamtfläche: 674,00 m²
Zimmer: 13
WC: 4
Heizwärmebedarf:  B  21,00 kWh/m²a
fGEE:  B  0,87
Nebenkostenübersicht Kauf Immobilie merken Exposé

Ausstattung

Zentralheizung, Einbauküche, Personenaufzug


Immobilie anfragen


Ihre persönliche Beratung

IMMOcontract Immobilien Vermittlung GmbH

Klaus Egger

IMMOcontract Immobilien Vermittlung GmbH

T +43 50450

H +43 676 841 420 424