Donaustadt - Am langen Felde

Wohnung , 1220 Wien


Die fertiggestellten Eigentumswohnungen Am Langen Felde 24 liegen in ausgezeichneter Lage der Donaustadt – nur wenige Minuten von der U1 Kagraner Platz entfernt. Die Umgebung verbindet urbanen Komfort mit naturnaher Erholung: Alte Donau, Lobau, die Blumengärten Hirschstetten und der Badeteich Hirschstetten bieten zahlreiche Freizeitmöglichkeiten im Grünen. Sämtliche Nahversorger, Schulen, Kindergärten und Ärzte sind fußläufig erreichbar. Das nahegelegene Donauzentrum und die hervorragende öffentliche Anbindung sorgen für beste Infrastruktur. Der 22. Bezirk zählt zu den aufstrebendsten Wohngegenden Wiens – eine Wohnung hier steht für hohe Lebensqualität und eine wertbeständige Investition.

Beschreibung der Immobilie

Donaustadt - Am langen Felde

Wohnen Am Langen Felde 24 – fertiggestellt, hochwertig & gut angebunden



Im 22. Wiener Gemeindebezirk, nahe der U1-Station Kagraner Platz, stehen bereits fertiggestellte Eigentumswohnungen zum Einzug bereit. Die Wohnhausanlage mit vier Stiegen und Tiefgarage überzeugt durch eine erstklassige, energieeffiziente Bauweise mit Fernwärme, Photovoltaikanlage und Fußbodenheizung – ideal für alle, die nachhaltig und zukunftssicher wohnen möchten.



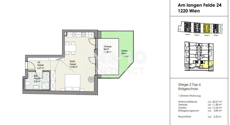
Jede Wohnung verfügt über eine private Freifläche – sei es Garten, Balkon, Loggia oder Terrasse – und bietet durchdachte Grundrisse sowie hochwertige Ausstattung: Echtholzparkett, moderne Fliesen, eine voll ausgestattete Einbauküche und ein stilvoll ausgestattetes Badezimmer sind bereits im Kaufpreis enthalten.



Die Lage verbindet urbanen Komfort mit naturnaher Lebensqualität: Alte Donau, Lobau, Blumengärten und Badeteich Hirschstetten sind ebenso schnell erreichbar wie das Donauzentrum, Nahversorger, Schulen und medizinische Versorgung.



Beziehen Sie jetzt Ihr neues Zuhause in der Donaustadt – bezugsfertig, modern und wertbeständig.



Für eine Besichtigung steht Ihnen Herr Martin Melcher (0677 617 324 39)

gerne zur Verfügung.

Infrastruktur / Entfernungen

Gesundheit
Arzt <500m
Apotheke <500m
Klinik <2.500m
Krankenhaus <3.500m

Kinder & Schulen
Schule <500m
Kindergarten <500m
Universität <1.500m
Höhere Schule <500m

Nahversorgung
Supermarkt <500m
Bäckerei <500m
Einkaufszentrum <1.500m

Sonstige
Geldautomat <500m
Bank <500m
Post <500m
Polizei <1.500m

Verkehr
Bus <500m
U-Bahn <500m
Straßenbahn <500m
Bahnhof <500m
Autobahnanschluss <2.000m

Angaben Entfernung Luftlinie / Quelle: OpenStreetMap

Eckdaten Objektnr. 1939/162809

Art: Wohnung
Land: Österreich
Baujahr: 2025
Zustand: Erstbezug
Kaufpreis: 315.400,00
Wohnfläche: 42,07 m²
Zimmer: 1
Bäder: 1
Terrassen: 1
Garten: 11,04 m²
Heizwärmebedarf:  A  24,40 kWh/m²a
fGEE: 0,71
Nebenkostenübersicht Kauf Immobilie merken Exposé

Ausstattung

Fußbodenheizung


Immobilie anfragen


Ihre persönliche Beratung

IMMOcontract Immobilien Vermittlung GmbH

Martin Melcher

IMMOcontract Immobilien Vermittlung GmbH

T +43 677 6173 2439

H +43 677 6173 2439