Provisionsfrei mit Ausblick: Attraktives Eigentum in beeindruckender Gartenlandschaft

Wohnung - Etage, 1100 Wien


Durch die nahegelegene U-Bahn (U1) ist die Innenstadt und der Hauptbahnhof nur einen Katzensprung entfernt. In Richtung Süden warten zahlreiche Grünräume und Naherholungsgebiete, welche in 10 Minuten mit dem Auto zu erreichen sind. Vorhanden ist ebenso eine ausgezeichnete Infrastruktur mit öffentlichen, wie auch privaten Schulen und Kindergärten. Der FH Campus Wien ist nur wenige Minuten mit dem Bus oder Auto entfernt. Zum nächsten Supermarkt kommt man in einer Minute.

Beschreibung der Immobilie

Provisionsfrei mit Ausblick: Attraktives Eigentum in beeindruckender Gartenlandschaft

„Am marokkanischen Platz“ – Ein verborgenes Gartenrefugium im Herzen Wiens



Eingebettet in ein visionäres Gesamtkonzept aus Architektur, Natur und Kunst entfaltet sich mit dem Projekt Am marokkanischen Platz ein außergewöhnlicher Wohnraum, der urbanes Leben neu interpretiert.



Als Teil des renommierten Ensembles am Schönen Platz vereint dieses Projekt zeitlose Eleganz mit einer künstlerisch inszenierten Gartenlandschaft, kuratiert vom international gefeierten Künstler Andre Heller. Üppige Grünräume, duftende Gärten und architektonisch integrierte Naturflächen schaffen eine Atmosphäre, die in Wien ihresgleichen sucht.



Die exklusiven Eigentumswohnungen – mit durchdachten Grundrissen und großzügigen Freiflächen – eröffnen fließende Übergänge zwischen Innen- und Außenraum. Bodentiefe Fenster holen Licht und Ruhe in die Wohnräume, während Balkone, Loggien und Terrassen zu privaten Rückzugsorten im Grünen werden.



In der Ausstattung spiegelt sich der kompromisslose Qualitätsanspruch wider: edle Materialien, fein abgestimmte Details und eine klare, moderne Formensprache schaffen ein Wohngefühl von diskreter Exklusivität und zeitloser Wertigkeit 



Trotz dieser ruhigen, fast privaten Atmosphäre überzeugt die Lage durch perfekte Anbindung: Die Wiener Innenstadt ist in wenigen Minuten erreichbar, während nahegelegene Erholungsräume wie der Wienerberg ein Maximum an Lebensqualität bieten.



Ein architektonisches Statement für all jene, die mehr als nur eine Wohnung suchen, sondern ein Lebensgefühl zwischen Design, Natur und urbaner Exzellenz.

Für mehr Information stehen wir sehr gerne zur Verfügung! Die Immobilie kann bereits besichtigt werden.


Wir weisen darauf hin, dass zwischen dem Vermittler und dem zu vermittelnden Dritten ein familiäres oder wirtschaftliches Naheverhältnis besteht.


Der Vermittler ist als Doppelmakler tätig.

Infrastruktur / Entfernungen

Gesundheit
Arzt <500m
Apotheke <500m
Klinik <1.500m
Krankenhaus <2.000m

Kinder & Schulen
Schule <500m
Kindergarten <500m
Universität <500m
Höhere Schule <3.000m

Nahversorgung
Supermarkt <500m
Bäckerei <1.000m
Einkaufszentrum <2.000m

Sonstige
Geldautomat <1.000m
Bank <1.000m
Post <1.000m
Polizei <1.000m

Verkehr
Bus <500m
U-Bahn <1.000m
Straßenbahn <500m
Bahnhof <1.000m
Autobahnanschluss <1.000m

Angaben Entfernung Luftlinie / Quelle: OpenStreetMap

Eckdaten Objektnr. 1939/164045

Art: Wohnung - Etage
Land: Österreich
Baujahr: 2024
Zustand: Erstbezug
Alter: Neubau
Kaufpreis: 440.000,00
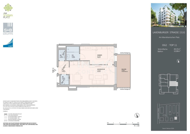
Wohnfläche: 49,35 m²
Zimmer: 2
Bäder: 1
WC: 1
Heizwärmebedarf:  A  19,31 kWh/m²a
fGEE:  A+  0,68
Nebenkostenübersicht Kauf Immobilie merken Exposé

Ausstattung

Fliesen, Parkett, Personenaufzug, Kabel/Satelliten-TV, Tiefgarage


Immobilie anfragen


Ihre persönliche Beratung

IMMOcontract Immobilien Vermittlung GmbH

Tsvetilena Galabinova

IMMOcontract Immobilien Vermittlung GmbH

T +43 664 6000 8196

H +43 664 6000 8196

F +43 732 890 800 2466