Wohnen auf höchstem Niveau: Luxus-Penthouse mit 3,60 m Raumhöhe und 4 Zimmern

Wohnung - Dachgeschoß, 1130 Wien


Die Auhofstraße 258 vereint exklusive Wohnqualität mit einer Lage, die ihresgleichen sucht. Eingebettet in die grüne Idylle des traditionsreichen Bezirks Hietzing, einer der prestigeträchtigsten Adressen Wiens, genießen Sie hier die perfekte Balance aus Ruhe, Natur und urbaner Nähe. Nur wenige Schritte entfernt sorgen die U4-Station Hütteldorf, diverse S-Bahn- und Buslinien für eine schnelle, bequeme Anbindung ins Wiener Stadtzentrum. Zugleich eröffnet sich direkt vor der Haustür ein reichhaltiges Angebot an erstklassigen Einkaufsmöglichkeiten, feiner Gastronomie, renommierten Bildungseinrichtungen sowie umfassender medizinischer Versorgung. Für aktive Erholung und entspannte Stunden im Freien bietet die Umgebung eine Vielzahl an Möglichkeiten – vom malerischen Wiental-Radweg über gepflegte Parks bis hin zu den weitläufigen Grünflächen des Wienerwalds. Hier wohnen Sie dort, wo andere Erholung suchen – inmitten von Natur und dennoch in bester Verbindung zur pulsierenden Metropole Wien.

Beschreibung der Immobilie

Wohnen auf höchstem Niveau: Luxus-Penthouse mit 3,60 m Raumhöhe und 4 Zimmern

Diese außergewöhnliche Dachgeschosswohnung (Top 6) vereint den Charakter einer stilvoll revitalisierten Altbauvilla mit zeitgemäßer Architektur und moderner Haustechnik. Ein hochwertiges Zuhause für Mieter:innen mit gehobenem Anspruch.



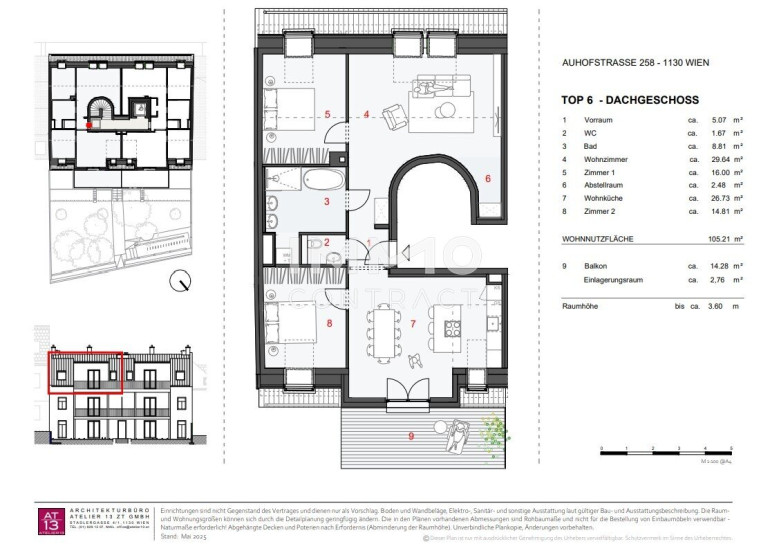
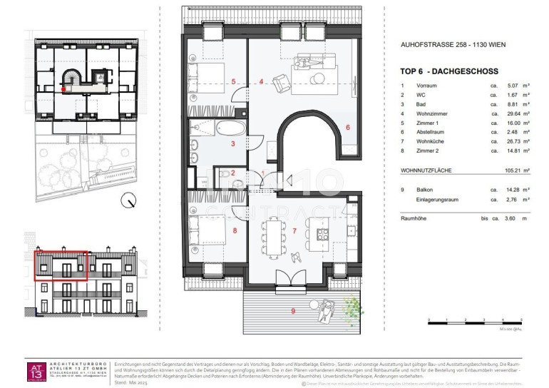
Auf rund 105,21 m² Wohnnutzfläche entfaltet sich ein großzügiges, funktional durchdachtes Raumkonzept.



Die ca. 26,73 m² große Wohnküche bildet das kommunikative Zentrum der Wohnung und bietet ausreichend Platz für Kochen, Essen und geselliges Beisammensein. Das separat situierte, ca. 29,64 m² große Wohnzimmer beeindruckt mit einer außergewöhnlichen Raumhöhe von bis zu ca. 3,60 m und vermittelt ein repräsentatives, loftartiges Ambiente mit beeindruckender Großzügigkeit.



Zwei gut proportionierte Schlafzimmer (ca. 16,00 m² und ca. 14,81 m²) bieten ruhige Rückzugsorte mit angenehmer Privatsphäre.



Das hochwertig ausgestattete Badezimmer verfügt über eine bodenebene Dusche mit Glasabtrennung, ausgewählte Armaturen, Waschmaschinenanschluss sowie einen elektrischen Handtuchheizkörper. Ein separates WC sowie ein praktischer Abstellraum ergänzen die funktionale Raumaufteilung.



Ausstattungs-Highlights von Top 6:




  • Eichenparkett in Dielenoptik im gesamten Wohnbereich



  • Fußbodenheizung mit Einzelraumregelung



  • Klimaanlage im Dachgeschoss



  • 3-fach verglaste Holz-Alu-Fenster (innen weiß, außen schwarz)



  • Video-Gegensprechanlage mit Türöffner



  • Sicherheitseingangstüre mit Mehrfachverriegelung



  • Zentrale Schließanlage



  • Lift im Haus



  • Energieeffiziente Luftwärmepumpentechnologie




Der ca. 14,28 m² große Balkon erweitert den Wohnraum ins Freie und bietet einen angenehmen, ruhigen Ausblick ins Grüne – ein privater Rückzugsort über den Dächern von Hietzing.



Top 6 verbindet architektonische Eleganz mit modernem Wohnkomfort in einer der begehrtesten Wohnlagen Wiens. Diese Wohnung ist ideal für Paare, kleine Familien oder anspruchsvolle Mieter:innen, die Wert auf Qualität, Großzügigkeit und stilvolles Ambiente legen.


Der Immobilienmakler erklärt, dass er – entgegen dem in der Immobilienwirtschaft üblichen Geschäftsgebrauch des Doppelmaklers – einseitig nur für den Vermieter tätig ist.

Infrastruktur / Entfernungen

Gesundheit
Arzt <500m
Apotheke <1.000m
Klinik <3.000m
Krankenhaus <1.000m

Kinder & Schulen
Schule <500m
Kindergarten <500m
Universität <2.000m
Höhere Schule <5.000m

Nahversorgung
Supermarkt <500m
Bäckerei <1.000m
Einkaufszentrum <3.000m

Sonstige
Geldautomat <500m
Bank <500m
Post <2.000m
Polizei <1.000m

Verkehr
Bus <500m
U-Bahn <500m
Straßenbahn <500m
Bahnhof <1.000m
Autobahnanschluss <3.000m

Angaben Entfernung Luftlinie / Quelle: OpenStreetMap

Eckdaten Objektnr. 1939/162500

Art: Wohnung - Dachgeschoß
Land: Österreich
Baujahr: 2025
Zustand: Erstbezug
Alter: Neubau
Gesamtmiete: 2.950,00
Kaltmiete (netto): 2.314,22 €
Kaltmiete: 2.681,82 €
Betriebskosten: 367,60 €
MwSt Gesamt: 268,18 €
Wohnfläche: 105,21 m²
Nutzfläche: 105,21 m²
Gesamtfläche: 119,49 m²
Zimmer: 4
Bäder: 1
WC: 1
Balkone: 1
Keller: 2,76 m²
Heizwärmebedarf:  B  40,20 kWh/m²a
fGEE:  A  0,82
Nebenkostenübersicht Miete Immobilie merken Exposé

Ausstattung

Parkett, Fliesen, Fußbodenheizung, Wohnküche / offene Küche, Personenaufzug, Südbalkon, Badewanne, Dusche, Kabel/Satelliten-TV


Immobilie anfragen


Ihre persönliche Beratung

IMMOcontract Immobilien Vermittlung GmbH

Julian Pelzmann

IMMOcontract Immobilien Vermittlung GmbH

T +43 664 6000 8409

H +43 664 6000 8409