Vivara - urbaner Lifestyle, offene Räume, entspannte Atmosphäre – provisionsfrei

Wohnung - Etage, 1140 Wien


Die Wohnanlage befindet sich in einer begehrten Lage in Wien - im charmanten Stadtteil Penzing im 14. Wiener Gemeindebezirk, nur wenige Gehminuten vom prachtvollen Schlosspark Schönbrunn entfernt. In rund fünf Minuten erreichen Sie den Haupteingang der weitläufigen Parkanlage, die zu entspannten Spaziergängen, sportlichen Aktivitäten oder kulturellen Erlebnissen einlädt. Die hervorragende Verkehrsanbindung - mit der U4-Station Wien Hietzing sowie dem Bahnhof Penzing in fußläufiger Distanz - sorgt für eine schnelle Verbindung ins Wiener Stadtzentrum. Zahlreiche Straßenbahn- und Buslinien ergänzen das öffentliche Verkehrsnetz optimal. So vereint die Lage auf einzigartige Weise das elegante Flair Penzings mit der unmittelbaren Nähe zu einem der bedeutendsten historischen und grünen Juwelen Wiens. Somit profitieren die Bewohner von der perfekten Symbiose aus Stadtleben und Natur.

Beschreibung der Immobilie

Vivara - urbaner Lifestyle, offene Räume, entspannte Atmosphäre – provisionsfrei

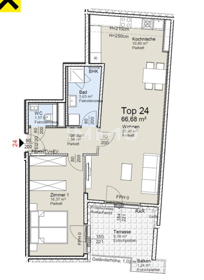
Der neue Lieblingsplatz für alle, die mitten im Leben stehen und sich ein stylisches Zuhause mit dem gewissen Extra wünschen. Diese Terrassenwohnung im 3. Liftstock verbindet modernes Wohnen mit smarter Raumaufteilung und einer Prise Großstadtfeeling.



Der offene Wohnbereich mit integrierter Küche ist der perfekte Ort zum Ankommen, Chillen oder Freunde einladen. Hier wird gekocht, gelacht und gelebt – ganz ohne Trennung zwischen Alltag und Freizeit. Die großen Fenster sorgen für viel Licht und eine angenehme Atmosphäre.



Ein echtes Highlight: die Loggia. Ob Frühstück mit Aussicht, Abenddrink im Freien oder einfach ein Ort zum Durchatmen – dieser private Outdoor-Bereich macht das Wohnerlebnis komplett.



Das Schlafzimmer ist großzügig geschnitten und bietet jede Menge Platz für Kleidung, Sneaker-Sammlung oder den begehbaren Schrank, von demschon immer geträumt wurde.



Das Bad ist modern mit einer Dusche ausgestattet – praktisch, schick und perfekt für schnelle Morgenroutinen. Das WC ist separat – ein Komfort, den man schnell zu schätzen weiß.



Im 3. Stock mit Lift gelegen, genießt man hier Ruhe und gleichzeitig kurze Wege – ob zur Uni, ins Büro oder ins nächste Café.



Diese Wohnung ist genau richtig für alle, die urban wohnen wollen, ohne auf Komfort zu verzichten. Stylish. Praktisch.

Infrastruktur / Entfernungen

Gesundheit
Arzt <500m
Apotheke <500m
Klinik <500m
Krankenhaus <1.000m

Kinder & Schulen
Schule <500m
Kindergarten <500m
Universität <1.500m
Höhere Schule <2.500m

Nahversorgung
Supermarkt <500m
Bäckerei <500m
Einkaufszentrum <2.000m

Sonstige
Geldautomat <1.000m
Bank <1.000m
Post <1.000m
Polizei <1.000m

Verkehr
Bus <500m
U-Bahn <500m
Straßenbahn <500m
Bahnhof <500m
Autobahnanschluss <4.500m

Angaben Entfernung Luftlinie / Quelle: OpenStreetMap

Eckdaten Objektnr. 1939/162907

Art: Wohnung - Etage
Land: Österreich
Zustand: Erstbezug
Kaufpreis: 434.500,00
Wohnfläche: 67,00 m²
Zimmer: 2
Bäder: 1
WC: 1
Balkone: 1
Terrassen: 1
Heizwärmebedarf:  A  42,30 kWh/m²a
fGEE:  A  0,77
Nebenkostenübersicht Kauf Immobilie merken Exposé

Ausstattung

Parkett, Fußbodenheizung, Einbauküche, Personenaufzug, Dusche


Immobilie anfragen


Ihre persönliche Beratung

IMMOcontract Immobilien Vermittlung GmbH

Julian Pelzmann

IMMOcontract Immobilien Vermittlung GmbH

T +43 664 6000 8409

H +43 664 6000 8409