Das Vivara! Wo Raum auf Raffinesse trifft! Provisionsfrei

Wohnung - Etage, 1140 Wien


Die Wohnanlage befindet sich in einer begehrten Lage in Wien - im charmanten Stadtteil Penzing im 14. Wiener Gemeindebezirk, nur wenige Gehminuten vom prachtvollen Schlosspark Schönbrunn entfernt. In rund fünf Minuten erreichen Sie den Haupteingang der weitläufigen Parkanlage, die zu entspannten Spaziergängen, sportlichen Aktivitäten oder kulturellen Erlebnissen einlädt. Die hervorragende Verkehrsanbindung - mit der U4-Station Wien Hietzing sowie dem Bahnhof Penzing in fußläufiger Distanz - sorgt für eine schnelle Verbindung ins Wiener Stadtzentrum. Zahlreiche Straßenbahn- und Buslinien ergänzen das öffentliche Verkehrsnetz optimal. So vereint die Lage auf einzigartige Weise das elegante Flair Penzings mit der unmittelbaren Nähe zu einem der bedeutendsten historischen und grünen Juwelen Wiens. Somit profitieren die Bewohner von der perfekten Symbiose aus Stadtleben und Natur.

Beschreibung der Immobilie

Das Vivara! Wo Raum auf Raffinesse trifft! Provisionsfrei

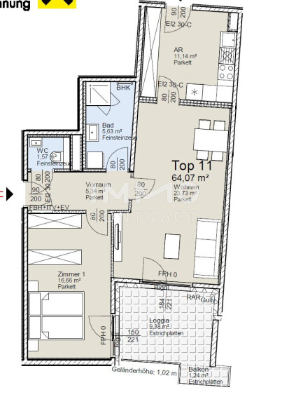
Schon beim Betreten dieser charmanten Wohnung wird klar: Hier wurde mit Herz und Verstand geplant. Der durchdachte Grundriss schafft nicht nur großzügige Wohnbereiche, sondern auch jene kleinen Rückzugsorte, die ein Zuhause erst so richtig gemütlich machen.



Das Schlafzimmer bietet mehr als nur Platz für erholsame Nächte – mit seinem großzügigen Schnitt findet hier nicht nur das Doppelbett seinen Platz, sondern auch Ihre gesamte Garderobe. Ob begehbarer Kleiderschrank, Kommode oder Schminktisch – hier bleibt kein Wunsch offen.



Das Bad ist funktional und modern zugleich: Eine komfortable Dusche lädt zum Frischmachen ein, während das separate WC zusätzlichen Komfort für Alltag und Gäste bietet.



Die Küche liegt separat und ist mit einem Fenster ausgestattet – ideal für alle, die gerne kochen und dabei nicht auf Tageslicht verzichten möchten. Vom morgendlichen Kaffee bis zum Sonntagsbraten: Hier fühlt sich Kochen nicht nach Arbeit an.



Das helle Wohnzimmer ist das Herzstück der Wohnung. Es bietet viel Raum für geselliges Beisammensein und öffnet sich zur gemütlichen Loggia – perfekt für ein Frühstück in der Morgensonne oder einen entspannten Abend im Freien.



Auch das Schlafzimmer hat direkten Zugang zur Loggia – ein besonderes Highlight, das dem Raum eine ganz besondere Atmosphäre verleiht.



Diese Wohnung vereint praktisches Wohnen mit charmanten Details – eine Einladung zum Ankommen und Bleiben.

Infrastruktur / Entfernungen

Gesundheit
Arzt <500m
Apotheke <500m
Klinik <500m
Krankenhaus <1.000m

Kinder & Schulen
Schule <500m
Kindergarten <500m
Universität <1.500m
Höhere Schule <2.500m

Nahversorgung
Supermarkt <500m
Bäckerei <500m
Einkaufszentrum <2.000m

Sonstige
Geldautomat <1.000m
Bank <1.000m
Post <1.000m
Polizei <1.000m

Verkehr
Bus <500m
U-Bahn <500m
Straßenbahn <500m
Bahnhof <500m
Autobahnanschluss <4.500m

Angaben Entfernung Luftlinie / Quelle: OpenStreetMap

Eckdaten Objektnr. 1939/163031

Art: Wohnung - Etage
Land: Österreich
Zustand: Erstbezug
Kaufpreis: 454.139,00
Wohnfläche: 64,00 m²
Zimmer: 3
Bäder: 1
WC: 1
Balkone: 1
Heizwärmebedarf:  A  36,08 kWh/m²a
fGEE:  B  0,77
Nebenkostenübersicht Kauf Immobilie merken Exposé

Ausstattung

Parkett, Fußbodenheizung, Einbauküche, Personenaufzug, Dusche


Immobilie anfragen


Ihre persönliche Beratung

IMMOcontract Immobilien Vermittlung GmbH

Alexandra Kraus

IMMOcontract Immobilien Vermittlung GmbH

T +43 664 6000 8134

H +43 664 6000 8134

F +43 732 890 800 2466