Fernblick Refugium am Hexenberg – Exklusive Architektenvilla in Besthanglage mit Schwimmteich und Gästehaus

Haus - Einfamilienhaus, 2410 Hainburg an der Donau


Die Liegenschaft befindet sich in herausragender Premiumlage am sonnigen Hang des Hexenbergs in Hainburg an der Donau und zählt zu den exklusivsten Wohnadressen der Region. Die erhöhte Position vereint Weitblick, Privatsphäre und Ruhe in besonderer Qualität und bietet ein Wohnumfeld mit hohem Repräsentations- und Rückzugswert. Durch die Hanglage eröffnet sich ein beeindruckendes Panorama über die Donauauen bis in den Raum Wien sowie in Richtung Bratislava. Die Aussichtssituation ist dauerhaft gesichert und prägt das gesamte Wohngefühl — mit markanten Lichtstimmungen, langen Sonnenphasen und außergewöhnlicher Fernsicht. Die unmittelbare Umgebung ist durch hochwertige Einfamilienhäuser und Villen auf großzügigen Grundstücken geprägt. Das Gebiet ist gewachsen, verkehrsberuhigt und nahezu frei von Durchgangsverkehr. Die Liegenschaft selbst ist weitgehend uneinsehbar und bietet ein hohes Maß an Diskretion. Trotz der naturnahen Lage ist die überregionale Anbindung ausgezeichnet. Die Entwicklungsachse Wien–Bratislava ist rasch erreichbar, ebenso Bahnanbindung und Flughafen. Damit verbindet der Standort ruhiges, exklusives Wohnen mit urbaner Reichweite und internationaler Mobilität. Die Nähe zu Naturraum, Aulandschaften und Freizeitmöglichkeiten unterstreicht den Charakter eines privaten Panorama-Refugiums mit ganzjährig hoher Lebensqualität. Zusätzliche Standortdynamik entsteht durch die geplanten Bildungsinvestitionen in Hainburg. Der geplante Bildungscampus mit Fachhochschul-Standort sowie ein öffentliches Gymnasium stärken die Infrastruktur nachhaltig und erhöhen die Attraktivität des Mikrostandortes langfristig. Fazit: Der Standort weist aufgrund mehrerer struktureller Faktoren ein überdurchschnittliches Wertsteigerungspotenzial auf. Neben der seltenen Hang- und Fernblicklage tragen insbesondere die geplanten Bildungsinvestitionen — Fachhochschule, Bildungscampus und öffentliches Gymnasium — zu einer nachhaltigen Nachfrageentwicklung sowie Lageaufwertung bei.

Beschreibung der Immobilie

Fernblick Refugium am Hexenberg – Exklusive Architektenvilla in Besthanglage mit Schwimmteich und Gästehaus

Diese außergewöhnliche Architektenvilla vereint Panorama, Privatsphäre und Designqualität in einer der begehrtesten Hanglagen am Hexenberg in der Carnuntumstraße. Auf einem großzügigen, sonnigen Grundstück gelegen, bietet das Anwesen ein seltenes Gesamtpaket aus exklusiver Wohnarchitektur, hochwertiger Generalsanierung und einzigartiger Gartenlandschaft mit Schwimmteich und separatem Gästehaus.



Eine stimmige Gesamteinheit bilden die exklusive Hanglage, die besondere Lagequalität, die markante Architektur, die durchdachte Grundstücksinszenierung und das gehobene Ausstattungsniveau. Das Anwesen verbindet eindrucksvollen Fernblick, hohe Privatsphäre und ein klar strukturiertes Raumkonzept mit einer in den letzten Jahren umfassend durchgeführten Generalsanierung.



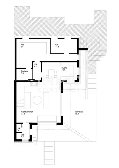
Auf rund 214 m² Wohnfläche entfaltet sich ein architektonisch prägnantes Wohnhaus mit großzügiger Raumwirkung und klarer Linienführung. Der offen gestaltete Wohn-Ess-Bereich mit überwiegend zweigeschossiger Raumhöhe (ca. 5m), Galerieebene und großflächigen Verglasungen bildet das repräsentative Zentrum des Hauses. Fließende Übergänge zu den Terrassenflächen erweitern den Wohnraum nach außen. Lichtführung, Blickachsen und Raumvolumen erzeugen ein außergewöhnlich freies und zugleich hochwertiges Wohngefühl.



Die Grundrissstruktur umfasst mehrere Schlafzimmer - eines davon mit begehbarem Kleiderschrank, Bäder, Galerie- und Arbeitsbereiche sowie zusätzliche Funktionsräume und erlaubt flexible Nutzungskonzepte — vom exklusiven Familiensitz bis zur kombinierten Wohn- und Arbeitssituation. Technisch präsentiert sich die Liegenschaft auf zeitgemäßem Niveau mit modernisierter Haustechnik, Smart-Home-Integration, kombinierter Heizlösung und hochwertiger Beschattungssteuerung.



Ein besonderes Qualitätsmerkmal ist das Außenensemble: Mehrere Terrassenebenen mit insgesamt rund 155 m² Fläche, hochwertige Natursteinbereiche und sorgfältig platzierte Aufenthaltszonen schaffen differenzierte Freiräume über den gesamten Tagesverlauf. Der großzügige Schwimmteich mit Holzdeck und Wasserfallanlage bildet das visuelle und funktionale Zentrum des Gartens. Ergänzt wird die Anlage durch Bachlauf, Feuerstelle, Natursteinwege sowie gewachsenen Baum- und Strauchbestand — eine Gartenkomposition mit hoher gestalterischer und atmosphärischer Qualität. Abgerundet werden die Außenflächen mit Anschlüssen für Whirlpool und Sauna.



Das separate Gästehaus mit eigener Ausstattung eröffnet zusätzliche Möglichkeiten für Besuch, Arbeiten, Atelier oder unabhängiges Wohnen. Ein weiteres Gartenhaus ergänzt die Nutzflächen sinnvoll.



Die erhöhte Position des Grundstücks ermöglicht eindrucksvolle Fernblicke über die Donauauen bis Richtung Wien und Bratislava. Gleichzeitig liegt das Anwesen geschützt, ruhig und weitgehend uneinsehbar. Die Kombination aus Rückzugslage und sehr guter internationaler Erreichbarkeit — Wien, Bratislava und beide Flughäfen in komfortabler Distanz — macht den Standort nachhaltig attraktiv.



Zusätzliche Standortaufwertung erfährt Hainburg durch den geplanten neuen Bildungscampus mit öffentlichem Gymnasium sowie einem FH-Standort mit biotechnologischem Schwerpunkt. Diese Entwicklung stärkt die Zukunftsqualität der Stadt und unterstreicht die langfristige Werthaltigkeit der Lage.



Diese Liegenschaft richtet sich an Käufer, die nicht nur hochwertige Fläche suchen, sondern ein durchkomponiertes Gesamtobjekt aus Architektur, Lage, Aussicht und Lebensqualität.


Der Vermittler ist als Doppelmakler tätig.

Infrastruktur / Entfernungen

Gesundheit
Arzt <1.500m
Apotheke <1.500m
Klinik <8.500m
Krankenhaus <2.500m

Kinder & Schulen
Kindergarten <1.500m
Schule <1.500m
Höhere Schule <10.000m
Universität <5.500m

Nahversorgung
Supermarkt <1.000m
Bäckerei <1.000m
Einkaufszentrum <1.000m

Sonstige
Bank <1.500m
Geldautomat <1.500m
Post <2.000m
Polizei <2.000m

Verkehr
Bus <1.000m
Bahnhof <1.000m
Straßenbahn <9.500m
Flughafen <4.500m
Autobahnanschluss <10.000m

Angaben Entfernung Luftlinie / Quelle: OpenStreetMap

Eckdaten Objektnr. 1939/215065

Art: Haus - Einfamilienhaus
Land: Österreich
Baujahr: 1995
Zustand: Modernisiert
Kaufpreis: 1.290.000,00
Wohnfläche: 214,00 m²
Grundstücksfl.: 1.678,00 m²
Zimmer: 4,50
Bäder: 2
WC: 3
Terrassen: 4
Garten: 1.441,00 m²
Keller: 53,00 m²
Heizwärmebedarf:  D  109,40 kWh/m²a
fGEE:  E  2,59
Nebenkostenübersicht Kauf Immobilie merken Exposé

Ausstattung

Fliesen, Parkett, Elektro, Gas, Fußbodenheizung, Kamin, Einbauküche, Wohnküche / offene Küche, Westbalkon, Dusche, Bad mit Fenster, DV-Verkabelung, Garage, Alarmanlage, Sauna, Sicherheitskamera, Swimmingpool, Wasch/Trockenraum


Immobilie anfragen


Ihre persönliche Beratung

IMMOcontract Immobilien Vermittlung GmbH

Julian Pelzmann

IMMOcontract Immobilien Vermittlung GmbH

T +43 664 6000 8409

H +43 664 6000 8409