Doppelhaushälften Haunoldstein!

Haus - Doppelhaushälfte, 3384 Haunoldstein


Die angebotene Doppelhaushälfte befindet sich in der idyllischen Gemeinde Haunoldstein im Herzen von Niederösterreich. Eingebettet in eine malerische Landschaft, bietet dieser Ort eine perfekte Symbiose aus Naturnähe und hervorragender Anbindung an die umliegenden Städte. Haunoldstein erfreut sich einer ruhigen und familienfreundlichen Atmosphäre mit einer gut ausgebauten Infrastruktur, die alle Annehmlichkeiten des täglichen Lebens abdeckt.

Beschreibung der Immobilie

Doppelhaushälften Haunoldstein!

Miete mit Kaufoption, Erstbezug, Fertigstellung Oktober 2025!



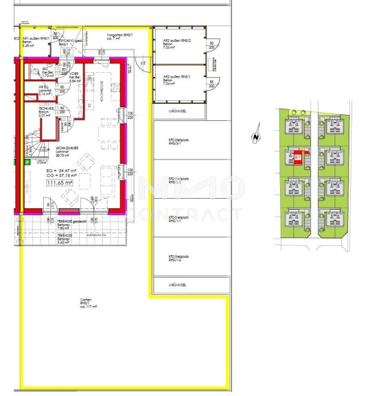
Hier wurden 16 Doppelhaushälften mit großzügigen Freiflächen errichtet.

Die Erschließung der Reihenhäuser erfolgt über überdachte Eingangsbereiche, welche mit einem Außenabstellraum kombiniert sind.

Die Komponenten der Haustechnik sind unter der Treppe situiert.

Ebenso ist auch das helle Wohnzimmer mit der Kochnische vom Vorraum aus direkt begehbar.

Im Obergeschoß befinden sich drei Schlafzimmer und ein Bad mit Badewanne.



Ausstattung:

Fußbodenheizung

Luft-Wasser Wärmepumpe

Photovoltaikanlage

kontrollierte Wohnraumlüftung

usw.



Weiters werden jeder Wohneinheit zwei freie KFZ-Stellplätze zugeordnet.

Für jede Wohneinheit ist außerdem ein zusätzlicher Außenabstellraum neben den KFZ-Stellplätzen vorgesehen, der auch für Gartengeräte, Mülltonnen und Fahrräder genutzt werden kann.





Besichtigungen ab August 2025, Fertigstellung ab Oktober 2025!

Der Immobilienmakler erklärt, dass er – entgegen dem in der Immobilienwirtschaft üblichen Geschäftsgebrauch des Doppelmaklers – einseitig nur für den Vermieter tätig ist.

Infrastruktur / Entfernungen

Gesundheit
Arzt <3.000m
Apotheke <4.500m
Krankenhaus <9.500m

Kinder & Schulen
Kindergarten <500m
Schule <1.000m

Nahversorgung
Supermarkt <3.500m
Bäckerei <4.500m
Einkaufszentrum <4.500m

Sonstige
Bank <1.000m
Geldautomat <1.000m
Polizei <4.000m
Post <4.500m

Verkehr
Bus <500m
Autobahnanschluss <3.500m
Bahnhof <1.500m

Angaben Entfernung Luftlinie / Quelle: OpenStreetMap

Eckdaten Objektnr. 1939/163003

Art: Haus - Doppelhaushälfte
Land: Österreich
Zustand: Erstbezug
Gesamtmiete: 1.230,61
Kaltmiete (netto): 1.118,74 €
Kaltmiete: 1.118,74 €
MwSt Gesamt: 111,87 €
Wohnfläche: 111,65 m²
Zimmer: 4
Bäder: 1
WC: 1
Terrassen: 1
Garten: 124,00 m²
Heizwärmebedarf:  B  27,00 kWh/m²a
fGEE:  A++  0,53
Nebenkostenübersicht Miete Immobilie merken Exposé

Ausstattung

Fußbodenheizung


Immobilie anfragen


Ihre persönliche Beratung

IMMOcontract Immobilien Vermittlung GmbH

Christian Pichler

IMMOcontract Immobilien Vermittlung GmbH

T + 43 664 819 18 27

H + 43 664 819 18 27