FAMILIENTRAUM mit Terrasse ! TOP AUSSTATTUNG ! ERSTBEZUG !

Wohnung - Terrassenwohnung, 1090 Wien


Die Infrastruktur ist perfekt ( U-Bahn U6 vor der Haustüre, Straßenbahnlinien 37,38 sowie Buslinien 35 A und 37 A ) und die Nahversorgung bietet alles, was Sie benötigen. Im Haus befindet sich auch eine Apotheke und Billa, Hofer, Pagro sind in unmittelbarer Nähe. Dies ist Ihr idealer Rückzugsort im lebendigen Stadt Leben Wiens!

Beschreibung der Immobilie

FAMILIENTRAUM mit Terrasse ! TOP AUSSTATTUNG ! ERSTBEZUG !

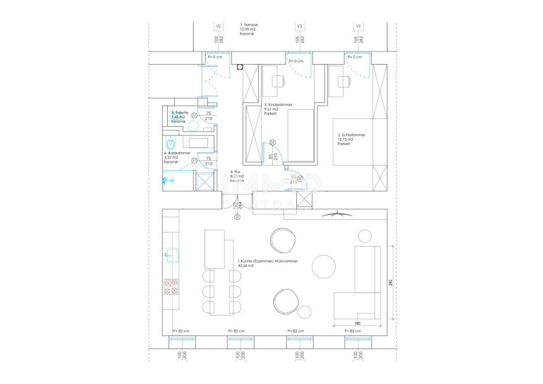
In einem gepflegten Altbau Ecke Nussdorfer Straße und Währinger Gürtel wurde diese 3 Zimmer Wohnung mit Terrasse komplett umgebaut und hochwertig ausgestattet.

Sie können einziehen und glücklich sein- es wurde an alles gedacht.



Im 1. Liftstock erwartet Sie dieser besondere Familientraum mit 3 Zimmern und einer ca. 15 m² hofseitigen Terrasse, die zu Ihrer Entspannung dient.



Ihr Wohnkomfort beinhaltet ein geräumiges Entree mit

Einbaukästen , alle Zimmer zentral begehbar und hochwertige Top Ausstattung !



Hofseitig befinden sich 2 ruhige Schlafzimmer, die komplett mit Tischler Einbauten ausgestattet sind. Von beiden Zimmern aus können Sie auf Ihre Terrasse gehen.

Ein Luxusduschbad mit WC sowie ein extra Gäste WC werden Sie ebenso erfreuen.



Das Highlight ist das große Wohnzimmer mit Einbauten und die Luxusküche mit Frühstücksbar. Sie hören hier keine Verkehrsgeräusche, da eigene Schallschutzfenster eingebaut sind.

Mit einer Raumhöhe von ca. 3,20 m blieb der Altbaucharme erhalten., der noch durch den wunderschönen dunklen Eichen Parkettboden unterstrichen wird.



Die Fußbodenheizung vermittelt Ihnen ein wohliges Gefühl im Winter und Sommer und zusätzlich finden Sie noch eine Klimaanlage.

Die Technik mit Luft/Wärmepumpe spiegelt den aktuellen hochwertigen Zustand dieser Wohnung wieder.



Warten Sie nicht lange und vereinbaren Sie rasch einen Besichtigungstermin mit mir. Tel: 0676 841 420 587 !


Der Vermittler ist als Doppelmakler tätig.

Infrastruktur / Entfernungen

Gesundheit
Arzt <500m
Apotheke <500m
Klinik <500m
Krankenhaus <1.500m

Kinder & Schulen
Schule <500m
Kindergarten <500m
Universität <500m
Höhere Schule <1.000m

Nahversorgung
Supermarkt <500m
Bäckerei <500m
Einkaufszentrum <2.000m

Sonstige
Geldautomat <500m
Bank <500m
Post <500m
Polizei <500m

Verkehr
Bus <500m
U-Bahn <500m
Straßenbahn <500m
Bahnhof <500m
Autobahnanschluss <1.500m

Angaben Entfernung Luftlinie / Quelle: OpenStreetMap

Eckdaten Objektnr. 1939/133012

Art: Wohnung - Terrassenwohnung
Land: Österreich
Baujahr: 1907
Zustand: Erstbezug
Möbliert: Voll
Kaufpreis: 599.000,00
Betriebskosten: 185,00 €
Heizkosten: 34,00 €
MwSt Gesamt: 25,30 €
Wohnfläche: 80,00 m²
Zimmer: 3
Bäder: 1
WC: 1
Terrassen: 1
Heizwärmebedarf:  D  126,00 kWh/m²a
fGEE: 3,34
Nebenkostenübersicht Kauf Immobilie merken Exposé

Ausstattung

Parkett, Fußbodenheizung, Einbauküche, Personenaufzug, Ostbalkon, Dusche


Immobilie anfragen


Ihre persönliche Beratung

IMMOcontract Immobilien Vermittlung GmbH

Mag.DDr. Silvia Reischitz-Martys

IMMOcontract Immobilien Vermittlung GmbH

T + 43 50/450-587

H +43 676/841 420-587