*Provisionsfrei* Neubauwohnungen beim Freizeitparadies "alte Donau" 2-3 Zimmer; Freiflächen; Garagenstellplätze

Wohnung - Etage, 1220 Wien


Lage: Das Projekt befindet sich nur 3 Gehminuten von der alten Donau entfernt. Hier finden Sie ein umfangreiches Angebot an Freizeitaktivitäten sowie eine Vielzahl an kulinarischen Angeboten direkt am Wasser. Öffentliche Verkehrsanbindung: Linie U1 Station Donauzentrum, fußläufig in 10 Minuten erreichbar Straßenbahnlinie 25 Buslinie 93 A

Beschreibung der Immobilie

*Provisionsfrei* Neubauwohnungen beim Freizeitparadies "alte Donau" 2-3 Zimmer; Freiflächen; Garagenstellplätze

Wohnen beim Freizeitparadies „Alte Donau“

Nur 170 Meter von der alten Donau entfernt, entsteht ein neues Wohnbauprojekt auf Baurechtsgrund.

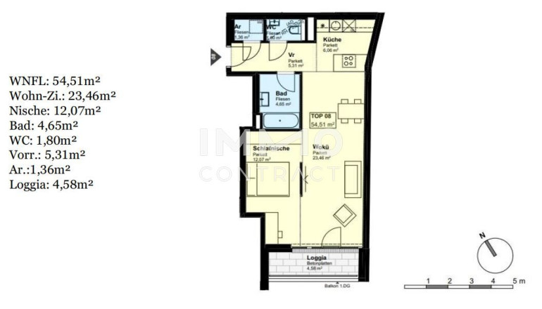
Mit einer Vielzahl an verschiedenen Grundrissen und Wohnungsgrößen ist für jeden Bedarf das passende Angebot dabei.

Die Fertigstellung erfolgt im Frühjahr 2025.

Das Projekt umfasst insgesamt 19 Wohneinheiten mit 2 bis 3 Zimmer, aufgeteilt auf 4 Ebenen, wovon jede einzelne über ausreichend Freiflächen verfügt. (Garten, Terrasse, Balkon oder Loggia)

Die Wohnungsgrößen belaufen sich auf 36m² bis 81m².

Ausstattung:

3- fach verglaste Kunststoff- Alufenster

Elektr. bedienbare Raffstores

Parkettböden in den Wohnräumen

Keramischer Fliesenboden (30x60cm) in Badezimmer und WC

Handtuchwärmer

Luftwärmepumpe inkl. Kühlfunktion durch Photovoltaik unterstützt

Fußbodenheizung



Ein Tiefgaragenplatz im Haus kann zusätzlich erworben werden. Kostenpunkt: 25.000.-

E- Lademöglichkeit vorbereitet

Jeder Wohnung ist ein Kellerabteil zugeordnet



Der Baurechtsvertrag mit dem Stift Klosterneuburg ist auf 99 Jahre abgeschlossen und läuft bis zum Jahr 2120.

Der monatliche Baurechtszins beläuft sich auf ca. 1,40.-/m² Nutzfläche.

Infrastruktur / Entfernungen

Gesundheit
Arzt <500m
Apotheke <500m
Klinik <2.500m
Krankenhaus <3.500m

Kinder & Schulen
Schule <500m
Kindergarten <1.000m
Universität <2.000m
Höhere Schule <1.500m

Nahversorgung
Supermarkt <500m
Bäckerei <500m
Einkaufszentrum <500m

Sonstige
Geldautomat <500m
Bank <500m
Post <500m
Polizei <1.000m

Verkehr
Bus <500m
U-Bahn <500m
Straßenbahn <500m
Bahnhof <500m
Autobahnanschluss <2.000m

Angaben Entfernung Luftlinie / Quelle: OpenStreetMap

Eckdaten Objektnr. 1939/163764

Art: Wohnung - Etage
Land: Österreich
Baujahr: 2024
Zustand: Erstbezug
Kaufpreis: 330.900,00
Wohnfläche: 54,51 m²
Zimmer: 2
Heizwärmebedarf:  B  27,30 kWh/m²a
fGEE:  A+  0,68
Nebenkostenübersicht Kauf Immobilie merken Exposé

Ausstattung

Fußbodenheizung, Personenaufzug


Immobilie anfragen


Ihre persönliche Beratung

IMMOcontract Immobilien Vermittlung GmbH

Martin Steininger

IMMOcontract Immobilien Vermittlung GmbH

T + 43 50/450-562

H +43 676 841 420 562