217 m2 Süd-Eigengarten! Provisionsfreie 4-Zimmer-Wohnung - hell, modern, Top-Ausstattung, Erstbezug

Wohnung , 2700 Wiener Neustadt


Das Projekt befindet sich auf dem Areal des ehemaligen Stadions in Wiener Neustadt. Die Umgebung ist hervorragend erschlossen und bietet eine Vielzahl an Einkaufsmöglichkeiten, Gastronomie und Dienstleistungsbetrieben.

Beschreibung der Immobilie

217 m2 Süd-Eigengarten! Provisionsfreie 4-Zimmer-Wohnung - hell, modern, Top-Ausstattung, Erstbezug

Willkommen in Ihrem neuen Zuhause – am Rande von „ein viertel grün“!



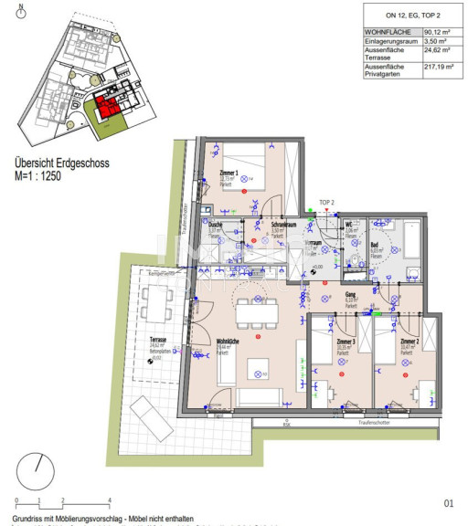
Top 12/2
In einem kleineren und familiären Wohnhaus mit nur 8 Wohneinheiten befindet sich diese traumhafte 4-Zimmer-Wohnung in Südlage barrierefrei im Erdgeschoß. Das Highlight, der ca. 217 m2 große Eigengarten, lädt zu entspannten Stunden ein. Diese Wohnung besteht aus einem großen Wohn-/Esszimmer mit Küchenbereich, 3 Schlafzimmern, 2 Bädern mit Wanne und Dusche, Gäste-WC, Schrankraum und Vorzimmer.

2 Stellplätze sind für Sie bereits in der hauseigenen Tiefgarage reserviert und können um € 17.000/Stellplatz erworben werden.



Im neuen Stadtentwicklungsgebiet „ein viertel grün“ in Wiener Neustadt entsteht ein lebendiges, architektonisch vielseitiges Wohnquartier. Unser Projekt umfasst 33 freifinanzierte Eigentumswohnungen sowie 42 Tiefgaragenplätze und ist Teil dieses attraktiven, naturnahen Lebensraums.

Die moderne Wohnanlage richtet sich sowohl an Familien als auch an Paare, die Wert auf Lebensqualität, gute Infrastruktur und viel Grün legen.

Sämtliche Einheiten sind barrierefrei adaptierbar geplant und ermöglichen ein komfortables Wohnen für jede Lebensphase. Während die Erdgeschosswohnungen mit einer großzügigen Terrasse und einem eigenen Garten ausgestattet sind, verfügen die Wohnungen in den Obergeschossen jeweils über einen Balkon, der zusätzlichen Freiraum bietet.

Die gesamte Anlage ist von gemeinschaftlich nutzbaren Grünflächen umgeben, die eine ruhige, parkähnliche Atmosphäre schaffen. Besonders die Eigengärten der Erdgeschosswohnungen sind großzügig gestaltet – perfekt für Kinder zum Spielen, entspannte Grillabende oder einfach zum Zurücklehnen im Grünen.

Die Wohnhausanlage liegt in einer verkehrsberuhigten Zone, die Zufahrt zur Tiefgarage erfolgt bequem über die Stadionstraße.

Im Kellergeschoss stehen den Bewohner:innen praktische Einlagerungsräume, Fahrradabstellplätze sowie eine vorbereitete Waschküche zur Verfügung. Das Wohnumfeld bietet zudem moderne Services wie Car-Sharing-Angebote, einen zentralen Quartierstreffpunkt sowie einen eigenen Kindergarten – ideal für den Familienalltag.



Das Projekt im Überblick:

• Eigentumswohnungen in Niedrigenergiebauweise – Provisionsfrei!

• Wohnungsgrößen zwischen 55 m² - 90 m²

• 2 - 4 Zimmer

• Freiflächen: Eigengärten, Terrassen oder Balkone

• Fußbodenheizung

• Elektr. Beschattung

• Klimaanlagenvorbereitung im DG

• Photovoltaikanlage

• Hauseigene Tiefgarage

• Fahrrad- und Kinderwagenabstellräume

• sofort bezugsfertig



Vereinbaren Sie noch heute einen Besichtigungstermin!



Frau Simone VASICEK 0676 / 841 420 605

Infrastruktur / Entfernungen

Gesundheit
Arzt <1.000m
Apotheke <500m
Klinik <2.500m
Krankenhaus <1.000m

Kinder & Schulen
Schule <500m
Kindergarten <1.000m
Höhere Schule <1.500m
Universität <2.000m

Nahversorgung
Supermarkt <500m
Bäckerei <500m
Einkaufszentrum <500m

Sonstige
Bank <500m
Geldautomat <500m
Post <1.000m
Polizei <1.000m

Verkehr
Bus <500m
Autobahnanschluss <3.000m
Bahnhof <1.500m
Flughafen <2.500m

Angaben Entfernung Luftlinie / Quelle: OpenStreetMap

Eckdaten Objektnr. 1939/163320

Art: Wohnung
Land: Österreich
Baujahr: 2025
Zustand: Erstbezug
Alter: Neubau
Kaufpreis: 543.000,00
Betriebskosten: 244,72 €
MwSt Gesamt: 24,47 €
Wohnfläche: 90,12 m²
Zimmer: 4
Bäder: 2
WC: 1
Terrassen: 1
Garten: 217,19 m²
Keller: 3,50 m²
Heizwärmebedarf:  B  27,40 kWh/m²a
fGEE:  A+  0,66
Nebenkostenübersicht Kauf Immobilie merken Exposé

Ausstattung

Fliesen, Parkett, Fußbodenheizung, Personenaufzug, Badewanne, Dusche, Wasch/Trockenraum


Immobilie anfragen


Ihre persönliche Beratung

IMMOcontract Immobilien Vermittlung GmbH

Simone Vasicek

IMMOcontract Immobilien Vermittlung GmbH

T +43 676 841 420-605

H +43 676 841 420 605