Schlüsselfertig zum belagsfertigen Preis! Großzügiges Familiendomizil direkt am Nationalpark

Haus - Reihenhaus, 2301 Mühlleiten


Das Projekt befindet sich in Mühlleiten, einem charmanten Ortsteil von Groß-Enzersdorf, der durch seine idyllische und ruhige Lage besticht.

Beschreibung der Immobilie

Schlüsselfertig zum belagsfertigen Preis! Großzügiges Familiendomizil direkt am Nationalpark

Nur kurze Zeit:

Kaufen Sie jetzt zum Kaufpreis "belagsfertig" und erhalten Sie die schlüsselfertige Endausstattung!



Willkommen im Wohnpark Mühlleiten – Ihrem neuen Zuhause zwischen Natur und Stadt



Träumen Sie von einem Zuhause, das Naturverbundenheit und Stadtnähe perfekt kombiniert? Im Wohnpark Mühlleiten finden Sie nicht nur moderne Architektur, sondern auch eine nachhaltige Bauweise, die auf die Bedürfnisse Ihrer Familie abgestimmt ist.



Insgesamt entstehen hier 14 Doppel- und Reihenhäuser in hochwertiger VARIO-Fertigteilhaus-Bauweise.

Die durchdachten Einheiten vereinen modernes Design mit ökologischen Bauweise und bieten eine stabile Grundlage für eine nachhaltige Zukunft. Dank der energieeffizienten Bauweise sparen Sie nicht nur langfristig Energiekosten, sondern genießen auch an kalten Tagen ein gemütliches Wohnklima.

Auf Wunsch werden die Hauser auch in Massivbauweise erreichtet - gerne geben wir bei näherem Interesse die entsprechenden Kosten bekannt.



Die durchdachte Ausrichtung aller Häuser sorgt dafür, dass Ihre Wohnräume stets von natürlichem Licht erfüllt sind - rein nordseitige Räume gibt es nicht – stattdessen erwarten Sie freundliche und helle Wohnbereiche.



Mit Wohnflächen von 88 m² bis 129 m² haben Sie die Wahl zwischen kompakten und großzügigen Grundrissen. 3, 4 oder 5 Zimmer – hier findet jede Familie ihr ideales Zuhause.



• Erdgeschoss: Die einladende Wohnküche bildet den Mittelpunkt Ihres Zuhauses. Von hier aus gelangen Sie direkt auf die Terrasse und in den privaten Garten, der reichlich Platz zum Spielen, Entspannen oder Gärtnern bietet. Ein Abstellraum, ein Gäste-WC und – je nach Größe – ein zusätzlicher Arbeits- oder Schlafraum runden das Erdgeschoss ab.

• Obergeschoss: Hier befinden sich die Schlafzimmer sowie ein modernes Badezimmer mit WC – perfekt für Privatsphäre und Ruhe.



Die Häuser werden nun schlüsselfertig übergeben.



Jedes Haus verfügt zusätzlich über zwei eigene PKW-Stellplätze.



Im Wohnpark Mühlleiten verbinden sich naturnahes Wohnen, moderne Architektur und nachhaltige Bauweise zu einem einzigartigen Wohngefühl – nur einen Steinwurf von Wien entfernt. Erfüllen Sie sich jetzt Ihren Traum vom perfekten Zuhause!



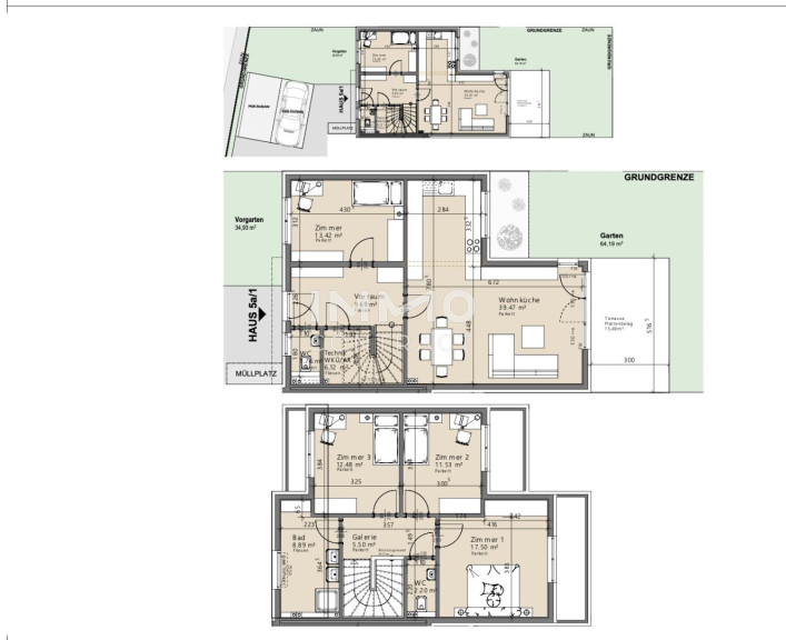
Reihenhaus 5a/1
hat eine Wohnfläche von ca. 128,56 m2 aufgeteilt auf zwei Etagen:

Erdgeschoss: Vorraum, große Wohnküche mit Ausgang auf die Terrasse, Gästezimmer, Abstellraum mit Haustechnik, sowie Gäste-WC.

Obergeschoß: großes Schlafzimmer, zwei Kinderzimmer, großes Badezimmer und separates WC.

Der Garten ist süd-/ostseitig ausgerichtet.

Infrastruktur / Entfernungen

Gesundheit
Arzt <3.500m
Apotheke <4.000m
Klinik <8.000m
Krankenhaus <5.500m

Kinder & Schulen
Schule <2.000m
Kindergarten <2.000m
Universität <3.500m
Höhere Schule <7.500m

Nahversorgung
Supermarkt <2.500m
Bäckerei <4.000m
Einkaufszentrum <4.500m

Sonstige
Bank <4.000m
Geldautomat <4.000m
Post <4.000m
Polizei <4.500m

Verkehr
Bus <500m
Straßenbahn <7.500m
U-Bahn <8.000m
Bahnhof <6.000m
Autobahnanschluss <5.000m
Flughafen <7.500m

Angaben Entfernung Luftlinie / Quelle: OpenStreetMap

Eckdaten Objektnr. 1939/163568

Art: Haus - Reihenhaus
Land: Österreich
Baujahr: 2025
Zustand: Erstbezug
Alter: Neubau
Kaufpreis: 548.349,00
Wohnfläche: 128,56 m²
Zimmer: 5
Bäder: 1
WC: 2
Terrassen: 1
Garten: 99,12 m²
Heizwärmebedarf:  B  38,00 kWh/m²a
fGEE:  A+  0,67
Nebenkostenübersicht Kauf Immobilie merken Exposé

Ausstattung

Fußbodenheizung


Immobilie anfragen


Ihre persönliche Beratung

IMMOcontract Immobilien Vermittlung GmbH

Simone Vasicek

IMMOcontract Immobilien Vermittlung GmbH

T +43 676 841 420-605

H +43 676 841 420 605