Reihenhaus in Miete mit Kaufoption!

Haus - Reihenhaus, 3141 Kapelln


Kapelln, idyllisch gelegen im Herzen Niederösterreichs, bietet die perfekte Kombination aus ländlichem Charme und urbaner Anbindung. Diese Wohnhausanlage befindet sich in einer ruhigen und freundlichen Gemeinde, die durch ihre naturnahe Umgebung und die Nähe zu wichtigen Infrastrukturen besticht. Kapelln liegt in der malerischen Region des Mostviertels, bekannt für ihre sanften Hügel und weitläufigen Wiesenlandschaften. Die Stadt St. Pölten, die niederösterreichische Landeshauptstadt, ist in kurzer Fahrtzeit erreichbar und bietet eine Fülle an kulturellen und sozialen Möglichkeiten. Der Bahnhof in der Nähe ermöglicht eine bequeme Anbindung an das öffentliche Verkehrsnetz, während die Autobahnen A1 und S33 schnelle Verbindungen zu den wichtigsten Städten und Regionen garantieren. Die Wohngegend selbst ist von einer harmonischen Nachbarschaft geprägt und bietet eine hohe Lebensqualität. In der Umgebung finden sich alle notwendigen Einrichtungen des täglichen Lebens: Supermärkte, gemütliche Gaststätten sowie Schulen und Kindergärten machen den Alltag angenehm und unkompliziert. Zahlreiche Wander- und Radwege laden zur Erholung und zum Entdecken der malerischen Landschaft ein, die Kapelln so einzigartig macht. Zusammengefasst besticht diese Lage durch eine harmonische Balance zwischen Ruhe und Lebendigkeit, ideal für Familien, Berufstätige und Ruhesuchende gleichermaßen.

Beschreibung der Immobilie

Reihenhaus in Miete mit Kaufoption!

Im Mittelpunkt von Niederösterreich!



Kapelln - Quellengasse



Hier wurden 6 Reihenhäuser und 26 Wohnungen mit großzügigen Freiflächen errichtet,

welche in Wohnungseigentum bzw. in Miete mit Kaufoption provisionsfrei vergeben werden.

Ausstattung:

Fußbodenheizung

Wohnungen mittels Pelletsheizung, Reihenhäuser Luft-Wasser Wärmepumpe

Reihenhäuser mit Photovoltaikanlage

Solaranlage je Wohnhaus

kontrollierte Wohnraumlüftung pro Wohneinheit

usw.

Jeder Wohneinheit stehen ein bis zwei KFZ-Stellplätze zu Verfügung.



Besichtigungen nach telefonischer Vereinbarung jederzeit möglich!

Der Immobilienmakler erklärt, dass er – entgegen dem in der Immobilienwirtschaft üblichen Geschäftsgebrauch des Doppelmaklers – einseitig nur für den Vermieter tätig ist.

Infrastruktur / Entfernungen

Gesundheit
Arzt <1.500m
Apotheke <5.500m
Klinik <7.000m

Kinder & Schulen
Schule <500m
Kindergarten <6.500m

Nahversorgung
Supermarkt <500m
Bäckerei <5.500m
Einkaufszentrum <5.500m

Sonstige
Bank <500m
Geldautomat <500m
Post <500m
Polizei <5.500m

Verkehr
Bus <500m
Autobahnanschluss <4.500m
Bahnhof <5.000m

Angaben Entfernung Luftlinie / Quelle: OpenStreetMap

Eckdaten Objektnr. 1939/163070

Art: Haus - Reihenhaus
Land: Österreich
Baujahr: 2023
Zustand: Erstbezug
Gesamtmiete: 1.360,36
Kaltmiete (netto): 1.236,69 €
Kaltmiete: 1.236,69 €
MwSt Gesamt: 123,67 €
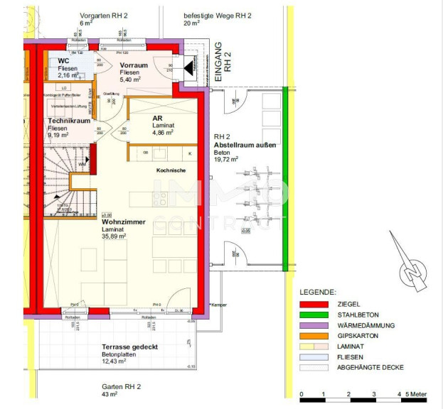
Wohnfläche: 111,39 m²
Zimmer: 4
Bäder: 1
WC: 2
Terrassen: 1
Garten: 43,00 m²
Heizwärmebedarf:  A  22,60 kWh/m²a
fGEE:  A++  0,51
Nebenkostenübersicht Miete Immobilie merken Exposé

Ausstattung

Fußbodenheizung


Immobilie anfragen


Ihre persönliche Beratung

IMMOcontract Immobilien Vermittlung GmbH

Christian Pichler

IMMOcontract Immobilien Vermittlung GmbH

T + 43 664 819 18 27

H + 43 664 819 18 27