Büro in der Pfarrgasse

Büro / Praxis - Bürofläche, 4600 Wels


Zwischen Stadtplatz Wels und Ringstraße - sehr zentrale Lage Anmietung eines Tiefgaragenplatzes möglich!

Beschreibung der Immobilie

Büro in der Pfarrgasse

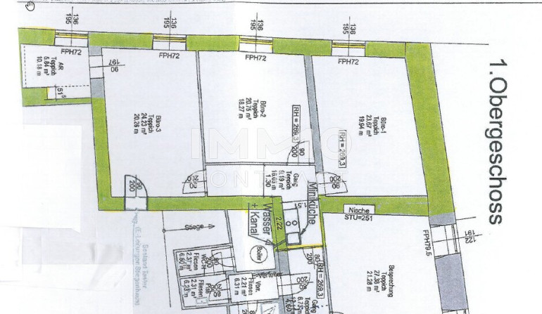
Dieses Büro befindet sich in zentraler Lage in Wels in der Pfarrgasse 15. Das Objekt liegt im 1. Obergeschoss und ist auch mittels Lift erreichbar.



Raumaufteilung: 3 Büros mit Abstellraum und Platz für kleine Teeküche. Die WC-Anlagen werden mit einem angrenzendem Büro gemeinsam genutzt.



Der Mietvertrag wird auf 5 Jahre befristet abgeschlossen.



** Servicepauschale Hausverwaltung € 285,00 (Übergabe Haustechnik, Ummeldungen Strom- und Heizungsverträge, KSV-Abfragen.


Der Vermittler ist als Doppelmakler tätig.

Infrastruktur / Entfernungen

Gesundheit
Arzt <500m
Apotheke <500m
Klinik <1.000m
Krankenhaus <2.000m

Kinder & Schulen
Schule <500m
Kindergarten <500m
Universität <500m

Nahversorgung
Supermarkt <500m
Bäckerei <500m
Einkaufszentrum <3.000m

Sonstige
Bank <500m
Geldautomat <500m
Post <500m
Polizei <500m

Verkehr
Bus <500m
Autobahnanschluss <3.000m
Bahnhof <1.000m
Flughafen <3.000m

Angaben Entfernung Luftlinie / Quelle: OpenStreetMap

Eckdaten Objektnr. 1939/11742

Art: Büro / Praxis - Bürofläche
Land: Österreich
Baujahr: 1886
Kaltmiete (netto): 534,24 €
Kaltmiete: 844,23 €
Miete / m²: 6,96 €
Betriebskosten: 309,99 €
MwSt Gesamt: 168,85 €
Gesamtfläche: 89,04 m²
Bürofläche: 89,04 m²
Zimmer: 3
WC: 1
Heizwärmebedarf:  C  72,50 kWh/m²a
fGEE:  D  1,78
Nebenkostenübersicht Miete Immobilie merken Exposé

Ausstattung

Zentralheizung, Personenaufzug


Immobilie anfragen


Ihre persönliche Beratung

IMMOcontract Immobilien Vermittlung GmbH

Anna Valentina Blecha

IMMOcontract Immobilien Vermittlung GmbH

H +43 676 841420465