LIEBESVOLLES HAUS MIT DOPPELGARAGE UND SCHÖNEN GARTEN IN ANSFELDEN FÜR INVESTOREN OHNE WOHNBEDÜRFNIS

Zinshaus Renditeobjekt , 4052 Ansfelden


Die Immobilie befindet sich in einer ruhigen Siedlungslage in Ansfelden.

Beschreibung der Immobilie

LIEBESVOLLES HAUS MIT DOPPELGARAGE UND SCHÖNEN GARTEN IN ANSFELDEN FÜR INVESTOREN OHNE WOHNBEDÜRFNIS

LIEBESVOLLES HAUS MIT DOPPELGARAGE UND SCHÖNEN GARTEN IN ANSFELDEN FÜR INVESTOREN OHNE WOHNBEDÜRFNIS



Dem Verkäufer wird ein lebenslanges Wohnrecht eingeräumt. Er wird weiterhin in seinem eigenen Zuhause wohnen ohne für diesen Zeitraum Miete bezahlen zu müssen.



Sie als Investor bezahlen einen Kaufpreis, der sich aus dem Wert der Immobilie abzüglich Wohnrecht berechnet.





Wert der Immobilie € 549.000,-

abzüglich lebenslanges Wohnrecht

(=Miete € 1.717,- pro Monat) ergibt € 150.000,-

Kaufpreis € 399.000,-





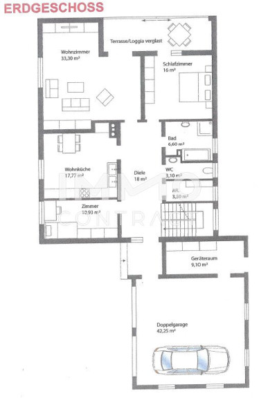
Dieses sonnige Haus befindet sich in einer angenehmen und zentralen Wohngegend in Ansfelden. Das zweistöckige Gebäude bietet eine beeindruckende Wohnfläche von ca. 217m² und verfügt im Erdgeschoss über eine verglaste Loggia mit anschließender Terrasse.

Die Immobilie verfügt über eine voll ausgestattete, möblierte Küche sowie Böden aus hochwertigen Fliesen und Parkett. Darüber hinaus ist das Haus vollständig unterkellert, was zusätzlichen Stauraum und Flexibilität bietet.



Auch ein sehr schöner angelegter Garten gehört zum Haus.



- Haus in klarer Bauweise

- sehr guter und zentraler Lage

- Baujahr 1978

- Modernisierung Erdgeschoss 2002

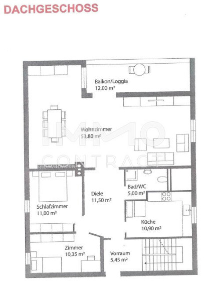
- Dachbodenausbau 2005



- gute Raumaufteilung

- lichtdurchflutete Räume

- südliche Ausrichtung

- großer Wohnbereich mit Zugang zur Loggia / Terrasse

- voll unterkellert

- 1 Doppelgarage

- 2 Autostellplätze



Erdgeschoss

- Diele

- 1. Zimmer

- Küche

- Wohnzimmer (mit Loggia / Terrassen Zugang)

- 2. Schlafzimmer mit (Loggia / Terrassen Zugang)

- Bad

- WC

- Abstellraum



Dachgeschoss

- Vorraum

- 1. Zimmer

- 2. Zimmer

- Wohnzimmer (Zugang zur Loggia)

- Bad/WC

- Küche



Ich freue mich über Ihre Anfrage!

Eine Besichtigung wird Sie überzeugen.



Sie haben bereits Ihre WunschIMMObilie gefunden, aber noch nicht die optimale Finanzierungslösung?

Gerne vereinbart IMMOcontract für Sie ein unverbindliches Beratungsgespräch mit den Finanzierungsspezialisten bei unseren Kooperationspartnern - Volksbank Wien, Volksbank NÖ, Volksbank OÖ, Ärzte- und Apothekerbank sowie SPARDA-Bank ! Dank unserer exklusiven Kooperation erhalten Sie in deren Filialen optimale Konditionen und erstklassige Beratung rund um Ihre künftige Finanzierung.

Infrastruktur / Entfernungen

Gesundheit
Arzt <1.500m
Apotheke <2.000m
Klinik <3.500m
Krankenhaus <9.000m

Kinder & Schulen
Kindergarten <1.000m
Schule <1.500m
Universität <7.500m

Nahversorgung
Supermarkt <1.000m
Bäckerei <1.000m
Einkaufszentrum <2.500m

Sonstige
Bank <1.500m
Geldautomat <1.500m
Post <1.500m
Polizei <2.000m

Verkehr
Bus <500m
Straßenbahn <3.000m
Bahnhof <1.000m
Autobahnanschluss <1.000m
Flughafen <7.000m

Angaben Entfernung Luftlinie / Quelle: OpenStreetMap

Eckdaten Objektnr. 1939/127002

Art: Zinshaus Renditeobjekt
Land: Österreich
Baujahr: 1978
Kaufpreis: 445.000,00
Wohnfläche: 217,00 m²
Grundstücksfl.: 878,00 m²
Zimmer: 8
Bäder: 2
WC: 1
Terrassen: 1
Keller: 106,00 m²
Heizwärmebedarf:  D  139,50 kWh/m²a
fGEE:  D  2,06
Nebenkostenübersicht Kauf Immobilie merken Exposé

Ausstattung

Parkett, Fliesen, Gas, Einbauküche, Dusche, Bad mit Fenster, Badewanne


Immobilie anfragen


Ihre persönliche Beratung

IMMOcontract Immobilien Vermittlung GmbH

Klaus Egger

IMMOcontract Immobilien Vermittlung GmbH

T +43 50450

H +43 676 841 420 424