Einzigartiger Wohnstil - 3-Zimmer Wohnung - leistbar & provisionsfrei!

Wohnung - Etage, 4030 Linz


Das Projekt G r ü n G e b o r g e n befindet sich am ruhigen Rand des Linzer Stadtteils Neue Heimat, eingebettet in eine angenehme Wohngegend. In einer Sackgasse ohne Durchzugsverkehr gelegen, bietet die Adresse ein hohes Maß an Privatsphäre und Lebensqualität. Direkt angrenzend erstreckt sich eine Einfamilienhaussiedlung, in unmittelbarer Nachbarschaft befinden sich gepflegte Schrebergärten – ein Bild von Ruhe und naturnahem Wohnen. Im näheren Umfeld sorgen einige Gewerbebetriebe sowie der Maximarkt als Nahversorger für kurze Wege im Alltag. Ein besonderes Highlight ist die Nähe zur Traunau, einem geschützten Naturparadies, das nur wenige Minuten entfernt liegt. Die weitläufige, naturbelassene Aulandschaft lädt zu Spaziergängen, Joggingrunden oder Radtouren ein – über schmale, reizvolle Pfade mitten durch die grüne Oase. Auch in puncto Mobilität ist das Projekt G r ü n G e b o r g e n gut angebunden: Die Bushaltestelle Baintwiese befindet sich direkt beim Wohnprojekt und bietet Anschluss an den Stadtverkehr sowie Schnellbuslinien. Wer lieber mit dem Zug unterwegs ist, erreicht den Bahnhof Linz-Wegscheid in rund 15 Gehminuten.

Beschreibung der Immobilie

Einzigartiger Wohnstil - 3-Zimmer Wohnung - leistbar & provisionsfrei!

Im Süden von Linz, am Rande des Stadtteils Neue Heimat, entsteht etwas Besonderes – das Projekt G r ü n G e b o r g e n .

Eine Welt für sich. Ein Ort der Vertrautheit, des unbeschwerten Lebens – nah an der Stadt und noch näher an der Natur. So ähnlich war es an diesem Ort schon einmal – und bald wird dieser Geist aufs Neue lebendig. Nicht als idyllisches Gehöft wie einst, sondern als Ideal zeitgemäßen Wohnens: vier variierende, hofartig und doch offen angeordnete Gebäude, die 97 modernst ausgestattete Tops beherbergen – mit Wohnflächen von 52 bis 155 Quadratmetern, großzügigen Freiflächen, privaten Gärten, Balkonen oder Terrassen und einem grünen, autofreien Innenhof. Die Überschaubarkeit von damals trifft auf die kluge Planung von heute. Je nach Lust und Laune den Nachbarn begegnen oder seine Ruhe genießen – beides ist hier ganz selbstverständlich möglich. Zur guten neuen Zeit gehört, dass Sie mehr als ein Zuhause finden: hier erwartet Sie eine sichere, angenehme und lebendige Form des Wohnens.



Im Projekt G r ü n G e b o r g e n erfüllen sich Ihre Wohnträume.

Wir weisen darauf hin, dass zwischen dem Vermittler und dem zu vermittelnden Dritten ein familiäres oder wirtschaftliches Naheverhältnis besteht.

Infrastruktur / Entfernungen

Gesundheit
Arzt <1.500m
Apotheke <1.500m
Klinik <2.500m
Krankenhaus <5.000m

Kinder & Schulen
Kindergarten <1.000m
Schule <1.000m
Universität <3.500m
Höhere Schule <7.000m

Nahversorgung
Supermarkt <500m
Bäckerei <1.500m
Einkaufszentrum <1.500m

Sonstige
Bank <1.500m
Geldautomat <1.500m
Post <1.500m
Polizei <1.500m

Verkehr
Bus <500m
Straßenbahn <2.500m
Bahnhof <1.000m
Autobahnanschluss <1.500m
Flughafen <7.000m

Angaben Entfernung Luftlinie / Quelle: OpenStreetMap

Eckdaten Objektnr. 1939/162705

Art: Wohnung - Etage
Land: Österreich
Baujahr: 2025
Zustand: Erstbezug
Kaufpreis: 305.000,00
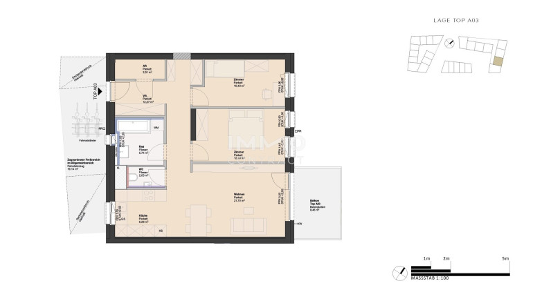
Wohnfläche: 73,34 m²
Zimmer: 3
Bäder: 1
Balkone: 1
Heizwärmebedarf:  B  31,20 kWh/m²a
fGEE:  A+  0,68
Nebenkostenübersicht Kauf Immobilie merken Exposé

Ausstattung

Fußbodenheizung, Wasch/Trockenraum


Immobilie anfragen


Ihre persönliche Beratung

IMMOcontract Immobilien Vermittlung GmbH

Klaus Egger

IMMOcontract Immobilien Vermittlung GmbH

T +43 50450

H +43 676 841 420 424