Stadtterrassen Peuerbach ** BAUBEGINN ERFOLGT! **

Wohnung - Erdgeschoß, 4722 Peuerbach


Peuerbach selbst, bekannt für seine idyllische Umgebung und die herzliche Gemeinschaft, bietet ein vielfältiges Freizeitangebot. Die Region lädt zu ausgedehnten Spaziergängen, Radtouren oder entspannten Ausflügen ins Grüne ein. Für kulturelle Abwechslung sorgen historische Sehenswürdigkeiten und Veranstaltungen in der Umgebung. Die Verkehrsanbindung ist optimal: Der Bahnhof Peuerbach bietet regelmäßige Zugverbindungen in Richtung Linz und Wels, während die Nähe zur B137 eine zügige Erreichbarkeit der umliegenden Städte und Autobahnen gewährleistet. Somit eignet sich diese Lage sowohl für Pendler als auch für Ruhesuchende.

Beschreibung der Immobilie

Stadtterrassen Peuerbach ** BAUBEGINN ERFOLGT! **

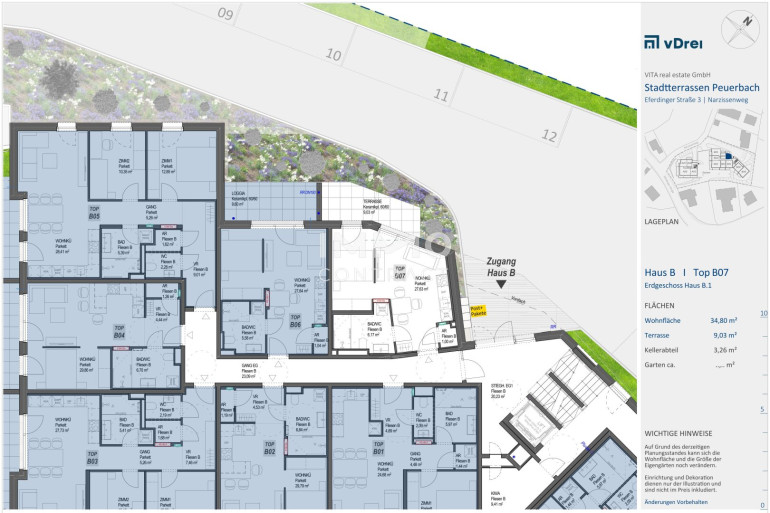
Im Zentrum von Peuerbach entstehen 32 Eigentumswohnungen mit einem Ausmaß von rund 35 m² bis etwa 117 m². Die "Stadtterrassen Peuerbach" sind südwestlich ausgerichtet, erstrecken sich entlang des Narzissenweges und bieten einen schönen Ausblick über Peuerbach. Die zentrale Lage in Peuerbach ermöglicht Ihnen einen bequemen Zugang zu allen wichtigen Annehmlichkeiten des täglichen Lebens, darunter Einkaufsmöglichkeiten, Schulen und medizinische Einrichtungen, die in wenigen Minuten erreichbar sind.



Für jede Wohnung ist fix ein Tiefgaragenplatz reserviert (zzgl. € 24.000,00). Das Projekt wird mit hoher Nachhaltigkeit und einer Gesamtenergieeffizienz A+ ausgerichtet. Die Photovoltaikanlage am Dach trägt zur energiesparenden Bewirtschaftung bei. Beheizung & Warmwasseraufbereitung funktionieren über eine Luftwärmepumpe, eine elektrische Beschattung und Glasfaser runden dieses exklusive Angebot ideal ab.



Die Wohneinheiten sind hochwertig ausgestattet, die Badezimmer verfügen über großformatige Fliesen und qualitative Sanitärausstattung.



Alle Geschosse sind mittels Aufzug (von der Tiefgarage) erschlossen



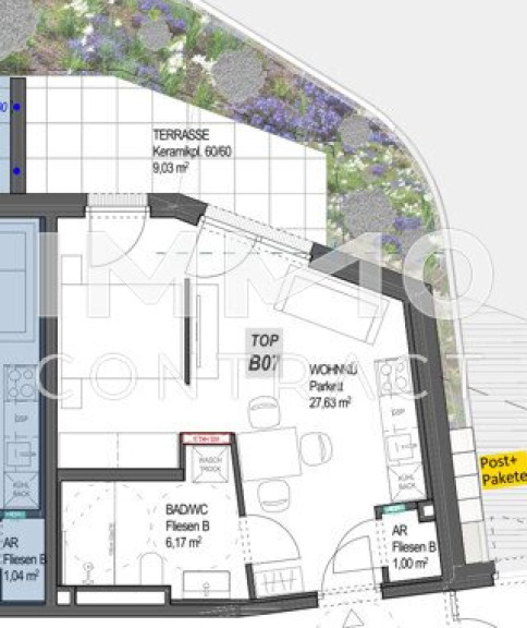
Raumaufteilung: Abstellraum, Bad/WC, Wohnküche (Küche nicht möbliert) mit abgetrennten Schlafbereich, Terrasse/Loggia.

Jeder Wohnung ist ein eigenes Kellerabteil zugeordnet.



Die dargestellten Innenvisualisierungen sind als Musterbilder und Einrichtungsvorschläge zu verstehen, die Wohnungen sind schlüsselfertig/unmöbliert.


Wir weisen darauf hin, dass zwischen dem Vermittler und dem zu vermittelnden Dritten ein familiäres oder wirtschaftliches Naheverhältnis besteht.

Infrastruktur / Entfernungen

Gesundheit
Apotheke <500m
Arzt <6.500m

Kinder & Schulen
Schule <500m
Kindergarten <500m

Nahversorgung
Supermarkt <500m
Bäckerei <500m
Einkaufszentrum <1.000m

Sonstige
Bank <500m
Geldautomat <500m
Post <500m
Polizei <500m

Verkehr
Bus <500m
Bahnhof <1.000m
Flughafen <5.500m

Angaben Entfernung Luftlinie / Quelle: OpenStreetMap

Eckdaten Objektnr. 1939/162429

Art: Wohnung - Erdgeschoß
Land: Österreich
Baujahr: 2026
Zustand: Erstbezug
Kaufpreis: 141.006,00
Wohnfläche: 34,80 m²
Zimmer: 1,50
Heizwärmebedarf:  B  35,30 kWh/m²a
fGEE:  A+  0,56
Nebenkostenübersicht Kauf Immobilie merken Exposé

Immobilie anfragen


Ihre persönliche Beratung

IMMOcontract Immobilien Vermittlung GmbH

Mag.(FH) Marianne Gerner-Kraupatz

IMMOcontract Immobilien Vermittlung GmbH

T +43 50 450 400

H +43 664 25 63 491