Großzügige Fläche für ein Sportkonzept im Twenty One

Freizeitimmobilie gewerblich , 1210 Wien


1210 Wien Floridsdorf

Beschreibung der Immobilie

Großzügige Fläche für ein Sportkonzept im Twenty One



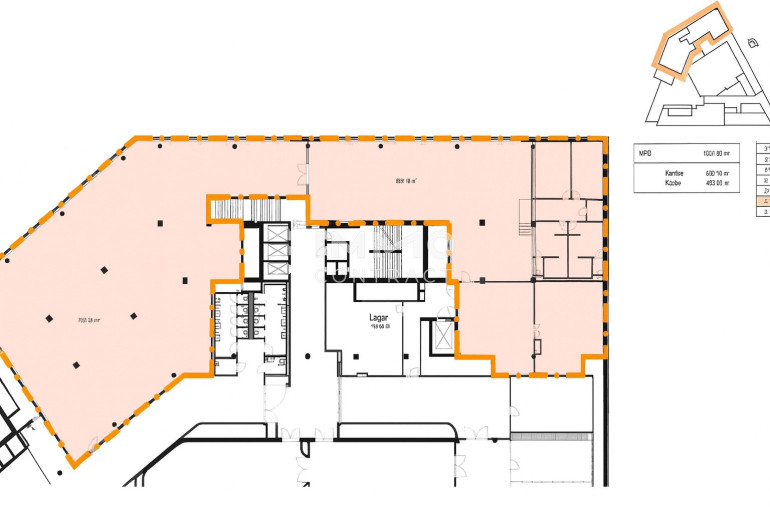
Attraktive Gewerbefläche für Fitnesscenter im Central Hub



Im modernen Central Hub im 21. Bezirk steht eine großzügige und vielseitig nutzbare Gewerbefläche mit ca. 1.100 m² zur Vermietung. Die Fläche eignet sich ideal für ein Fitnesscenter, Gesundheits- oder Sportkonzept und befindet sich in einem dynamisch wachsenden Unternehmensumfeld.



? Lage & Umfeld



Der Central Hub umfasst insgesamt 50.000 m² neu geschaffene Gewerbeflächen und liegt direkt gegenüber der Siemens City, einem der größten Unternehmensstandorte Wiens. Zusätzlich befinden sich zahlreiche weitere Betriebe, Büros und Dienstleister in unmittelbarer Umgebung – ein starkes Einzugsgebiet mit hoher Frequenz und großem Kundenpotenzial.



? Objektbeschreibung





Die Fläche ist ideal für ein modernes Fitnesscenter konzipiert und bietet großzügige, flexibel gestaltbare Bereiche. Die Raumhöhe, die Gebäudestruktur und die offene Grundrisslogik ermöglichen vielfältige Trainings- und Kursformate.



Hauptmerkmale:




  • Großzügige, offene Trainingsflächen



  • Hohe Raumhöhe – ideal für Cardio, Krafttraining und Functional Workouts



  • Abtrennbare Bereiche für Kurse, Yoga, Pilates, Gruppenfitness



  • Empfangs- und Loungezone möglich



  • Umkleiden und Sanitärbereiche vorhanden bzw. adaptierbar



  • Große Fensterflächen für natürliche Belichtung






Miete: 16,50/m2, BK: 4,60/m2 exkl. USt.


Wir weisen darauf hin, dass zwischen dem Vermittler und dem zu vermittelnden Dritten ein familiäres oder wirtschaftliches Naheverhältnis besteht.


Der Vermittler ist als Doppelmakler tätig.

Infrastruktur / Entfernungen

Gesundheit
Arzt <1.500m
Apotheke <1.000m
Klinik <1.500m
Krankenhaus <1.500m

Kinder & Schulen
Schule <1.000m
Kindergarten <500m
Universität <2.000m
Höhere Schule <3.000m

Nahversorgung
Supermarkt <500m
Bäckerei <500m
Einkaufszentrum <2.000m

Sonstige
Geldautomat <1.500m
Bank <1.500m
Post <1.500m
Polizei <1.500m

Verkehr
Bus <500m
U-Bahn <2.000m
Straßenbahn <1.500m
Bahnhof <500m
Autobahnanschluss <2.000m

Angaben Entfernung Luftlinie / Quelle: OpenStreetMap

Eckdaten Objektnr. 1939/215776

Art: Freizeitimmobilie gewerblich
Land: Österreich
Baujahr: 2025
Kaltmiete (netto): 17.600,00 €
Kaltmiete: 17.600,00 €
Miete / m²: 16,50 €
Nutzfläche: 1.100,00 m²
Heizwärmebedarf: 36,00 kWh/m²a
fGEE: 0,61
Nebenkostenübersicht Miete Immobilie merken Exposé

Ausstattung

Garage, Parkhaus


Immobilie anfragen


Ihre persönliche Beratung

IMMOcontract Immobilien Vermittlung GmbH

Roman Schmatzer

IMMOcontract Immobilien Vermittlung GmbH

T +43 664 4360663

H +43 664 4360663