Geräumige Eigentumswohnung mit Balkon, Einbauküche und eigenem Autoabstellplatz

Wohnung , 2700 Wiener Neustadt


Zentrale, jedoch ruhige Wohngegend nahe dem Zentrum. Umfeld: Einkaufsmöglichkeiten, Apotheke, Banken, Schulen und Kindergärten befinden sich in fußläufiger Entfernung; vielfältige Freizeit- und Naherholungsmöglichkeiten in der Umgebung. Infrastruktur: Gute Anbindung an öffentliche Verkehrsmittel (Bus/Straßenbahn); schnelle Wege zur Innenstadt und zur B17. Wohnung und Umfeld: Ruhiges, familienfreundliches Nachbarschaftsimage mit kurzen Wegen zu Grünflächen, Spielplätzen und Freizeiteinrichtungen. Zusammenfassung: Zentrale Erreichbarkeit kombiniert mit ruhigem, familienfreundlichem Wohnambiente und guter Infrastruktur.

Beschreibung der Immobilie

Geräumige Eigentumswohnung mit Balkon, Einbauküche und eigenem Autoabstellplatz

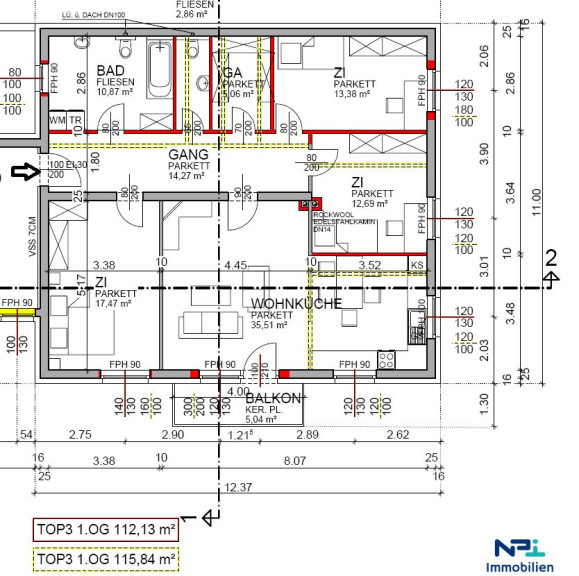
Die hochwertige Eigentumswohnung überzeugt durch eine ruhige Lage, eine helle Atmosphäre und eine durchdachte Raumaufteilung, die viel Platz für Familien und Paare bietet. Zur Wohnung gehören drei Schlafzimmer, eine geräumige Wohnküche mit direktem Ausgang auf den 5 m² großen Balkon sowie eine vorhandene Einbauküche, die den Alltag erleichtert und sofort genutzt werden kann.



Der Vorraum fungiert als funktionaler Eingangsbereich und verbindet die einzelnen Räume harmonisch miteinander. Das Badezimmer verfügt über ein Fenster, eine Badewanne, eine separate Dusche sowie ein WC und Waschmaschinenanschluss.



Zusätzlich gibt es ein separates WC sowie einen Abstellraum, der zusätzlichen Stauraum bietet.



Ein Kellerabteil steht zur Verfügung und ergänzt den Stauraumbedarf der Wohnung. Ein weiterer Pluspunkt ist der eigene Autoabstellplatz im Eigentum, der Fahrzeugbesitzern mehr Komfort und Sicherheit bietet.



Die Beheizung erfolgt über eine Wärmepumpe, das gemeinsam mit den modernen 3-fach verglasten Fenstern zu einer effizienten Wärme- und Energienutzung beiträgt. Das Baujahr der Anlage ist 2012, wodurch sich der Zustand der Wohnung insgesamt als gepflegt und modern beschreibt.



Zusammengefasst eignet sich diese Wohnung besonders für Familien oder Paare, die Wert auf eine ruhige Wohnlage, eine gute Raumaufteilung, einen Balkon und einen eigenen Autoabstellplatz legen.



Sollten Sie weitere Informationen wünschen oder einen Besichtigungstermin vereinbaren möchten, stehe ich Ihnen gerne zur Verfügung.

Infrastruktur / Entfernungen

Gesundheit
Arzt <2.500m
Apotheke <1.000m
Krankenhaus <3.500m
Klinik <4.500m

Kinder & Schulen
Schule <1.500m
Kindergarten <2.500m
Höhere Schule <4.000m
Universität <1.000m

Nahversorgung
Supermarkt <1.000m
Bäckerei <500m
Einkaufszentrum <2.500m

Sonstige
Bank <1.000m
Geldautomat <2.500m
Post <2.000m
Polizei <2.000m

Verkehr
Bus <500m
Autobahnanschluss <4.500m
Bahnhof <1.500m
Flughafen <1.500m

Angaben Entfernung Luftlinie / Quelle: OpenStreetMap

Eckdaten Objektnr. 818

Art: Wohnung
Land: Österreich
Baujahr: 2012
Alter: Neubau
Kaufpreis: 299.000,00
Betriebskosten: 234,93 €
Heizkosten: 69,12 €
MwSt Gesamt: 37,31 €
Wohnfläche: 111,84 m²
Zimmer: 4
Bäder: 1
WC: 2
Balkone: 1
Stellplätze: 1
Keller: 6,00 m²
Heizwärmebedarf: 50,80 kWh/m²a
Nebenkostenübersicht Kauf Immobilie merken Exposé

Ausstattung

Fliesen, Laminatboden, Fußbodenheizung, Einbauküche, Wohnküche / offene Küche, Nordbalkon, Bad mit Fenster, Badewanne, Dusche, Kabel/Satelliten-TV, Parkplatz


Immobilie anfragen


Ihre persönliche Beratung

NPI Immobilien GmbH

Thomas Hollub

Neumayer & Partner Immobilien Treuhand GmbH

H +43 676/ 936 53 13