| AB SOFORT VERFÜGBAR | 3 ZIMMER | MAISONETTE | ASPERNSTRASSE U2 | NEUBAU | TERRASSE

Wohnung - Maisonette, 1220 Wien , Lavaterstraße


Beschreibung der Immobilie

| AB SOFORT VERFÜGBAR | 3 ZIMMER | MAISONETTE | ASPERNSTRASSE U2 | NEUBAU | TERRASSE

Lage:



Das Wohnbauprojekt ist ideal gelegen, direkt an der U2-Station Aspernstraße sowie der Buslinie 26A. Mit den öffentlichen Verkehrsmitteln gelangt man in knapp 15 Minuten ins Stadtzentrum. 



Zur Erholung dient die nahgelegene Donauinsel sowie die Alte Donau



Nahversorger, Apotheken, Ärzte, Restaurants und weitere Annehmlichkeiten befinden sich in fußläufiger Entfernung





Projekt:



Lavater2 ist ein modernes Wohnbauprojekt in idealer Lage. Das Projekt umfasst 251 Mietwohnungen mit 1-4 Zimmern. In der Tiefgarage befinden sich außerdem noch 128 PKW-Stellplätze



Ein begrünter und nach außen hin geschützter Innenhof ist ebenfalls vorhanden und kann von allen MieterInnen verwendet werden. 



Die Wohnungen sind mit qualitativ hochwertigen Materialien ausgestattet und verfügen bereits über eine Einbauküche sowie ein verfliestes Bad. Bei den Grundrissen wurde an eine praktische Raumaufteilung gedacht, daher sind die Wohnungen ideal nutzbar.



Alle Wohnungen verfügen über eine Loggia, einen Balkon oder eine Dachterrasse.



Die Vermietung erfolgt provisionsfrei!



Das Projekt befindet sich am Stadtrand, ist aber durch seine optimale Verkehrsanbindung unweit vom Stadtzentrum entfernt. 





Ausstattung: 



- Fußbodenheizung mittels Fernwärme mit dezentraler Warmwasserbereitung

- Automatische Belüftung der Nassräume

- Tiefgarage mit Stellplätzen (100€ brutto)

- Großzügige Freiflächen wie Balkone, Terrassen, Loggien





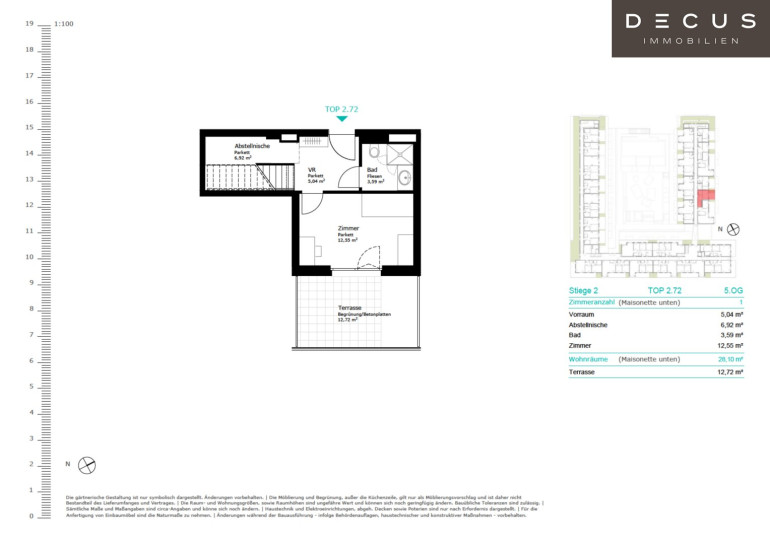
Raumaufteilung



1. ETAGE



  • Vorraum
  • Bad mit WC und Dusche
  • Abstellnische
  • Zimmer 1
  • Terrasse
  • Stiegenaufgang




2. ETAGE



  • Wohnküche mit Essbereich
  • Zimmer 2
  • WC
  • Dusche mit Badewanne
  • Schrankraum
  • Terrasse zweimal



Der Immobilienmakler erklärt, dass er – entgegen dem in der Immobilienwirtschaft üblichen Geschäftsgebrauch des Doppelmaklers – einseitig nur für den Vermieter tätig ist.

DECUS Immobilien GmbH – Wir beleben Räume

Für weitere Informationen und Besichtigungen steht Ihnen gerne Frau  Linda Schmidtberger unter der Mobilnummer +43 660 75 75 013und per E-Mail unter schmidtberger@decus.at persönlich zur Verfügung.

www.decus.at | office@decus.at 

Wichtige Informationen

Bitte beachten Sie, dass per 13.06.2014 eine neue Richtlinie für Fernabsatz- und Auswärtsgeschäfte in Kraft getreten ist.

Ab 1.4.2024 entfallen die Grundbuchs- und Pfandrechtseintragungsgebühren vorübergehend für Eigenheime bis zu einer Bemessungsgrundlage von EUR 500.000,-. Voraussetzung ist das dringende Wohnbedürfnis, ausgenommen davon sind vererbte oder geschenkte Immobilien. Die Befreiung ist jedoch für den Einzelfall zu prüfen, DECUS Immobilien übernimmt hierzu keine Haftung.

Ab 01.07.2023 gilt das Erstauftraggeber-Prinzip bei Wohnungsmietverträgen, ausgenommen davon sind Dienst-/Natural-/Werkswohnungen. Wir dürfen gem. § 17 Maklergesetz darauf hinweisen, dass wir auf die Doppelmaklertätigkeit gem. § 5 Maklergesetz bei Wohnungsmietverträgen verzichten und nur noch einseitig tätig sind (bei den restlichen Vermittlungsarten nicht) und ein wirtschaftliches Naheverhältnis zu unseren Auftraggebern besteht. 

Im Falle eines Abschlusses mit Ihnen oder einem von Ihnen namhaft gemachten Dritten bzw. bei beidseitiger Willensübereinstimmung beträgt unser Honorar (lt. Honorarverordnung für Immobilienmakler) 2 Bruttomonatsmieten (BMM) bei Dienst-/Natural-/Werkwohnungen sowie Suchaufträgen, 3 BMM bei Gewerbe-, PKW-, Keller- und Lagermietverträgen sowie bei Kaufobjekten 3 % des Kaufpreises, zuzüglich der gesetzlichen Umsatzsteuer.

Dieses Objekt wird Ihnen unverbindlich und freibleibend angeboten. Oben angeführte Angaben basieren auf Informationen und Unterlagen des Eigentümers und sind unsererseits ohne Gewähr.

Nähere Informationen sowie unsere AGBs und die Nebenkostenübersichtsblatt finden Sie auf unserer Homepage www.decus.at unter "Service" - "Rechtliches zum FAGG" sowie im Anhang der zugesendeten Objekt-Exposés!

Infrastruktur / Entfernungen

Gesundheit
Arzt <250m
Apotheke <250m
Klinik <750m
Krankenhaus <1.000m

Kinder & Schulen
Schule <500m
Kindergarten <250m
Universität <2.750m
Höhere Schule <2.750m

Nahversorgung
Supermarkt <250m
Bäckerei <250m
Einkaufszentrum <2.250m

Sonstige
Geldautomat <250m
Bank <250m
Post <250m
Polizei <750m

Verkehr
Bus <250m
U-Bahn <250m
Straßenbahn <750m
Bahnhof <250m
Autobahnanschluss <2.000m

Angaben Entfernung Luftlinie / Quelle: OpenStreetMap

Eckdaten Objektnr. 1151767

Art: Wohnung - Maisonette
Land: Österreich
Zustand: Neuwertig
Alter: Neubau
Gesamtmiete: 1.797,13
Kaltmiete (netto): 1.348,00 €
Kaltmiete: 1.633,75 €
Betriebskosten: 285,75 €
MwSt Gesamt: 163,38 €
Wohnfläche: 95,84 m²
Zimmer: 3
Bäder: 1
WC: 1
Terrassen: 3
Keller: 2,24 m²
Heizwärmebedarf:  B  34,55 kWh/m²a
fGEE:  A+  0,69
Nebenkostenübersicht Miete Immobilie merken Exposé

Ausstattung

Fußbodenheizung, Einbauküche, Personenaufzug, Südbalkon, Dusche, Tiefgarage, Teeküche


Immobilie anfragen


Ihre persönliche Beratung

DECUS Immobilien GmbH

Linda Schmidtberger

DECUS Immobilien GmbH

T +43 660 75 75 013

H +43 660 75 75 013

F +43 1 35 600 10