TrIIIple Tower – Stilvolle möblierte 2-Zimmer-Balkonwohnung

Wohnung , 1030 Wien,Landstraße , Schnirchgasse


Willkommen im Herzen des begehrten 3. Bezirks! Hier erwartet Sie eine exklusive Mietwohnung der besonderen Art. Mit direktem Zugang zum Donaukanal und hervorragender U-Bahn-Anbindung präsentiert sich diese ansprechende Neubauwohnung mit einem harmonischen Zusammenspiel aus erstklassiger Lage und luxuriösem Wohnkomfort.

Beschreibung der Immobilie

TrIIIple Tower – Stilvolle möblierte 2-Zimmer-Balkonwohnung

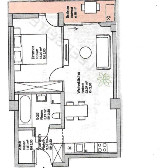
Wohnen auf höchstem Niveau: Die Immobilie im 14. Obergeschoss besticht durch eine Wohnfläche von ca. 47,14 m² und einen traumhaften Balkon mit einer Fläche von etwa 6,50 m² – ein Ort, der atemberaubende Ausblicke garantiert. Errichtet mit hochwertigen Materialien, überzeugt die Wohnung durch einen durchdachten Grundriss. Hier finden Sie ein einladendes Vorzimmer, eine großzügige Wohnküche, einen praktischen Abstellraum, ein komfortables Schlafzimmer, ein stilvolles Badezimmer und Toilette und nicht zuletzt einen Balkon, der zum Verweilen einlädt.



Gemeinschaftliche Annehmlichkeiten: Ein besonderes Highlight des Gebäudes ist der Rooftop Pool mit einer atemberaubenden Aussicht, sowie eine Bibliothek, die allen Bewohnern zur Verfügung steht. Die Eventküche im 9. Obergeschoss sowie die Grill Lounge im TrIIIple Park bieten ideale Gelegenheiten für gesellige Zusammenkünfte. Eine Waschküche rundet die Annehmlichkeiten ab.



Ausstattung und Komfort: Diese Wohnung beeindruckt mit Echtholzparkett, dreifachverglasten Fenstern, einer topmodernen Küche sowie stilvollen Badezimmermöbeln. Die raumhohen Fensterfronten schenken Ihnen einen beeindruckenden Ausblick über die Wiener Stadtlandschaft. Fußbodenheizung und -kühlung sorgen zu jeder Tageszeit für eine angenehme Raumtemperatur.



Finanzielle Konditionen:



  • Gesamtmiete: € 1.499,16
  • Betriebskosten: ca. € 181,07
  • Kaution: € 4.497,47
  • Befristung: 3 Jahre



Wir weisen darauf hin, dass zwischen dem Vermittler und dem zu vermittelnden Dritten ein familiäres oder wirtschaftliches Naheverhältnis besteht.


Der Immobilienmakler erklärt, dass er – entgegen dem in der Immobilienwirtschaft üblichen Geschäftsgebrauch des Doppelmaklers – einseitig nur für den Vermieter tätig ist.

Infrastruktur / Entfernungen

Gesundheit
Arzt <250m
Apotheke <250m
Klinik <250m
Krankenhaus <1.000m

Kinder & Schulen
Schule <750m
Kindergarten <500m
Universität <500m
Höhere Schule <1.000m

Nahversorgung
Supermarkt <250m
Bäckerei <250m
Einkaufszentrum <1.250m

Sonstige
Geldautomat <750m
Bank <250m
Post <750m
Polizei <750m

Verkehr
Bus <250m
U-Bahn <250m
Straßenbahn <250m
Bahnhof <500m
Autobahnanschluss <250m

Angaben Entfernung Luftlinie / Quelle: OpenStreetMap

Eckdaten Objektnr. 6211/261

Art: Wohnung
Land: Österreich
Baujahr: 2021
Zustand: Gepflegt
Alter: Neubau
Gesamtmiete: 1.699,15
Kaltmiete (netto): 1.325,00 €
Kaltmiete: 1.544,68 €
Betriebskosten: 219,68 €
MwSt Gesamt: 154,47 €
Wohnfläche: 47,96 m²
Zimmer: 2
Bäder: 1
WC: 1
Balkone: 1
Heizwärmebedarf:  A  24,43 kWh/m²a
fGEE:  A+  0,69
Nebenkostenübersicht Miete Immobilie merken Exposé

Ausstattung

Parkett, Fliesen, Fußbodenheizung, Einbauküche, Personenaufzug, Badewanne, Swimmingpool


Immobilie anfragen


Ihre persönliche Beratung

JuNi Immobilien GmbH

Julia Kolarik

JuNi Immobilien GmbH

T 06607370504

H +43 660 737 05 04