State-of-the-Art Büros im LEOPOLDQUARTIER | 1020 Wien
Büro / Praxis
- Bürofläche,
1020
Wien
STILL IMAGE_CAM 2
CAM 2_4k
CAM 3
CAM 4
Communal zone_Final
Lobby_VAR1
STILL IMAGE_CAM 1
STILL IMAGE_CAM 3
STILL IMAGE_CAM 4
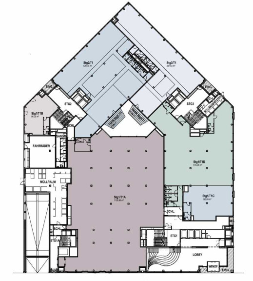
Grundrissplan_EG
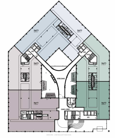
Grundrissplan_1.OG
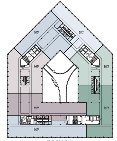
Grundrissplan_2.OG
Grundrissplan_3.OG
Grundrissplan_4.OG
Grundrissplan_5.OG
Grundrissplan_6.OG
Grundrissplan_7.OG
Grundrissplan_8.OG
Grundrissplan_9.OG
Lageplan
Beschreibung der Immobilie
State-of-the-Art Büros im LEOPOLDQUARTIER | 1020 Wien
BESCHREIBUNGIn bester zentraler Lage, umgeben vom grünen Augarten, dem blühenden Wettsteinpark, dem belebten Donaukanal und dem pulsierenden ersten Bezirk sowie dem Servitenviertel, bietet das LeopoldQuartier Office das Beste, was Natur und urbanes Leben zu bieten haben. Kurz: einen idealen Ort zum Arbeiten!
Das LeopoldQuartier Office bietet auf neun Büroetagen rund 22.000 Quadratmeter StateoftheArtBüroraum. Ein Gastronomie und Einzelhandelsangebot im Erdgeschoss schafft Mehrwert im Sinne einer ausgewogenen WorkLifeBalance. Sichtbare Holzoberflächen und eine flexible Raumeinteilung schaffen die besten Voraussetzungen für ein individuelles Bürokonzept. Moderne Heiz/KühlsegelTechnologie sorgt für thermische Behaglichkeit, Stehleuchten mit direktem und indirektem Lichtanteil garantieren zu jeder Tageszeit die richtige Beleuchtung.
Die flexiblen Grundrisse in Kombination mit den idealen Raumtiefen ermöglichen eine maximal effiziente Flächennutzung. Das freut die Mitarbeiterin und den Mitarbeiter genauso wie den Controller und die Controllerin.Ob Einzelbüro, Open Space oder multifunktionaler Raum – im LeopoldQuartier Office sind der Individualisierung keine Grenzen gesetzt. Das Büro von morgen erfindet sich immer wieder neu und ist so variabel wie das Leben selbst.
Foto: SQUAREBYTES
VERFÜGBARKEIT
ab November 2025
VERFÜGBARE MIETFLÄCHEN
2.OG Top 1/3 590 m² € 24,10
2.OG Top 1/4 550 m² € 24,10
2.OG Top 1/5 497 m² € 24,10
2.OG Top 2/4 527 m² € 24,10
2.OG Top 2/5 562 m² € 24,10
2.OG Top 3/4 429 m² € 24,10
2.OG Top 3/5 429 m² € 24,10
3.OG Top 1/6 590 m² € 24,60
3.OG Top 1/7 396 m² € 24,60
3.OG Top 1/8 589 m² € 24,60
3.OG Top 2/6 527 m² € 24,60
3.OG Top 2/7 562 m² € 24,60
3.OG Top 3/6 429 m² € 24,60
3.OG Top 3/7 429 m² € 24,60
4.OG Top 1/9 590 m² € 25,10
4.OG Top 1/10 507 m² € 25,10
4.OG Top 1/11 497 m² € 25,10
4.OG Top 2/8 527 m² € 25,10
4.OG Top 2/9 562 m² € 25,10
4.OG Top 3/8 429 m² € 25,10
4.OG Top 3/9 429 m² € 25,10
5.OG Top 1/12 555 m² € 25,60 + 26 m² Terrasse
5.OG Top 1/13 407 m² € 25,60 + 55 m² Terrasse
5.OG Top 1/14 497 m² € 25,60
5.OG Top 2/10 455 m² € 25,60 + 26 m² Terrasse
5.OG Top 2/11 562 m² € 25,60
5.OG Top 3/10 429 m² € 25,60
5.OG Top 3/11 329 m² € 25,60 + 26 m² Terrasse
6.OG Top 1/15 648 m² € 26,10 + 32 m² Terrasse
6.OG Top 1/16 635 m² € 26,10 + 32 m² Terrasse
6.OG Top 2/12 675 m² € 26,10 + 59 m² Terrasse
6.OG Top 3/12 521 m² € 26,10 + 59 m² Terrasse
Betriebskosten/m² p.M. € 4,70 inkl. Heizung und Kühlung
AUSSTATTUNG
Lift
Heiz- und Kühlsegel
mechanische Zu- und Abluftanlage
raumhohe Fenster
öffenbare Lüftungsflügel
kontaktloses Zutrittssystem
Mobility-Sharing-Angebot
Mieter-Lounge
teilweise Terrassen und Balkone
Stellplätze und E-Lade-Stationen
TECHNISCHE DETAILS
Neubau
barrierefrei
Energiekennwerte:
Energieklasse: A
Heizwärmebedarf: 24,20 kWh/m²a
LAGE UND VERKEHRSANBINDUNG
öffentlicher Verkehr:
U-Bahn: U4
Schnellbahn: Franz-Josefs-Bahnhof
Straßenbahn: 31
Bus: 5A, 5B
Individualverkehr:
Obere Donaustraße, Roßauer Lände, Brigittenauer Lände
INFRASTRUKTUR
Die City und der öffentliche Verkehr sind wunderbar einfach zu Fuß zu erreichen, der Flughafen mit dem Auto in nur 20 Minuten. Das LeopoldQuartier Office verbindet die Vorteile der zentralen Lage mit dem Erholungswert der angrenzenden Grünflächen. So ist das Bürogebäude ein entspannter Ruhepol inmitten des quirligen wirtschaftlichen und gesellschaftlichen Lebens.
KAUTION
3-6 Bruttomonatsmieten, je nach Bonität
PROVISION
Im Falle eines Vertragsabschlusses beträgt unser Honorar lt. Maklerverordnung für Immobilienmakler, BGBI.262 und 297/1996, 3 Bruttomonatsmieten zzgl. 20 % Ust. Weiters möchten wir auf unsere allgemeinen Geschäftsbedingungen und den ausschließlichen Gerichtsstand Wien, Innere Stadt verweisen.
Alle Preisangaben verstehen sich pro Monat, zzgl. der gesetzlichen Ust. und Betriebskosten.
Foto: SQUAREBYTES
Eckdaten Objektnr. 337/05797
| Art: | Büro / Praxis - Bürofläche |
| Land: | Österreich |
| Baujahr: | 2025 |
| Gesamtmiete: | 13.536,46 € |
| Kaltmiete (netto): | 9.406,96 € |
| Miete / m²: | 23,60 € |
| Betriebskosten: | 1.873,42 € |
| MwSt Gesamt: | 2.256,08 € |
| Nutzfläche: | 398,60 m² |
| Heizwärmebedarf: | A 24,20 kWh/m²a |
| fGEE: | A+ 0,66 |
Ausstattung
Zentralheizung, Personenaufzug
Ihre persönliche Beratung
MA Florian Bogner
Colliers International Immobilienmakler GmbH
T +43 1 535 53 05531
F +43 1 535 53 25